The Acorn Group is London’s largest multi-brand estate agency. We offer our clients the best brands, with the best people, in the best locations.

 

Close

Asking price £425,000 freehold

Semi-detached House - King Alfred Avenue, SE6

Acorn are delighted to welcome to the market this spacious and well presented Semi Detached house, offered with no onward chain.

Located well for access to transport links, amenities and good local schools, the house boasts ample off street parking and a good size garden with side access.

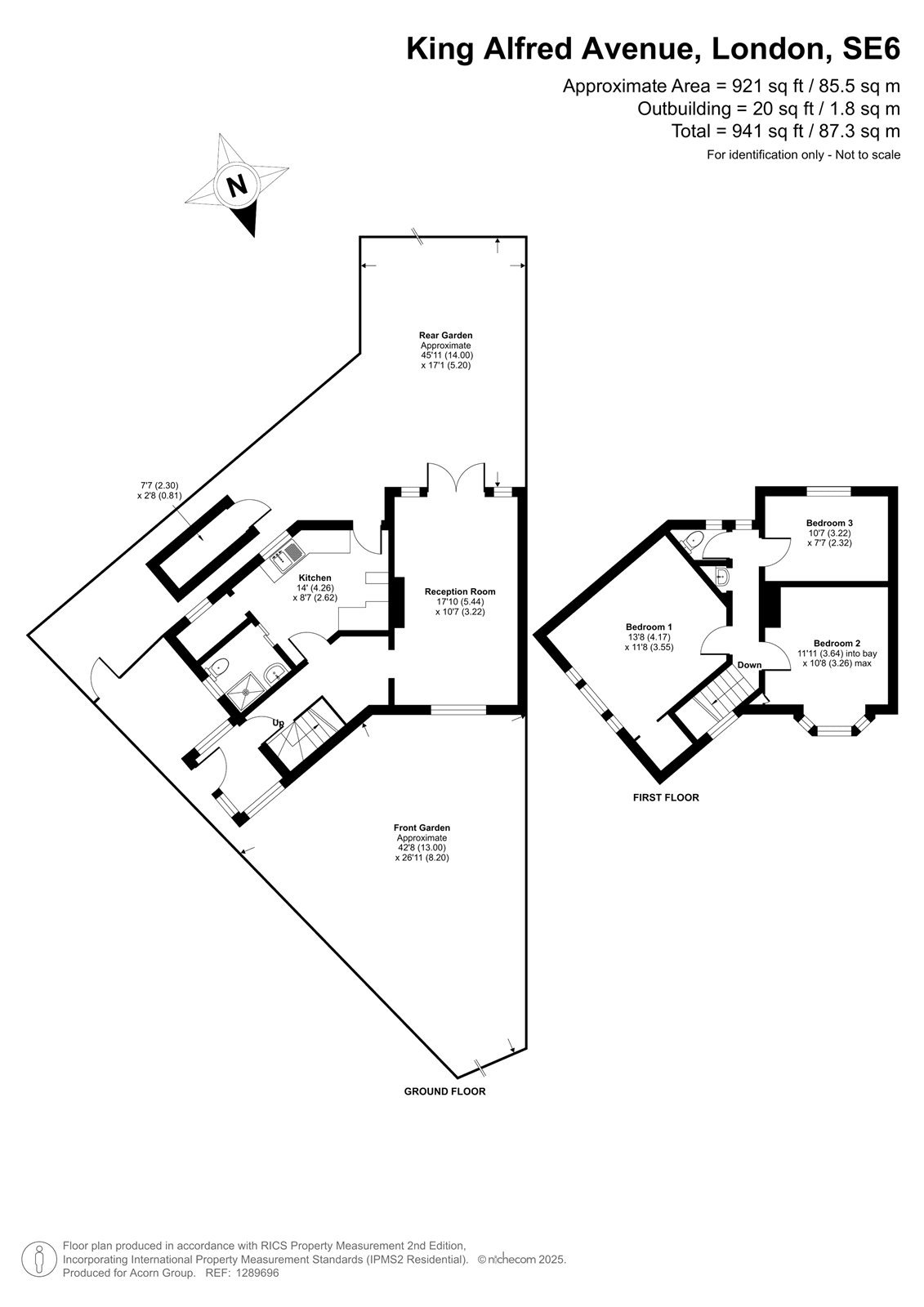
Internally the accommodation on the ground floor comprises entrance porch, shower room, utility cupboard, modern kitchen with ample fitted units, and a large and light lounge with double doors out onto the garden. The first floor comprises three double bedrooms, and separate W.C.

Bellingham and Lower Sydenham Rail Stations are within a short walk with frequent lines into the City. The picturesque Beckenham Place Park is also within easy reach.

Freehold
EPC Rating C
Council Tax Band C

Talk to Jake Blackman from Acorn (Estate agents in Catford)

 

Use our calculator to work out potential mortgage repayments and stamp duty costs. Please note, these calculators are for general interest only and must not be relied on. Speak to our Mortgage Scout team for further information and advice. 

Powered by

Total Mortgage

£

Estimated Monthly Mortgage Payment

£

  • Powered by

Catford Area Guide

Explore the areas we serve – from parks, entertainment and transport links, to shopping, eating and drinking.

Dive into property knowledge

Visit the AcornIntel knowledge-base, our library of articles to help you make sense of all things property, or send your questions to our panel of property experts.

Get your property valued

Looking to sell or let your property? Get a free property valuation from one of our experts.

Top