The Acorn Group is London’s largest multi-brand estate agency. We offer our clients the best brands, with the best people, in the best locations.

 

Close

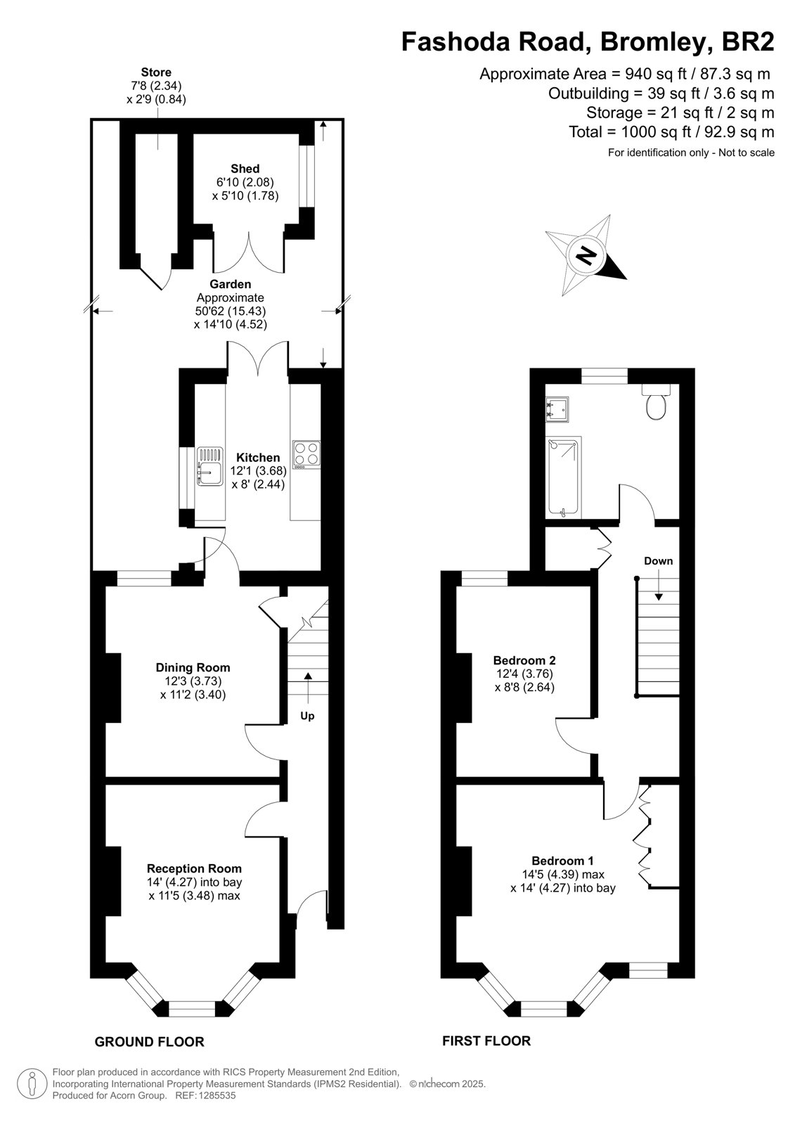
Asking price £600,000 freehold

Semi-detached House - Fashoda Road, BR2

Situated within the heart of Chatterton Village, one of Bromley's most desirable locations, is this two double bedroom semi-detached house.

This property has recently been thoughtfully refurbished to an exceptional standard, including new sash windows to the front, Crittall doors to the rear, brand new combi boiler system and column radiators, brand new flooring throughout, and a recently installed stylish shaker kitchen with fitted appliances.
The ground floor comprises of two good sized reception rooms. The front living room features engineered oak parquet flooring with panelling detailing on the walls.
On the first floor there are two double bedrooms, both beautifully decorated. The master has large fitted wardrobes and a Victorian feature fireplace.

To the rear the 50ft south-west facing garden includes a stylish wooden summerhouse and a large spacious newly fitted limestone patio for entertaining.

Fashoda road is a popular residential road situated within easy reach of the town centre offering an array of shops and restaurants. Bromley South Station is within close proximity and offers connections into London Victoria (in under 20 minutes) and Blackfriars. Local schools include the outstanding Raglan Primary School and Bullers Wood and Ravensbourne for secondary.

London Borough of Bromley - Council Tax Band - D
Energy Efficiency Rating - D

Talk to Jake Fahey from Langford Russell (Estate agents in Bromley)

 

Use our calculator to work out potential mortgage repayments and stamp duty costs. Please note, these calculators are for general interest only and must not be relied on. Speak to our Mortgage Scout team for further information and advice. 

Powered by

Total Mortgage

£

Estimated Monthly Mortgage Payment

£

  • Powered by

Bromley Area Guide

Explore the areas we serve – from parks, entertainment and transport links, to shopping, eating and drinking.

Dive into property knowledge

Visit the AcornIntel knowledge-base, our library of articles to help you make sense of all things property, or send your questions to our panel of property experts.

Get your property valued

Looking to sell or let your property? Get a free property valuation from one of our experts.

Top