The Acorn Group is London’s largest multi-brand estate agency. We offer our clients the best brands, with the best people, in the best locations.

 

Close

OIEO £450,000 freehold

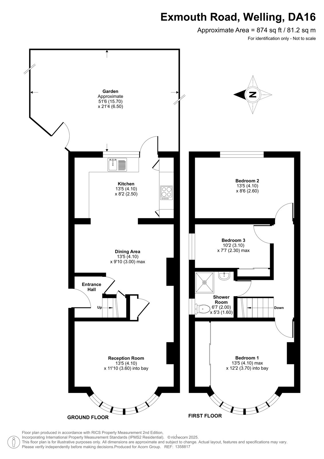
Semi-detached House for sale - Exmouth Road, DA16

Acorn are delighted to welcome to the market this extended three bedroom Semi-Detached Stevens house.

Having benefitted from a two-storey rear extension, the accommodation comprises front reception room with rounded bay window, dining area leading onto the fitted kitchen in the extension. The first floor comprises three well proportioned bedrooms with fitted wardrobes to the main bedroom and family shower room.

Externally, this home offers the potential for off street parking, and a 51ft Easterly facing rear garden with paved patio area. This property does require some modernisation but is offered chain free.

Welling has fast become very desirable and offers everything you would expect from a local high street, including a wide range of supermarkets, shops, restaurants, and pubs. Transport links are plentiful with bus routes to surrounding areas including Bexleyheath, Blackheath, North Greenwich (The O2), Bluewater, and Abbey Wood with the Elizabeth Line.

Council Tax Band - D
Tenure - Freehold

Talk to Matthew King from Acorn (Estate agents in Welling)

 

Use our calculator to work out potential mortgage repayments and stamp duty costs. Please note, these calculators are for general interest only and must not be relied on. Speak to our Mortgage Scout team for further information and advice. 

Powered by

Total Mortgage

£

Estimated Monthly Mortgage Payment

£

  • Powered by

Welling Area Guide

Explore the areas we serve – from parks, entertainment and transport links, to shopping, eating and drinking.

Dive into property knowledge

Visit the AcornIntel knowledge-base, our library of articles to help you make sense of all things property, or send your questions to our panel of property experts.

Get your property valued

Looking to sell or let your property? Get a free property valuation from one of our experts.

Top