The Acorn Group is London’s largest multi-brand estate agency. We offer our clients the best brands, with the best people, in the best locations.

 

Close

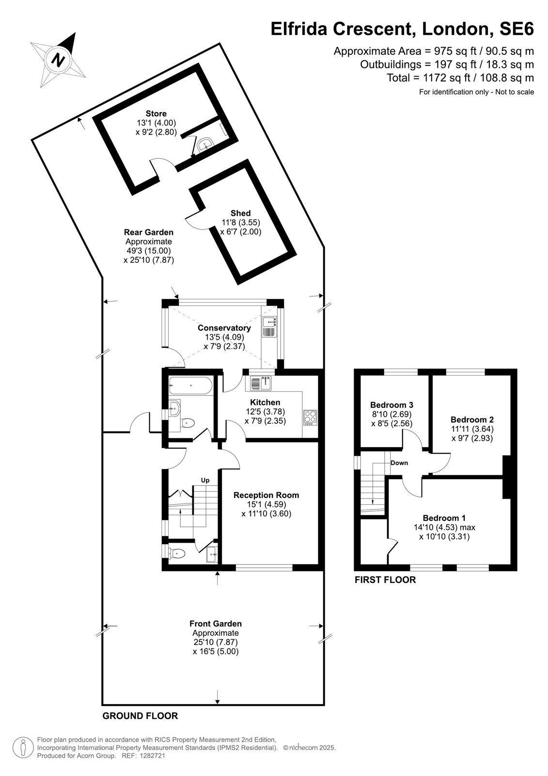
Asking price £425,000 freehold

Semi-detached House - Elfrida Crescent, SE6

Acorn are delighted to welcome to the market this well-proportioned Semi Detached family home, located well for schools, parks and transport links.

Located within walking distance of Lower Sydenham, Beckenham Hill and Bellingham Rail Stations, the house is also within reach of the picturesque Beckenham Place Park.

The ground floor accommodation comprises WC, family bathroom, large lounge diner, fitted modern kitchen and rear conservatory. The first floor comprises three good size bedrooms and loft access.

Externally, the house offers both front and rear gardens, with the rear garden offering an outbuilding with power.

Talk to Jake Blackman from Acorn (Estate agents in Catford)

 

Use our calculator to work out potential mortgage repayments and stamp duty costs. Please note, these calculators are for general interest only and must not be relied on. Speak to our Mortgage Scout team for further information and advice. 

Powered by

Total Mortgage

£

Estimated Monthly Mortgage Payment

£

  • Powered by

Catford Area Guide

Explore the areas we serve – from parks, entertainment and transport links, to shopping, eating and drinking.

Dive into property knowledge

Visit the AcornIntel knowledge-base, our library of articles to help you make sense of all things property, or send your questions to our panel of property experts.

Get your property valued

Looking to sell or let your property? Get a free property valuation from one of our experts.

Top