The Acorn Group is London’s largest multi-brand estate agency. We offer our clients the best brands, with the best people, in the best locations.

 

Close

Guide price £600,000 freehold

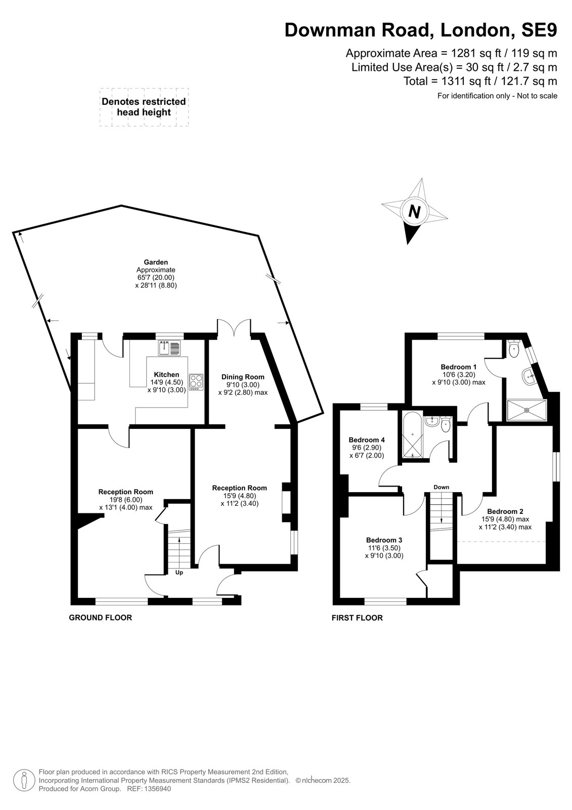
Semi-detached House for sale - Downman Road, SE9

** GUIDE PRICE £600,000 - £625,000 **

Situated in the heart of the sought-after and historic Progress Estate in SE9, this generously proportioned four-bedroom, two-bathroom semi-detached home presents a rare opportunity to own a unique model of Progress house—offering more internal space than most properties in the area.

Offered to the market chain free and recently repainted throughout, the home is ready for immediate occupation, making it an ideal choice for families, upsizers, or those looking to settle in a well-connected and characterful neighbourhood.

The ground floor features two bright and spacious reception rooms. One is dual aspect, allowing plenty of natural light, and opens through French doors onto a south easterly facing rear garden, creating a perfect indoor-outdoor flow. The second reception room leads seamlessly into a large kitchen/diner, which also provides direct access to the garden—ideal for entertaining or everyday family living.

Upstairs, the home offers four well-sized bedrooms, including one with its own en suite shower room, alongside a modern family bathroom.

Additional benefits include off-street parking, side access to the rear garden, and modern comforts such as double glazing and gas central heating.
The Progress Estate is renowned for its peaceful surroundings, strong community feel, and distinctive architecture. With excellent local amenities, reputable schools, and convenient transport links all within easy reach, this is a fantastic opportunity to secure a spacious and charming home in one of SE9’s most desirable locations.

The property is located on a quiet residential street within the Progress Estate Conservation Area within close proximity to a variety of great schools, primary and secondary. Eltham Train Station is just 0.6 miles away and offers which offers fast and frequent direct services into London Bridge, Waterloo East, Cannon Street, Charing Cross & London Victoria. Eltham High Street can be found a short distance away and offers comprehensive shopping, bars, restaurants and the recently built Vue cinema.

The Borough of Greenwich - Council Tax Band - D
Energy Efficiency Rating - D

Talk to Oliver Henness from John Payne (Estate agents in Eltham)

 

Use our calculator to work out potential mortgage repayments and stamp duty costs. Please note, these calculators are for general interest only and must not be relied on. Speak to our Mortgage Scout team for further information and advice. 

Powered by

Total Mortgage

£

Estimated Monthly Mortgage Payment

£

  • Powered by

Eltham Area Guide

Explore the areas we serve – from parks, entertainment and transport links, to shopping, eating and drinking.

Dive into property knowledge

Visit the AcornIntel knowledge-base, our library of articles to help you make sense of all things property, or send your questions to our panel of property experts.

Get your property valued

Looking to sell or let your property? Get a free property valuation from one of our experts.

Top