The Acorn Group is London’s largest multi-brand estate agency. We offer our clients the best brands, with the best people, in the best locations.

 

Close

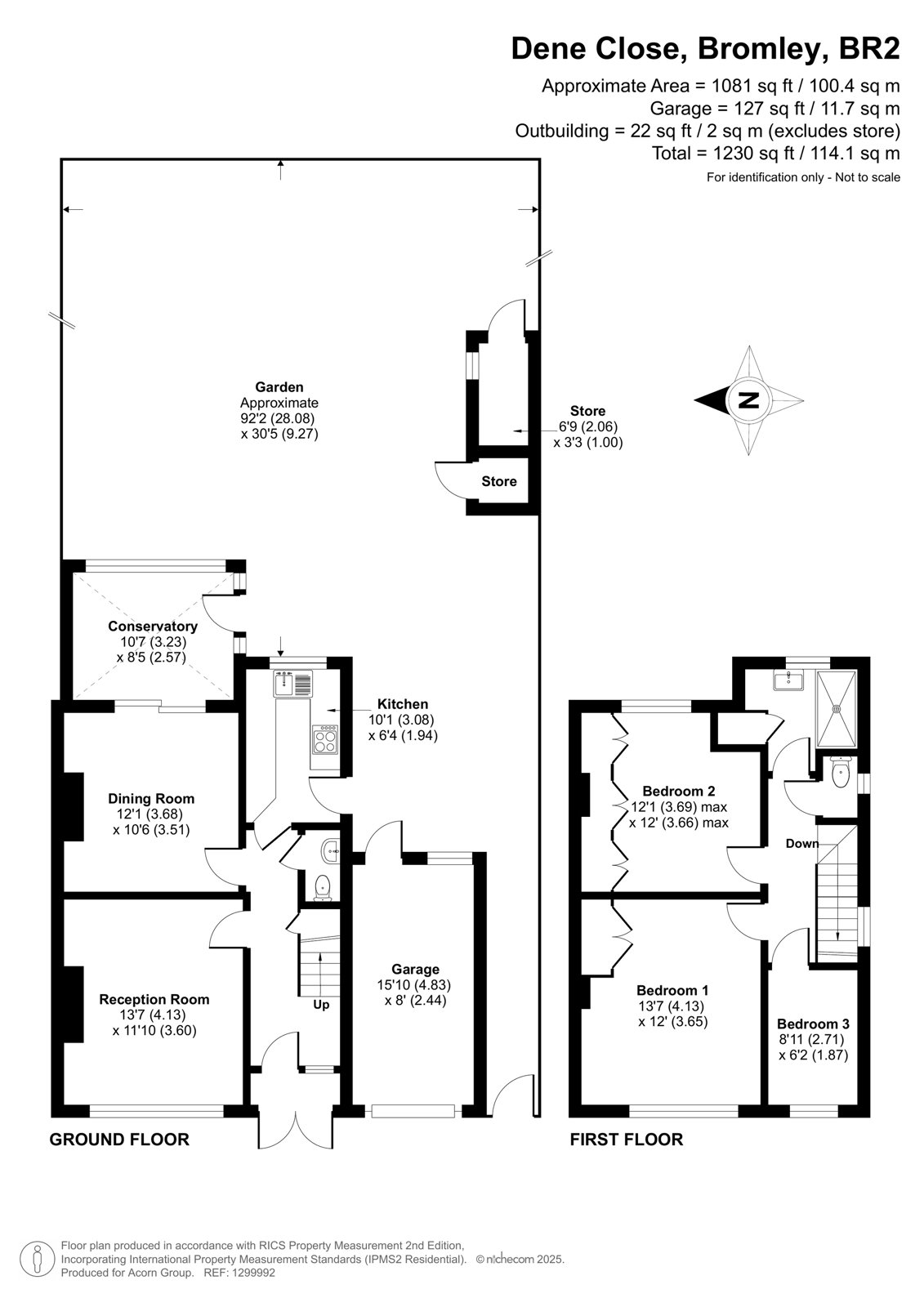
Asking price £675,000 freehold

Semi-detached House for sale - Dene Close, BR2

Situated in the heart of Hayes on a quiet cul-de sac is this three-bedroom semi-detached family home.

Internally the property comprises of, porch, hallway, spacious reception room, WC, dining room with sliding doors leading to the conservatory and a well designed kitchen offering ample storage and side access . The upstairs accommodation offers, three well-proportioned bedrooms two of which feature built in wardrobes, fully tiled shower room with generous built in storage and separate WC. Other benefits include, large mature rear garden with multiple fruit trees, off street parking, garage and substantial potential to extend (STPP). Having been in the same family for almost 60 years, the house is likely to require some updating.

The property is situated in close proximity to Hayes High Street where there is an array of bars and restaurants as well as local shops and conveniences on your doorstep. There are also frequent transport links to London Bridge, Waterloo East, London Charing Cross and Cannon Street via Hayes Station (0.2 miles away). The property also offers families an excellent schooling catchment, including the outstanding Hayes School as well as many other highly regarded schools in the area such as Pickhurst Academy.

Tenure - Freehold
Council Tax Band - E

Talk to Steven Mullins from Langford Russell (Estate agents in West Wickham)

 

Use our calculator to work out potential mortgage repayments and stamp duty costs. Please note, these calculators are for general interest only and must not be relied on. Speak to our Mortgage Scout team for further information and advice. 

Powered by

Total Mortgage

£

Estimated Monthly Mortgage Payment

£

  • Powered by

West Wickham Area Guide

Explore the areas we serve – from parks, entertainment and transport links, to shopping, eating and drinking.

Dive into property knowledge

Visit the AcornIntel knowledge-base, our library of articles to help you make sense of all things property, or send your questions to our panel of property experts.

Get your property valued

Looking to sell or let your property? Get a free property valuation from one of our experts.

Top