The Acorn Group is London’s largest multi-brand estate agency. We offer our clients the best brands, with the best people, in the best locations.

 

Close

OIEO £450,000 freehold

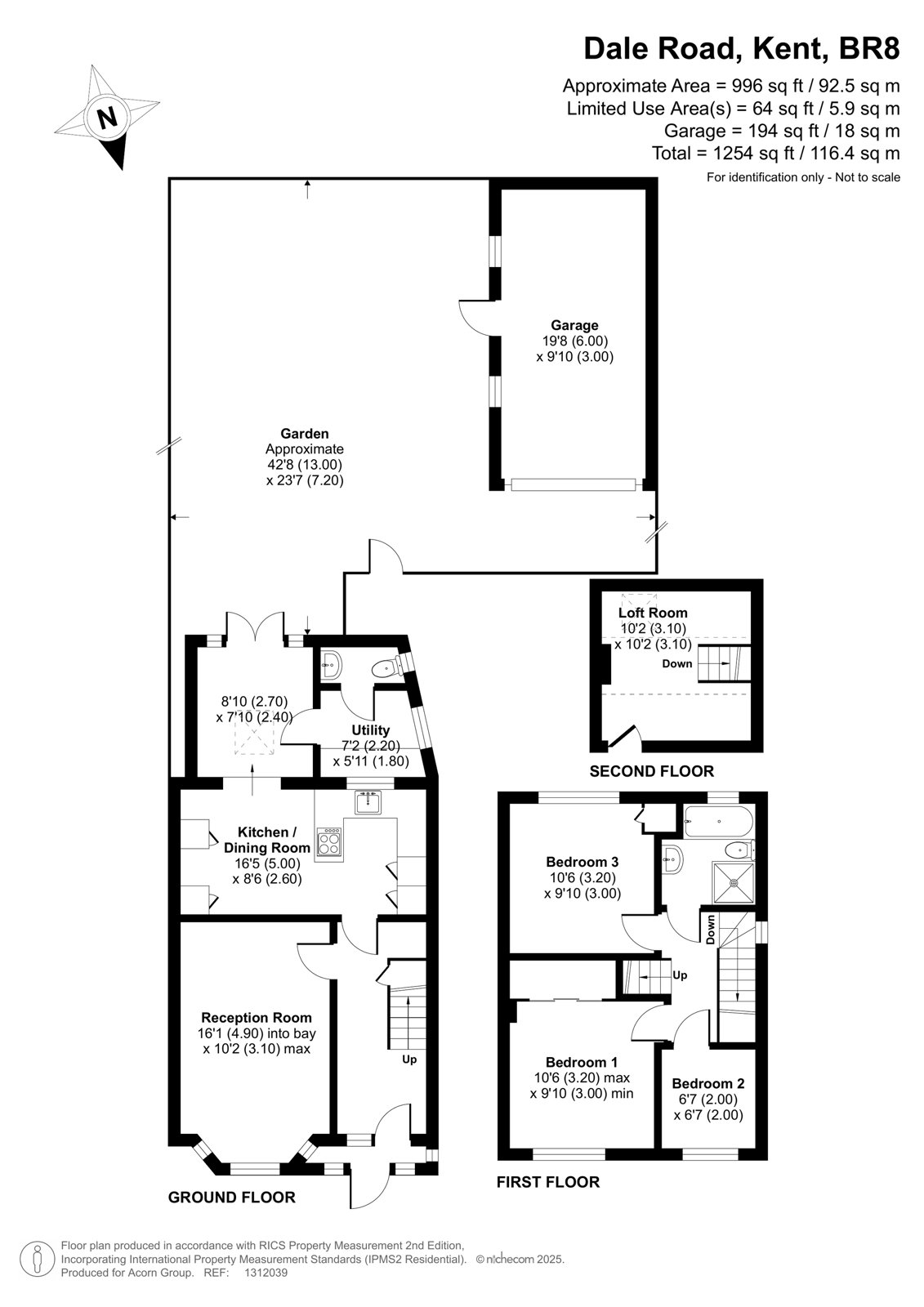
Semi-detached House for sale - Dale Road, Kent, BR8

Langford Russell Swanley are delighted to offer this deceptively spacious three bedroom extended semi-detached family home, set in a quiet residential cul-de-sac road in a very easily accessible location. Property is in the heart of Swanley, nearby you will find the town centre with its array of shops, restaurants and public transport links. The Swanley mainline station is only a ten-minute walk away and takes you directly into Central London in approximately twenty minutes, station within the Oyster Zone.

Nearby, you will find the recently re-generated Whiteoak Leisure Centre and the ever popular Swanley Boat Park both within walking distance, local schools, bus routes and more.

Further to note, there are some great local primary and secondary schools to suit families of all ages.

Property comprises to the ground floor - entrance hall, reception, modern fitted neutral kitchen / breakfast room opening into dining room, ground floor cloakroom and utility room.

To the first floor - landing, three bedrooms, modern family bathroom and loft room.

Externally, you will find off street parking for two / three vehicles, a shared access to the side leading to rear garden with garage to rear.

Please note, this house offers double glazing and gas central heating. Ideal for any family looking for a home in a great central location.

Tenure – Freehold | Council Tax Band - D | EPC D

Talk to Hayley Buist from Langford Russell (Estate agents in Swanley)

 

Use our calculator to work out potential mortgage repayments and stamp duty costs. Please note, these calculators are for general interest only and must not be relied on. Speak to our Mortgage Scout team for further information and advice. 

Powered by

Total Mortgage

£

Estimated Monthly Mortgage Payment

£

  • Powered by

Swanley Area Guide

Explore the areas we serve – from parks, entertainment and transport links, to shopping, eating and drinking.

Dive into property knowledge

Visit the AcornIntel knowledge-base, our library of articles to help you make sense of all things property, or send your questions to our panel of property experts.

Get your property valued

Looking to sell or let your property? Get a free property valuation from one of our experts.

Top