The Acorn Group is London’s largest multi-brand estate agency. We offer our clients the best brands, with the best people, in the best locations.

 

Close

OIEO £650,000 freehold

Semi-detached House - Daerwood Close, BR2

Offered with no onward chain, this extended four-bedroom family home is tucked away at the end of a quiet residential cul-de-sac, ideally located for access to local amenities and excellent transport links connecting to Orpington and Bromley.

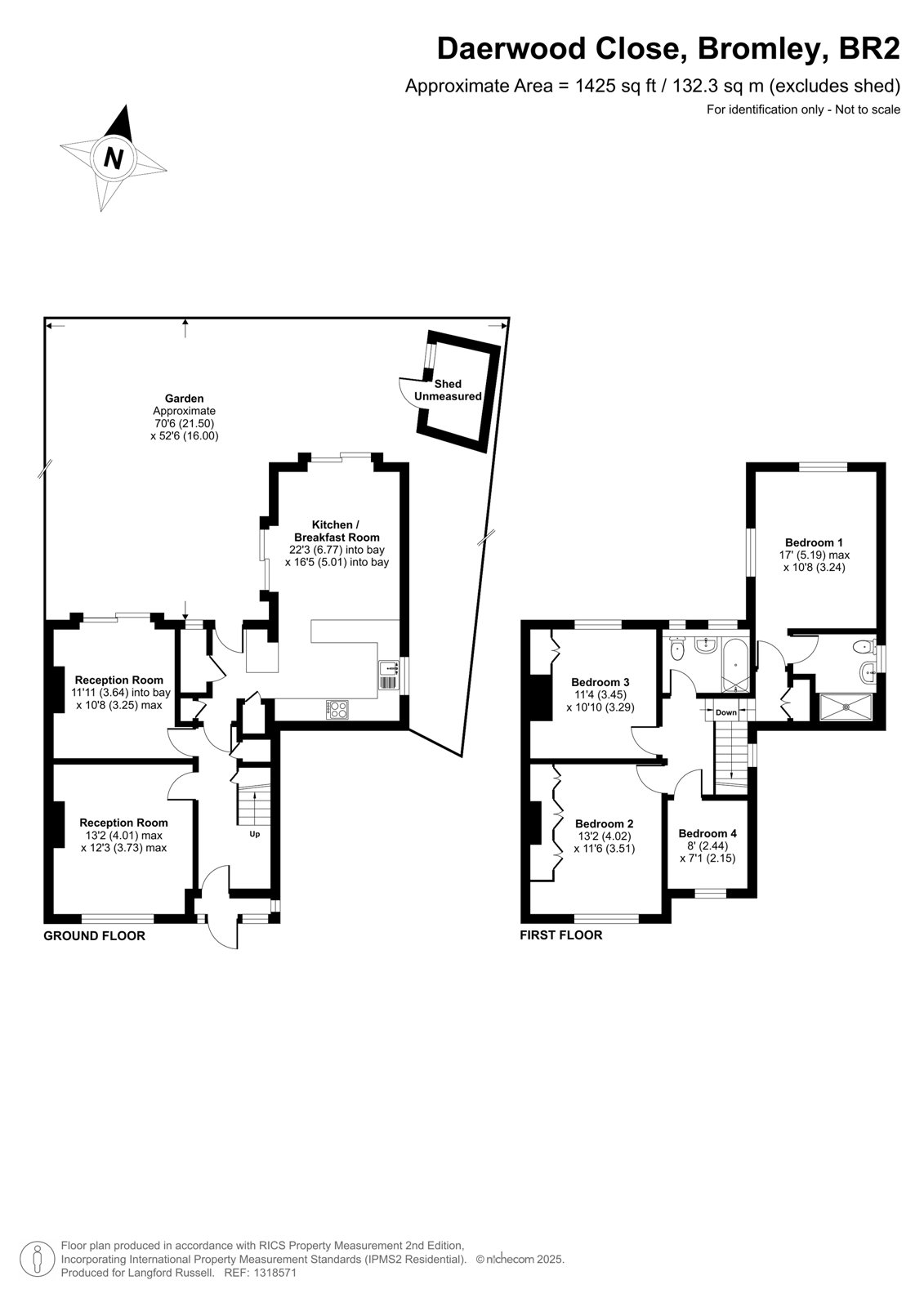
The home offers spacious and well-maintained living accommodation, beginning with an inviting entrance hallway featuring handy storage under the stairs. Two sizeable reception rooms each enjoy their own character, complete with attractive fireplaces, while a convenient two-piece cloakroom adds practicality. At the rear of the home, a bright and airy kitchen/breakfast room forms a natural gathering point for the family. With dual patio doors opening onto the garden, this space is bathed in natural light—perfect for entertaining or everyday living. The kitchen itself is fitted with a wide range of modern units, granite worktops, and space for a dishwasher and American-style fridge/freezer.

Upstairs, the property boasts three well-proportioned double bedrooms—each with fitted wardrobes—as well as a fourth single bedroom that would work well as a home office. The master bedroom enjoys a dual-aspect layout, a private en-suite shower room, and a dressing area. A stylish three-piece family bathroom serves the remaining bedrooms, with both bathrooms featuring contemporary white suites.

Positioned in a sought-after location, the property is within close proximity to well-respected schools, local shops on Hastings Road, the shopping hub of Locksbottom, the Princess Royal University Hospital, and bus routes serving both Bromley South and Orpington town centres and train stations.

Occupying a wider plot than most, thanks to its end-of-cul-de-sac position, the garden is generously sized and mainly laid to lawn, surrounded by mature trees and shrubs for added privacy. A sheltered paved patio area directly behind the house offers the perfect setting for summer dining or quiet relaxation.

Tenure - Freehold
Council Tax London Borough Of Bromley Tax Band - E
Energy Efficiency Rating - D

Talk to Oliver Pettman from Langford Russell (Estate agents in Locksbottom)

 

Use our calculator to work out potential mortgage repayments and stamp duty costs. Please note, these calculators are for general interest only and must not be relied on. Speak to our Mortgage Scout team for further information and advice. 

Powered by

Total Mortgage

£

Estimated Monthly Mortgage Payment

£

  • Powered by

Locksbottom Area Guide

Explore the areas we serve – from parks, entertainment and transport links, to shopping, eating and drinking.

Dive into property knowledge

Visit the AcornIntel knowledge-base, our library of articles to help you make sense of all things property, or send your questions to our panel of property experts.

Get your property valued

Looking to sell or let your property? Get a free property valuation from one of our experts.

Top