The Acorn Group is London’s largest multi-brand estate agency. We offer our clients the best brands, with the best people, in the best locations.

 

Close

OIEO £650,000 freehold

Semi-detached House - Cleveland Road, DA16

Acorn are delighted to welcome to the market this extended five bedroom family home, situated on a quiet cul-de-sac on one of the most popular roads in Welling.

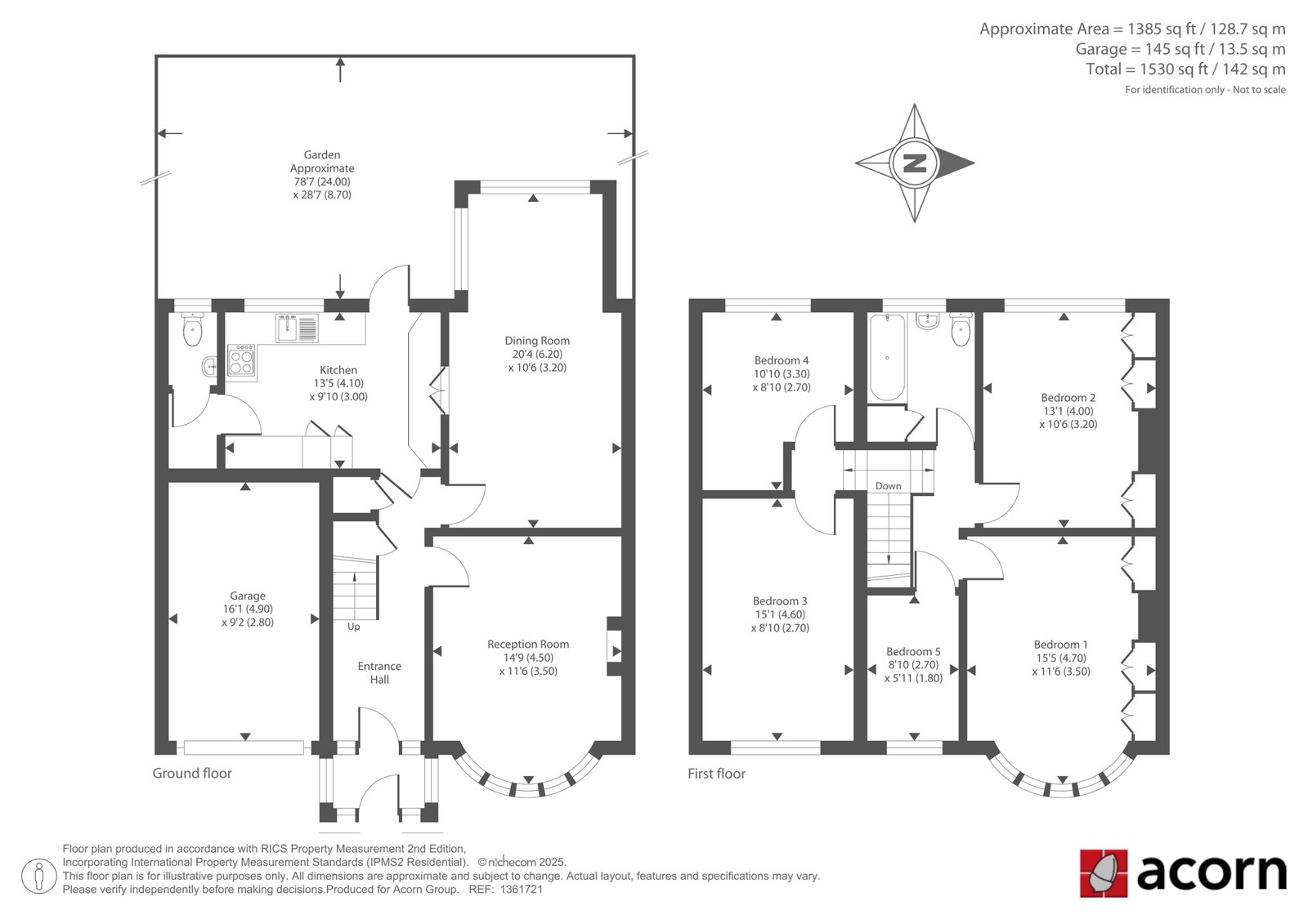
Requiring updating throughout this property gives someone the opportunity to put their own stamp on the property and is offered chain free. The accommodation consists of on the ground floor, entrance hallway leading through to reception room with rounded bay window, 20ft extended dining room, WC and fitted kitchen. The first floor comprises five well-proportioned bedrooms and family three piece bathroom suite.

Externally, the house offers ample off street parking to the front, garage to side and a 78ft rear garden which is mainly lawn with paved patio area. There is additional scope for further extensions, which could include a rear extension and loft conversion subject to the necessary planning consents.

Welling has fast become very desirable and offers everything you would expect from a local high street, including a wide range of supermarkets, shops, restaurants and pubs. Transport links are plentiful with bus routes to surrounding areas including Bexleyheath, Blackheath, North Greenwich (The O2) Bluewater and Abbey Wood with the Elizabeth Line. Welling Station is 0.2 miles away and offers direct links to London Bridge, Charing Cross, Cannon Street, Waterloo East & Victoria. Changes are possible at Lewisham for the DLR and New Cross for the East London Line. Crook Log Leisure Centre & The Broadway Shopping Centre are also within reasonable distance.

Tenure - Freehold
London Borough of Bexley - Council Tax Band - F
EPC Rating – E

Talk to Matthew King from Acorn (Estate agents in Welling)

 

Use our calculator to work out potential mortgage repayments and stamp duty costs. Please note, these calculators are for general interest only and must not be relied on. Speak to our Mortgage Scout team for further information and advice. 

Powered by

Total Mortgage

£

Estimated Monthly Mortgage Payment

£

  • Powered by

Welling Area Guide

Explore the areas we serve – from parks, entertainment and transport links, to shopping, eating and drinking.

Dive into property knowledge

Visit the AcornIntel knowledge-base, our library of articles to help you make sense of all things property, or send your questions to our panel of property experts.

Get your property valued

Looking to sell or let your property? Get a free property valuation from one of our experts.

Top