The Acorn Group is London’s largest multi-brand estate agency. We offer our clients the best brands, with the best people, in the best locations.

 

Close

Asking price £700,000 freehold

Semi-detached House - Cleveland Road, DA16

Acorn are proud to present this modern semi-detached house in a sought-after neighbourhood on a popular road in Welling.

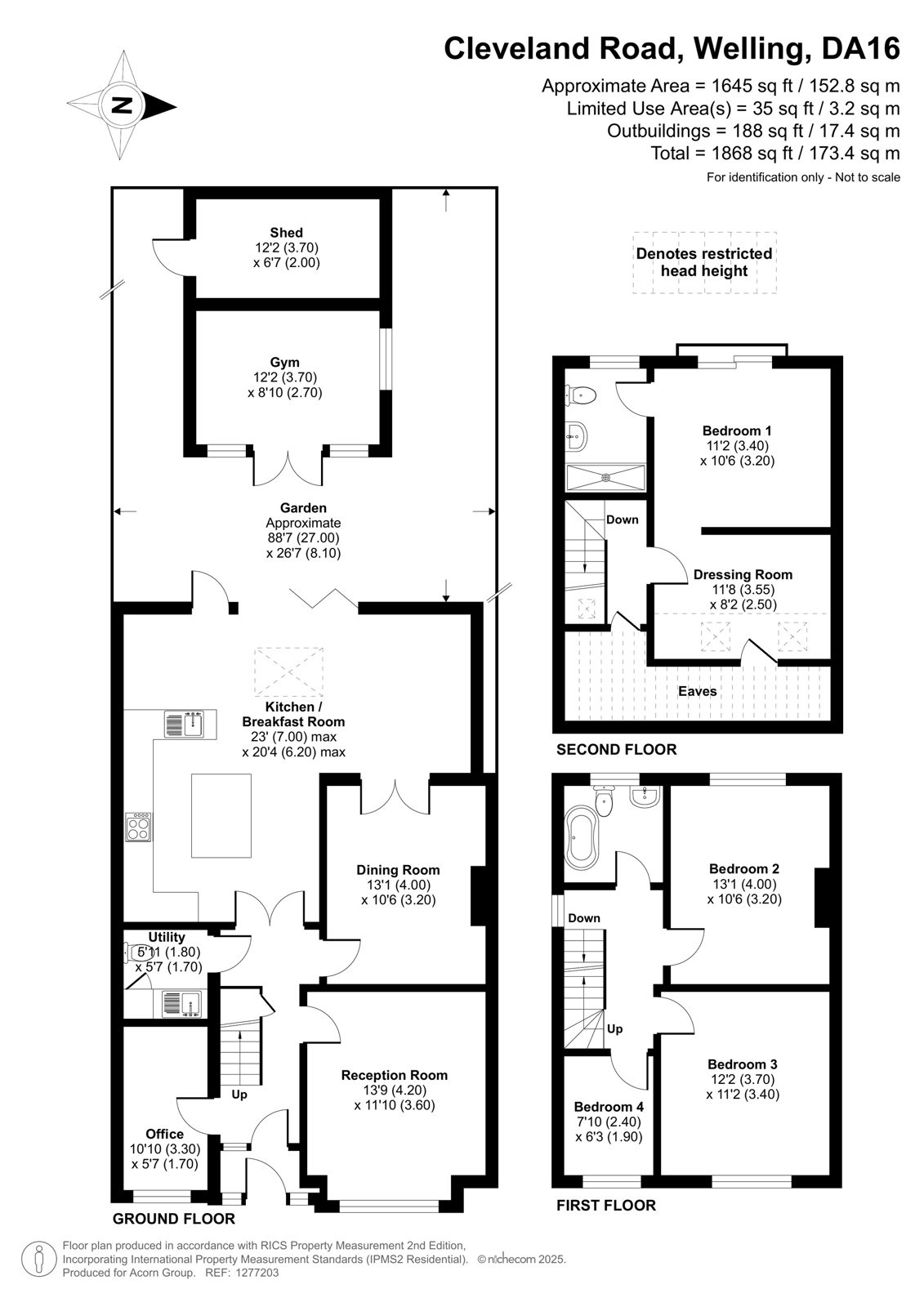
This charming property contains four bedrooms, two reception rooms, and two bathrooms, providing ample living space for a growing family. Spread over three floors, the house is bright and stylish, creating a welcoming and comfortable atmosphere. The modern kitchen is perfect for cooking and entertaining, while the spacious garden offers a peaceful retreat. With off-street parking, this home is both convenient and secure. The property is well-maintained and in a quiet location, making it an ideal place to call home.

The ground floor boasts plenty of space within the office, lounge, dining area, and open plan kitchen. In addition, the downstairs toilet and utility area are vital for convenient living.

The first floor is comprised of three well-proportioned bedrooms as well as a grand family bathroom.

The second floor holds the loft conversion with elegant floor to ceiling windows offering a panoramic scenic view whilst also maintaining function as it contains a walk-in wardrobe and a well-lit ensuite.

The garden is plentiful in size, the bi-folding doors leading from the kitchen to the garden create a seamless flow from internal to external space, perfect for entertaining guests or family gatherings. The summerhouse at the rear of the property is perfect for a cosy atmosphere, or potentially a gym or home office.

Cleveland Road is conveniently located nearby to local amenities, schools, and transport links. Welling Station, being only 0.3 miles away, offers easy access into London Bridge with the train journey taking roughly 30 minutes.

Don't miss out on the opportunity to own this luxurious and inviting property.

Contact us today to arrange a viewing.

Tenure - Freehold
Council Tax Band - E
Energy Efficiency Rating - C

Talk to Matthew King from Acorn (Estate agents in Welling)

 

Use our calculator to work out potential mortgage repayments and stamp duty costs. Please note, these calculators are for general interest only and must not be relied on. Speak to our Mortgage Scout team for further information and advice. 

Powered by

Total Mortgage

£

Estimated Monthly Mortgage Payment

£

  • Powered by

Welling Area Guide

Explore the areas we serve – from parks, entertainment and transport links, to shopping, eating and drinking.

Dive into property knowledge

Visit the AcornIntel knowledge-base, our library of articles to help you make sense of all things property, or send your questions to our panel of property experts.

Get your property valued

Looking to sell or let your property? Get a free property valuation from one of our experts.

Top