The Acorn Group is London’s largest multi-brand estate agency. We offer our clients the best brands, with the best people, in the best locations.

 

Close

Asking price £1,385,000 freehold

Semi-detached House for sale - Boyne Road, SE13

This is an unusually spacious and rarely available, Edwardian double fronted family house which occupies an elevated position at the top end of this popular no through road forming part of the Belmont Conservation Area.
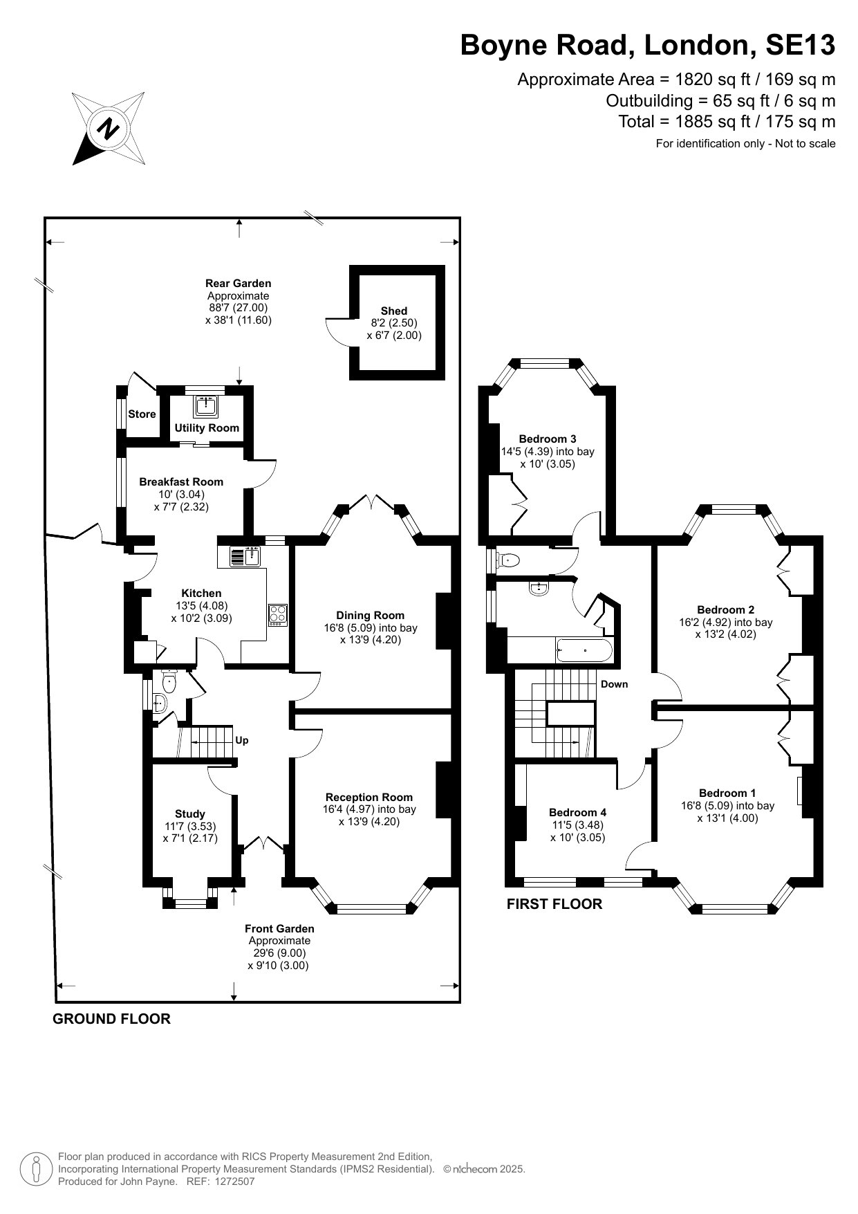
Internally the property offers a host of period features (including fireplaces, original leaded entrance doors, cornice and roses) and provides generous family accommodation arranged over two floors. On the first floor there are four double bedrooms, a bathroom and a seperate WC.
On the ground floor there is a spacious and elegant entrance hall with its feature, original staircase.
The main reception room is at the front of the property with a bright bay window and period fireplace. The dining room is at the rear and provides access and views over the rear garden.
The fitted kitchen is the centre of the house and is easily accessible to both the dining room, a utility area and the breakfast room. Also at the front of the house there is a very useful study and a cloakroom.

Outside there is an attractive, 88 ft elevated rear garden which is beautifully laid to lawn with well planted, mature borders and is easy to maintain.

Situated in Boyne Road, a quiet and popular no through road close to the centre of Lewisham, the property is conveniently placed for easy access to Lewisham mainline and Docklands Light Railway stations. Blackheath Village with its host of restaurants, shops and boutiques and mainline station is also within easy reach.

London Borough of Lewisham - Council Tax Band - F
Energy Efficiency Rating - D

Talk to Richard O'Toole from John Payne (Estate agents in Blackheath)

 

Use our calculator to work out potential mortgage repayments and stamp duty costs. Please note, these calculators are for general interest only and must not be relied on. Speak to our Mortgage Scout team for further information and advice. 

Powered by

Total Mortgage

£

Estimated Monthly Mortgage Payment

£

  • Powered by

Blackheath Area Guide

Explore the areas we serve – from parks, entertainment and transport links, to shopping, eating and drinking.

Dive into property knowledge

Visit the AcornIntel knowledge-base, our library of articles to help you make sense of all things property, or send your questions to our panel of property experts.

Get your property valued

Looking to sell or let your property? Get a free property valuation from one of our experts.

Top