The Acorn Group is London’s largest multi-brand estate agency. We offer our clients the best brands, with the best people, in the best locations.

 

Close

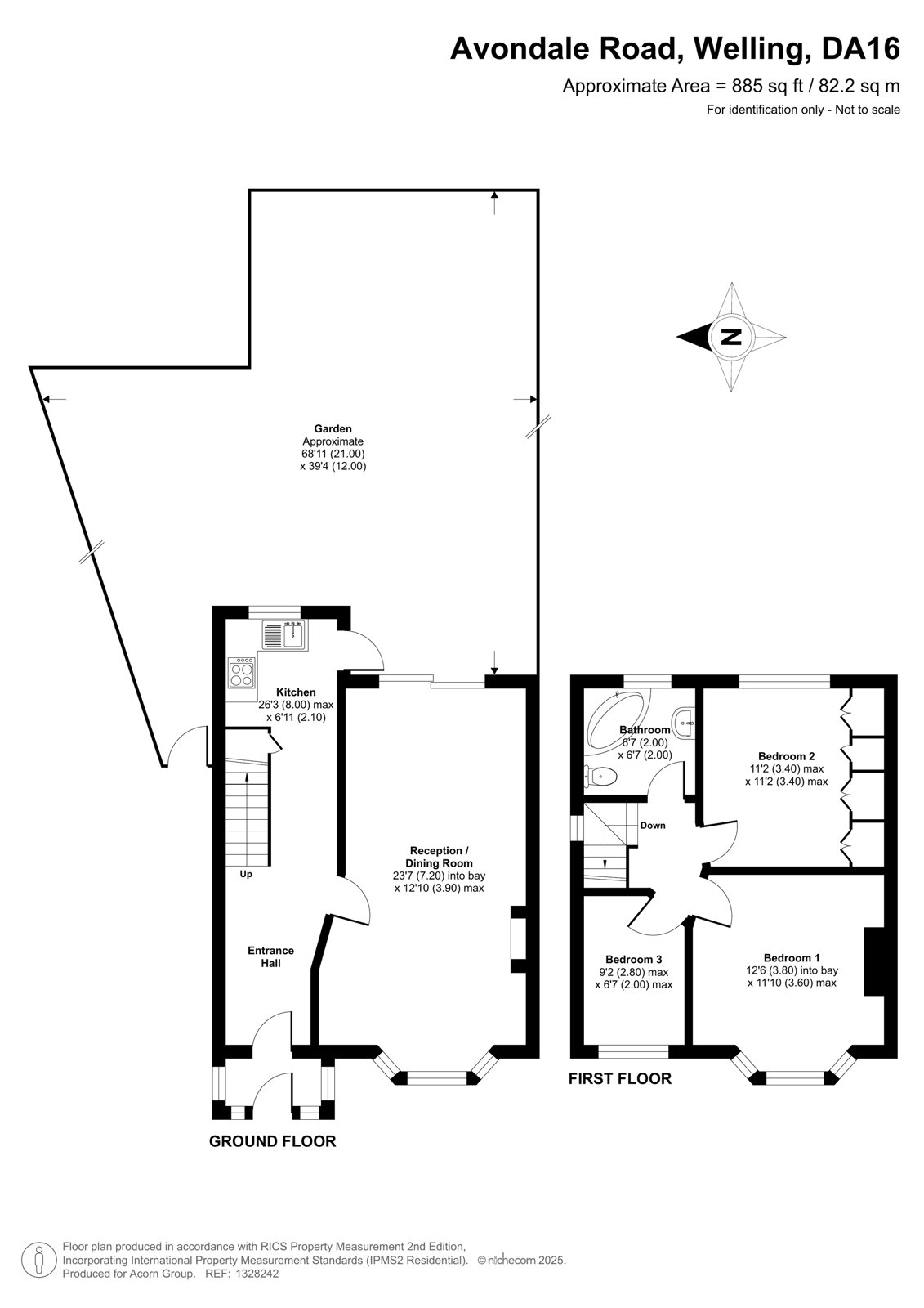
OIEO £450,000 freehold

Semi-detached House - Avondale Road, DA16

Acorn are delighted to welcome to the market this three bedroom Semi-Detached family house located on a popular road in Welling.

Offered with no onward chain the property comprises of porch, entrance hall, 23ft through lounge and fitted kitchen leading onto the rear garden. To the first floor are two double bedrooms, one single bedroom and family bathroom.

Externally the property benefits from off street parking at the rear of the garden accessed off of Stevedale Road, and the 68ft Easterly facing rear garden is mainly laid to lawn with two paved patio areas. There is lots of potential with scope to extend to the side and rear, subject to the necessary planning consents.

Avondale Road is conveniently located for the amenities of Welling and Bexleyheath as well as numerous local schools. The local area has fast become very desirable and offers everything you would expect from a local high street, including a wide range of supermarkets, shops, restaurants, and pubs. Transport links are plentiful with bus routes to surrounding areas including Bexleyheath, Blackheath, North Greenwich (The O2), Bluewater, and Abbey Wood with the Elizabeth Line. Bexleyheath Station is 0.7 miles away and Welling Station is 0.9 miles away. Both stations offer direct links to London Bridge, Charing Cross, Cannon Street, Waterloo East, and Victoria. Changes are possible at Lewisham for the DLR and New Cross, for the East London Line. Crook Log Leisure Centre and The Broadway Shopping Centre are also within a reasonable distance.

Tenure - Freehold
London Borough of Bexley - Council Tax Band - D
Energy Efficiency Rating – D

Talk to Matthew King from Acorn (Estate agents in Welling)

 

Use our calculator to work out potential mortgage repayments and stamp duty costs. Please note, these calculators are for general interest only and must not be relied on. Speak to our Mortgage Scout team for further information and advice. 

Powered by

Total Mortgage

£

Estimated Monthly Mortgage Payment

£

  • Powered by

Welling Area Guide

Explore the areas we serve – from parks, entertainment and transport links, to shopping, eating and drinking.

Dive into property knowledge

Visit the AcornIntel knowledge-base, our library of articles to help you make sense of all things property, or send your questions to our panel of property experts.

Get your property valued

Looking to sell or let your property? Get a free property valuation from one of our experts.

Top