The Acorn Group is London’s largest multi-brand estate agency. We offer our clients the best brands, with the best people, in the best locations.

 

Close

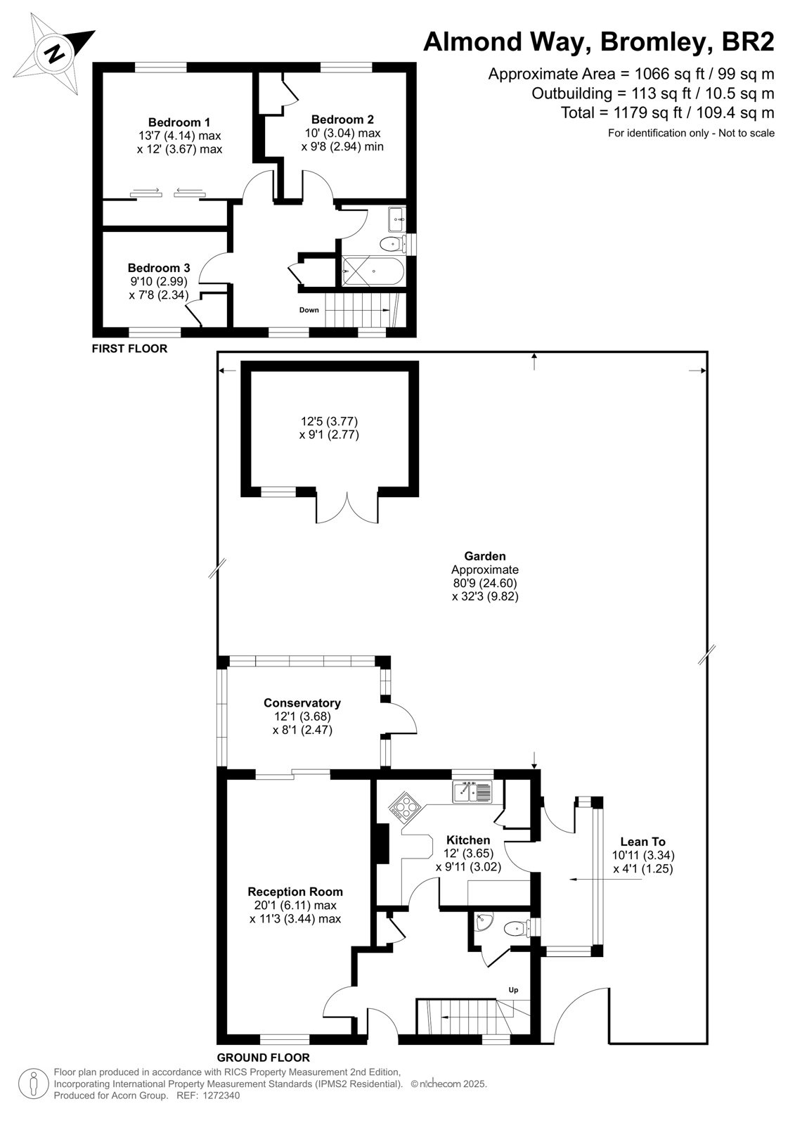
Asking price £550,000 freehold

Semi-detached House - Almond Way, BR2

This well presented three-bedroom semi-detached house is located on a quiet residential road between Bickley and Petts Wood and boasts in excess of 1,100 square feet internal living space.

Internally comprising; a spacious fitted kitchen overlooking the garden, a large 20'1 x 11'3 reception room, conservatory and a downstairs WC. Upstairs there are three double bedrooms, with a newly fitted family bathroom and ample storage in the hall.

Almond Way is well located for Petts Wood Station with services into Victoria, Blackfriars, London Bridge, Cannon Street and Charing Cross. Numerous highly regarded local schools include St James RC, Crofton and Southborough primary schools.

Energy Efficiency Rating C | Council Tax London Borough Of Bromley Band D

Talk to Jake Fahey from Langford Russell (Estate agents in Bromley)

 

Use our calculator to work out potential mortgage repayments and stamp duty costs. Please note, these calculators are for general interest only and must not be relied on. Speak to our Mortgage Scout team for further information and advice. 

Powered by

Total Mortgage

£

Estimated Monthly Mortgage Payment

£

  • Powered by

Bromley Area Guide

Explore the areas we serve – from parks, entertainment and transport links, to shopping, eating and drinking.

Dive into property knowledge

Visit the AcornIntel knowledge-base, our library of articles to help you make sense of all things property, or send your questions to our panel of property experts.

Get your property valued

Looking to sell or let your property? Get a free property valuation from one of our experts.

Top