The Acorn Group is London’s largest multi-brand estate agency. We offer our clients the best brands, with the best people, in the best locations.

 

Close

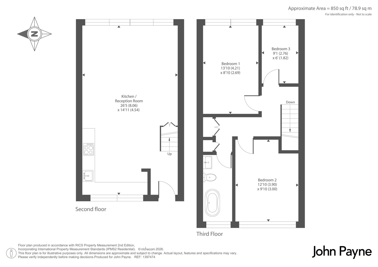
Guide price £375,000 leasehold

Maisonette for sale - Tarnwood Park, SE9

*Guide Price £375,000 to £400,000*

Situated within the highly sought after Tarnwood Park private estate, this beautifully presented split level ground floor maisonette offers spacious, light filled and well balanced accommodation, finished to a high standard throughout. The living space is impressively open and airy feel with pleasant views over the well maintained communal gardens, while the original parquet flooring adds character and charm.

The current layout comprises a welcoming entrance hall with useful storage and a bright, open plan living area which flows seamlessly into the kitchen. Upstairs, the property offers two generously sized double bedrooms alongside a further well proportioned third bedroom, complemented by a well appointed family bathroom.

Mottingham Station is conveniently located approximately 0.2 miles away, offering direct services into London Bridge, Waterloo East, Charing Cross, and Cannon Street, with additional connections available via Lewisham for the DLR and New Cross for the London Overground.

The property is well positioned for a selection of highly regarded schools, including Eltham College, Dorset Road Infant School, Mottingham Primary School, and the Outstanding-rated St Vincent’s Catholic Primary School, all within easy walking distance.

Residents can also enjoy a wealth of nearby green spaces, including Foxes Fields, King John Playing Fields, The Tarn Bird Sanctuary, Fairy Hill Recreation Ground, and direct access to the Green Chain Walk, with Eltham Palace also close by for further leisure and exploration.


Lease - 999 years from 9th May 1990 (963 years remaining)
Service Charge - £1,200 PA
Ground Rent - £18 PA
The Royal Borough of Greenwich - Council Tax Band - C
Energy Efficiency Rating - C

Talk to Oliver Henness from John Payne (Estate agents in Eltham)

 

Use our calculator to work out potential mortgage repayments and stamp duty costs. Please note, these calculators are for general interest only and must not be relied on. Speak to our Mortgage Scout team for further information and advice. 

Powered by

Total Mortgage

£

Estimated Monthly Mortgage Payment

£

  • Powered by

Eltham Area Guide

Explore the areas we serve – from parks, entertainment and transport links, to shopping, eating and drinking.

Dive into property knowledge

Visit the AcornIntel knowledge-base, our library of articles to help you make sense of all things property, or send your questions to our panel of property experts.

Get your property valued

Looking to sell or let your property? Get a free property valuation from one of our experts.

Top