The Acorn Group is London’s largest multi-brand estate agency. We offer our clients the best brands, with the best people, in the best locations.

 

Close

OIEO £400,000 leasehold

Maisonette for sale - Stanstead Road, SE23

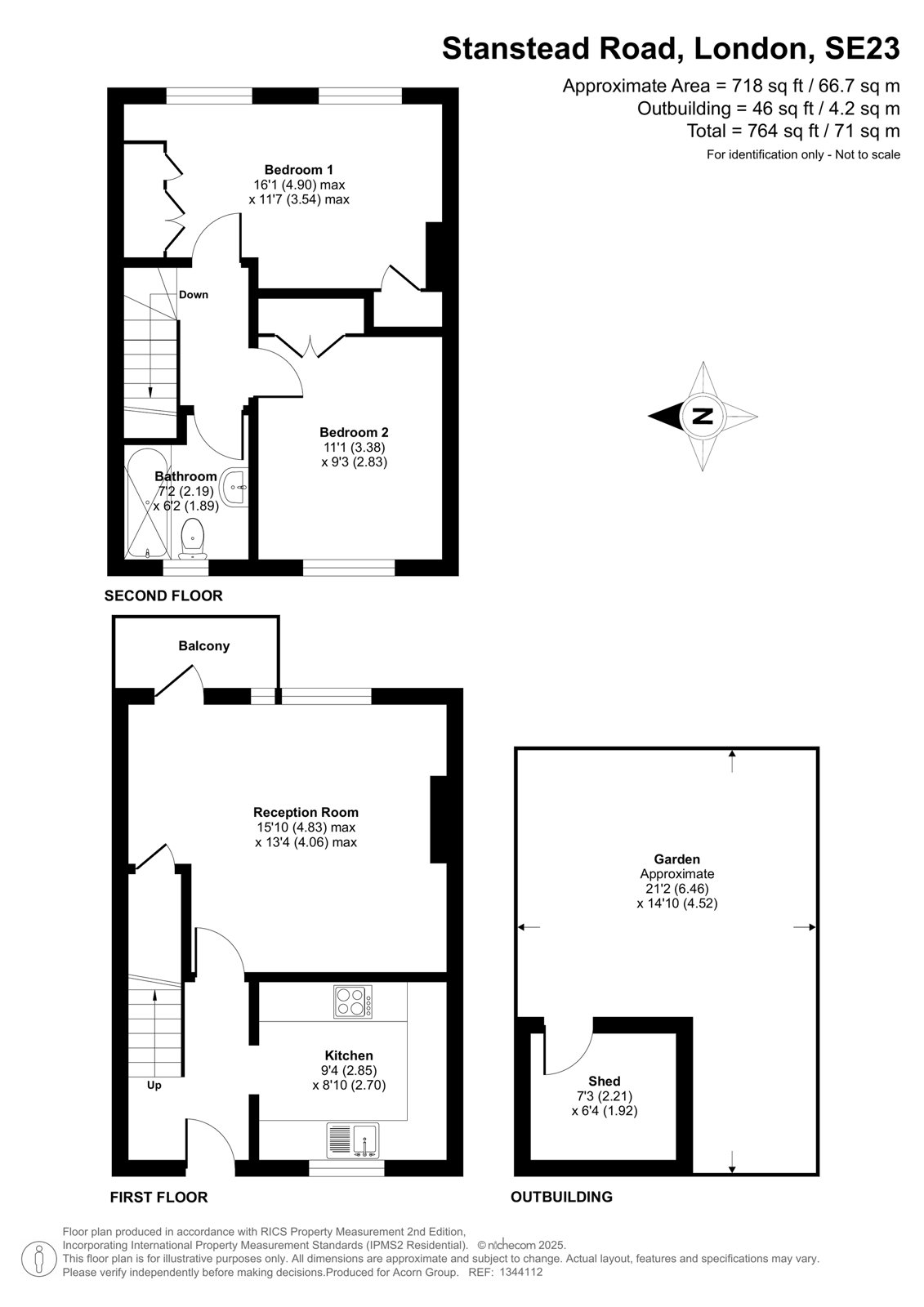
Acorn are delighted to present to the SE23 market this bright and airy two bedroom split level flat that surpasses 764sqft / 71sqm offered in excellent decorative order throughout.

Tastefully designed, the property benefits from its own private entrance and a well thought out layout across two levels. The fully fitted kitchen includes a handy breakfast bar, while the spacious reception room easily accommodates both a sitting area and dining space ideal for entertaining or relaxing at home. Upstairs, there are two generously sized double bedrooms and a modern family bathroom. Further benefits include a private balcony and a secluded private garden, providing valuable outdoor space.

Located on a quiet residential street in the heart of Forest Hill, the flat is just a short walk from Forest Hill station (around 5 minutes), offering quick and easy links into London Bridge (10 minutes) , Shoreditch, and beyond via the Overground and Southern services. The area is well known for its green spaces and community feel, with the popular Horniman Museum & Gardens and a range of independent cafés, shops, and amenities nearby.

This is a fantastic opportunity to secure a home in one of South East London’s most desirable neighbourhoods.

Leasehold: 174 years (End date: 25 November 2199) | Service Charge: £1274 | Ground Rent: £10 | Council Tax: B | EPC: C

Talk to Nellie Fantham from Acorn (Estate agents in Forest Hill)

 

Use our calculator to work out potential mortgage repayments and stamp duty costs. Please note, these calculators are for general interest only and must not be relied on. Speak to our Mortgage Scout team for further information and advice. 

Powered by

Total Mortgage

£

Estimated Monthly Mortgage Payment

£

  • Powered by

Forest Hill Area Guide

Explore the areas we serve – from parks, entertainment and transport links, to shopping, eating and drinking.

Dive into property knowledge

Visit the AcornIntel knowledge-base, our library of articles to help you make sense of all things property, or send your questions to our panel of property experts.

Get your property valued

Looking to sell or let your property? Get a free property valuation from one of our experts.

Top