The Acorn Group is London’s largest multi-brand estate agency. We offer our clients the best brands, with the best people, in the best locations.

 

Close

OIEO £320,000 leasehold

Maisonette - Hook Lane, DA16

**Chain Free**

Acorn are pleased to welcome to the market this ground floor, two-bedroom maisonette in South Welling offered with no onward chain.

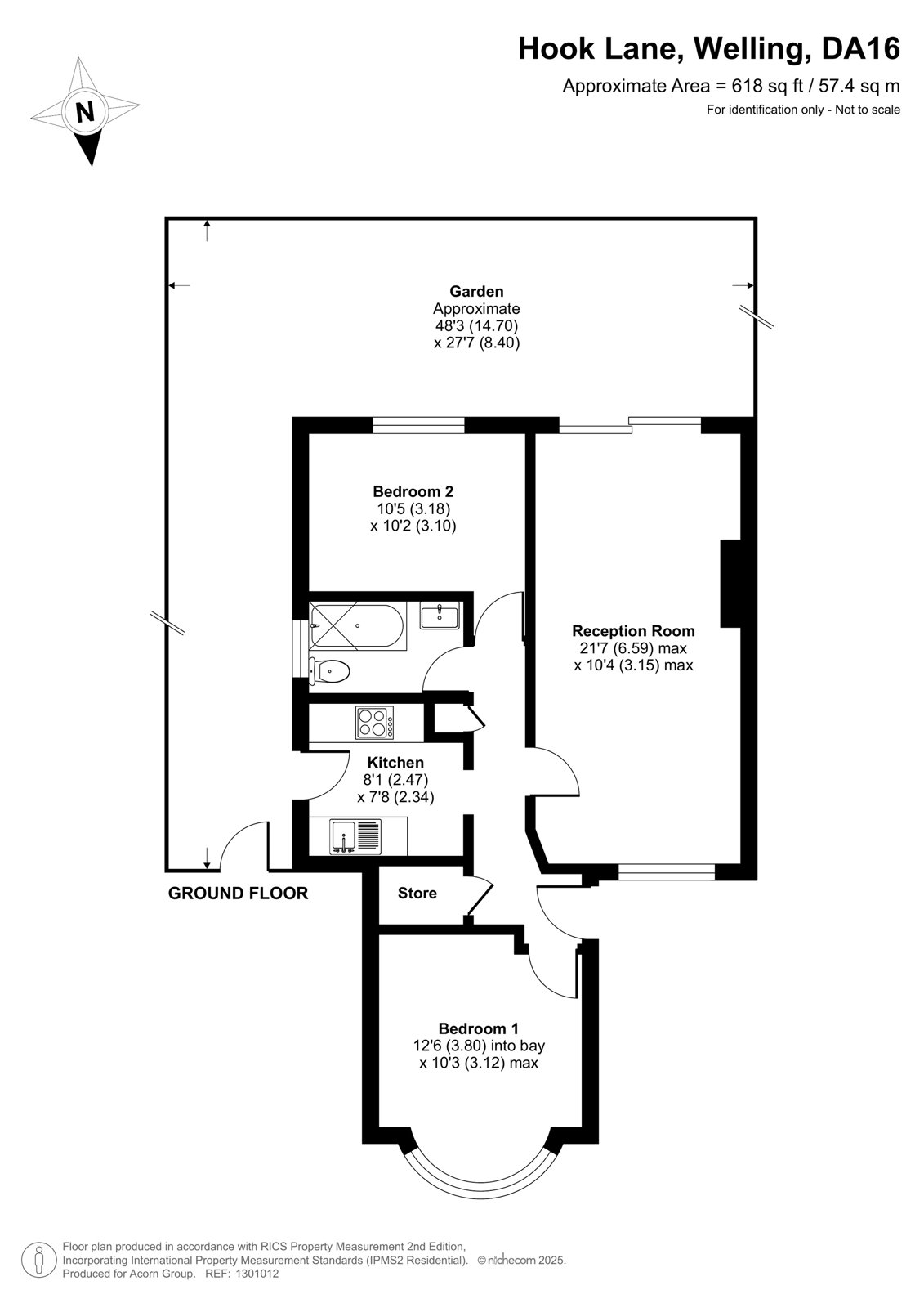
Upon entering the maisonette, there is the master bedroom to the front, leading back is the fitted kitchen, three-piece bathroom suite, reception room and the additional double bedroom. Additional benefits include private garden, long lease, no onward chain, two-car driveway, and secure side access.

Hook Lane is conveniently located for the amenities of Welling as well as numerous local schools. The local area has fast become very desirable and offers everything you would expect from a local high street, including a wide range of supermarkets, shops, restaurants, and pubs. Transport links are plentiful with bus routes to surrounding areas including Bexleyheath, Blackheath, North Greenwich (The O2), Bluewater, and Abbey Wood with the Elizabeth Line. Welling station is within 0.4 miles which offers direct links to London Bridge, Charing Cross, Cannon Street, Waterloo East, and Victoria. Changes are possible at Lewisham for the DLR and New Cross, for the East London Line.

Lease – 167 years approximately
Ground Rent - Peppercorn
Service Charge - N/A
London Borough of Bexley - Council Tax Band - C
Energy Efficiency Rating - C

Talk to Matthew King from Acorn (Estate agents in Welling)

 

Use our calculator to work out potential mortgage repayments and stamp duty costs. Please note, these calculators are for general interest only and must not be relied on. Speak to our Mortgage Scout team for further information and advice. 

Powered by

Total Mortgage

£

Estimated Monthly Mortgage Payment

£

  • Powered by

Welling Area Guide

Explore the areas we serve – from parks, entertainment and transport links, to shopping, eating and drinking.

Dive into property knowledge

Visit the AcornIntel knowledge-base, our library of articles to help you make sense of all things property, or send your questions to our panel of property experts.

Get your property valued

Looking to sell or let your property? Get a free property valuation from one of our experts.

Top