The Acorn Group is London’s largest multi-brand estate agency. We offer our clients the best brands, with the best people, in the best locations.

 

Close

Asking price £625,000 freehold

House for sale - Pascoe Road, London, SE13

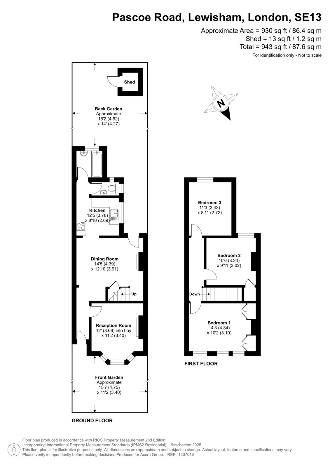
Acorn are delighted to present to the market this charming three-bedroom Victorian home, ideally located in the heart of Hither Green. Spanning approximately 946 sq. ft. of internal space, this property combines period character with modern comfort, making it the perfect family home.

Approached via a private front garden, the house opens into a welcoming hallway that immediately sets the tone for the warmth and character found throughout. At the front of the property sits a generous reception room, beautifully lit by a feature bay window that fills the space with natural light. The original floorboards, lovingly maintained, flow seamlessly through the ground floor, enhancing the home’s classic appeal.

The reception room connects to a well-proportioned dining area a sociable, versatile space perfect for family meals or entertaining guests. Beyond this lies a fitted kitchen offering plentiful storage, ample worktop space, and a smart tiled floor. To the rear, a modern and stylish bathroom provides convenient ground-floor access. The low-maintenance rear garden offers a private outdoor retreat, ideal for summer barbecues, relaxing in the sun, or adding personal touches with plants and outdoor seating.

Upstairs, the impressive master bedroom spans the full width of the house, featuring built-in wardrobes and large windows that flood the room with light. Two additional double bedrooms provide flexible accommodation options ideal for children, guests, or a dedicated home office.

Nestled on Pascoe Road, a peaceful residential street within the vibrant SE13 postcode, this home enjoys all the benefits of Hither Green’s community atmosphere and excellent transport links. Hither Green Station (Zone 3) is just a short walk away, offering direct trains to London Bridge, Cannon Street, Waterloo East, and Charing Cross, perfect for city commuters.

The area is celebrated for its friendly neighbourhood feel, leafy streets, and abundance of green spaces. Manor House Gardens, complete with a café, tennis courts, duck pond, and children’s playground is just moments away, while Mountsfield Park and Manor Park offer further open spaces for outdoor leisure.

Hither Green and nearby Lewisham are home to an ever-growing selection of independent cafés, delis, and shops, while Blackheath Village and Greenwich are within easy reach, offering boutique shopping, popular restaurants, and bustling weekend markets. Families will also appreciate the excellent local schools, including Ofsted “Outstanding” Brindishe Green and Brindishe Manor, as well as the nearby Trinity School.

Talk to Max Smith from Acorn (Estate agents in Lewisham)

 

Use our calculator to work out potential mortgage repayments and stamp duty costs. Please note, these calculators are for general interest only and must not be relied on. Speak to our Mortgage Scout team for further information and advice. 

Powered by

Total Mortgage

£

Estimated Monthly Mortgage Payment

£

  • Powered by

Lewisham Area Guide

Explore the areas we serve – from parks, entertainment and transport links, to shopping, eating and drinking.

Dive into property knowledge

Visit the AcornIntel knowledge-base, our library of articles to help you make sense of all things property, or send your questions to our panel of property experts.

Get your property valued

Looking to sell or let your property? Get a free property valuation from one of our experts.

Top