The Acorn Group is London’s largest multi-brand estate agency. We offer our clients the best brands, with the best people, in the best locations.

 

Close

Asking price £725,000 freehold

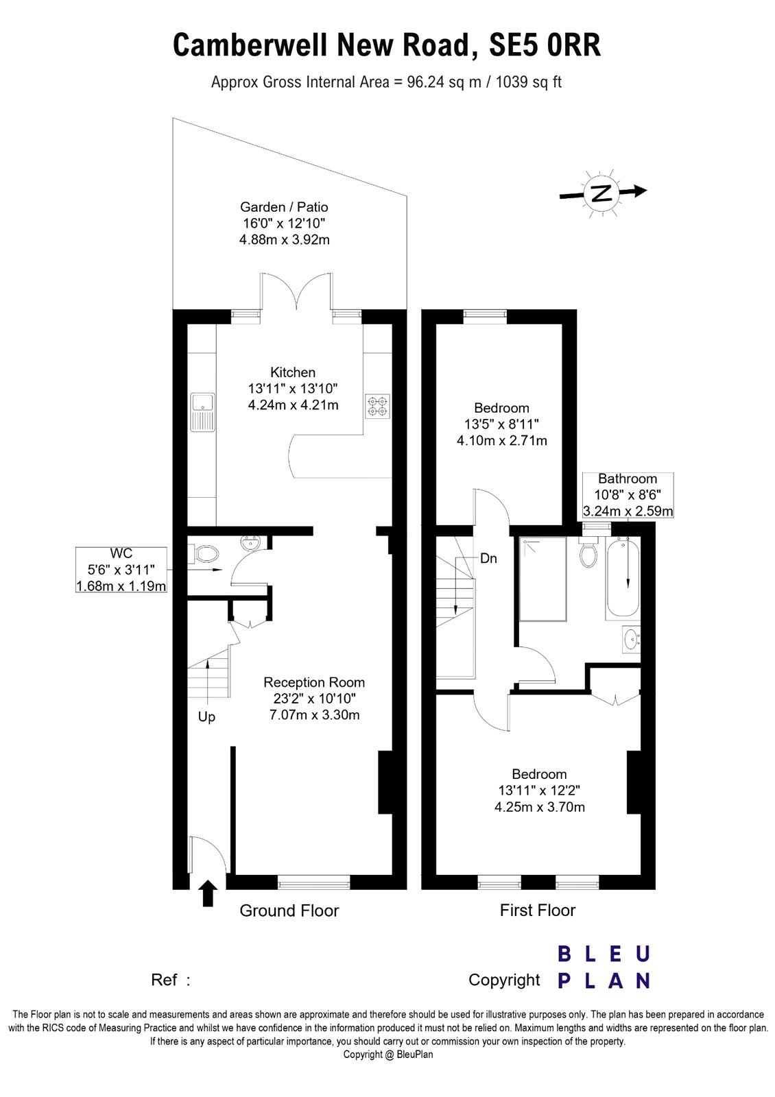
House for sale - Camberwell New Road, SE5

This beautifully presented two-bedroom Victorian house in the heart of Camberwell offers the perfect blend of period charm and modern living. Boasting over 1000sqft of well-proportioned space, the property features original features, balanced with a good quality finish that makes it completely turn-key ready.

The layout is both practical and stylish, with generous living spaces and natural light throughout. A private garden to the rear offers a peaceful retreat, ideal for entertaining or relaxing. Set in a prime location close to vibrant local amenities, excellent transport links, and green spaces, this freehold home is a rare find.

Talk to James Moss from Acorn (Estate agents in Camberwell)

 

Use our calculator to work out potential mortgage repayments and stamp duty costs. Please note, these calculators are for general interest only and must not be relied on. Speak to our Mortgage Scout team for further information and advice. 

Powered by

Total Mortgage

£

Estimated Monthly Mortgage Payment

£

  • Powered by

Camberwell Area Guide

Explore the areas we serve – from parks, entertainment and transport links, to shopping, eating and drinking.

Dive into property knowledge

Visit the AcornIntel knowledge-base, our library of articles to help you make sense of all things property, or send your questions to our panel of property experts.

Get your property valued

Looking to sell or let your property? Get a free property valuation from one of our experts.

Top