The Acorn Group is London’s largest multi-brand estate agency. We offer our clients the best brands, with the best people, in the best locations.

 

Close

OIEO £550,000 freehold

End Of Terrace House for sale - Yorkland Avenue, DA16

Acorn are delighted to welcome to the market this spacious four bedroom semi-detached family home, located in a popular road in South Welling.

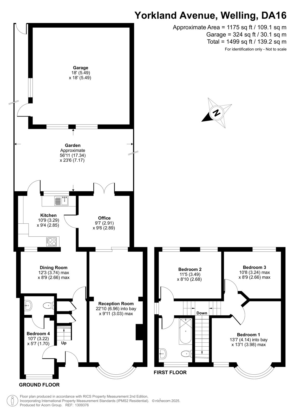
Internally, the property comprises; an entrance hall, bedroom with WC, through lounge with rounded bay window, dining room, extended kitchen and additional reception currently used as an office. Across the first floor, there are three double bedrooms and family bathroom.

Externally, this family home boasts off street parking by way of a concrete print driveway, and a 56ft rear garden with paved patio area.

Yorkland Avenue is conveniently located for the amenities around including shops and numerous local schools, including the ever popular Bexley Grammar School. This family home is 0.7 miles from Welling Station, offering frequent links into the City, as well as access to the A2 offering links out of London to the M25.

Tenure - Freehold | Council Tax Band – D
Energy Efficiency Rating – D

Talk to Matthew King from Acorn (Estate agents in Welling)

 

Use our calculator to work out potential mortgage repayments and stamp duty costs. Please note, these calculators are for general interest only and must not be relied on. Speak to our Mortgage Scout team for further information and advice. 

Powered by

Total Mortgage

£

Estimated Monthly Mortgage Payment

£

  • Powered by

Welling Area Guide

Explore the areas we serve – from parks, entertainment and transport links, to shopping, eating and drinking.

Dive into property knowledge

Visit the AcornIntel knowledge-base, our library of articles to help you make sense of all things property, or send your questions to our panel of property experts.

Get your property valued

Looking to sell or let your property? Get a free property valuation from one of our experts.

Top