The Acorn Group is London’s largest multi-brand estate agency. We offer our clients the best brands, with the best people, in the best locations.

 

Close

OIEO £600,000 freehold

End Of Terrace House for sale - Pope Road, BR2

Langford Russell are pleased to market this end of terrace, three bedroom, two bathroom period house, situated on a peaceful residential street in Bromley. The property boasts off street parking and is sold with the added convenience of no onward chain!

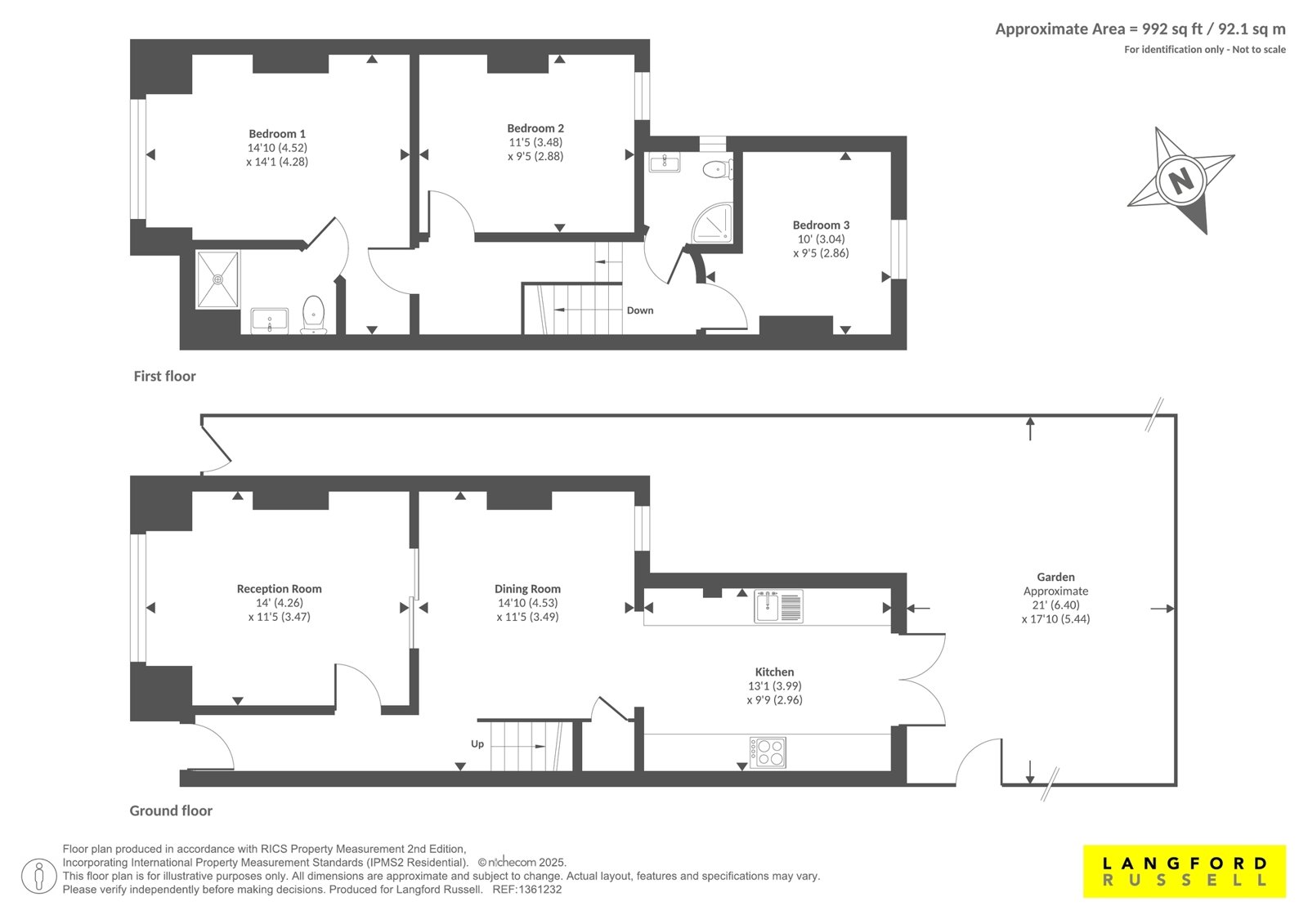
Internally the house provides 991 Sq. Ft (92.1 Sq. M) with the ground floor providing two spacious reception rooms, a modern fitted kitchen with French doors to the garden and under stairs storage. The first floor provides three generously sized bedrooms and two bathrooms (one en-suite) - the house has been well maintained throughout.

Pope Road is sat within an area perfectly positioned for all local amenities, shops and transport links giving easy access to a number of stations. Bromley town centre is also within close proximity and offers a range of shopping and socialising facilities including The Glades Shopping Centre, Churchill Theatre and various well known restaurants and coffee shops.

Bromley South Station and Bickley Station are both nearby, with Bromley South providing fast direct access into London Victoria in just 16 minutes!

Further benefits include off-street parking, side access and the convenience of a chain free sale!

This family home is great for those wanting the perfect balance of commuter convenience and family life, viewing is highly recommended. Please contact Langford Russell Bromley on 02083155544 to arrange a viewing by appointment only!

Freehold
London Borough of Bromley - Council Tax Band : D
Energy Efficiency Rating: D

Talk to Jake Fahey from Langford Russell (Estate agents in Bromley)

 

Use our calculator to work out potential mortgage repayments and stamp duty costs. Please note, these calculators are for general interest only and must not be relied on. Speak to our Mortgage Scout team for further information and advice. 

Powered by

Total Mortgage

£

Estimated Monthly Mortgage Payment

£

  • Powered by

Bromley Area Guide

Explore the areas we serve – from parks, entertainment and transport links, to shopping, eating and drinking.

Dive into property knowledge

Visit the AcornIntel knowledge-base, our library of articles to help you make sense of all things property, or send your questions to our panel of property experts.

Get your property valued

Looking to sell or let your property? Get a free property valuation from one of our experts.

Top