The Acorn Group is London’s largest multi-brand estate agency. We offer our clients the best brands, with the best people, in the best locations.

 

Close

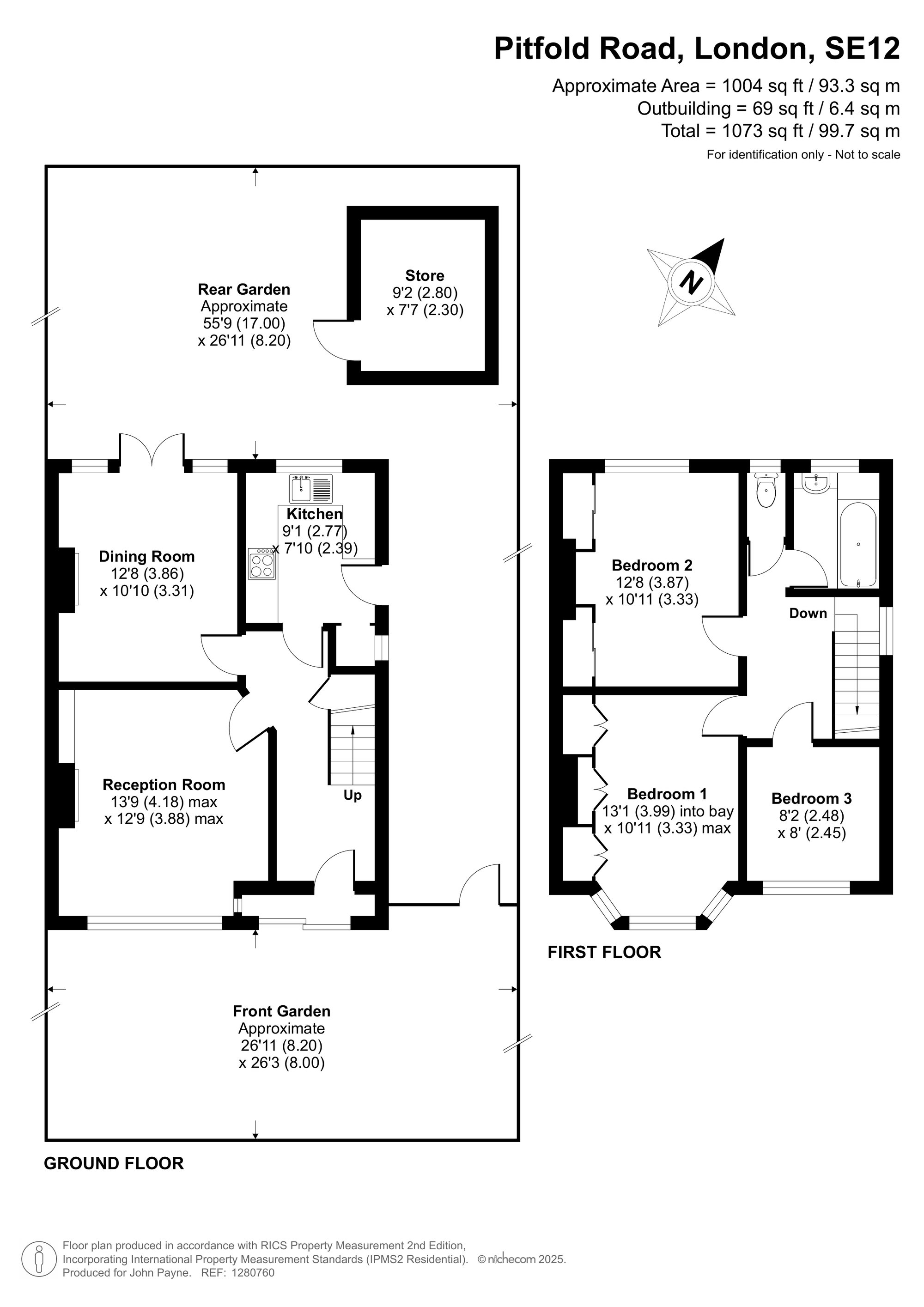
Asking price £625,000 freehold

End Of Terrace House - Pitfold Road, SE12

A well-presented 1930’s three-bedroom end of terrace family home, situated in a desirable road overlooking woodland to the rear and within easy reach of Lee train station and local shops.

To the ground floor there is a spacious entrance hall, separate lounge, dining room with French doors leading to the rear garden and a fitted kitchen. On the first floor there are three bedrooms, family bathroom and separate WC. Externally, the rear garden measures approx. 55ft and boasts mature shrubs and a raised paved patio area. To the front, parking is provided by the driveway.

This home also offers potential for further extension into the loft space subject to the relevant planning consents. Additionally there is potential for a home office in the garden, which backs on to an enclosed green space and provides a tranquil backdrop. Lee train station, Colfes school and a variety of local shops, restaurants and bars are all within a short walk. The Lord Northbrook pub on Burnt Ash Road offers a varied selection of Ales and seasonal hot and cold food. Blackheath Village, Lewisham Town centre and DLR are also easily accessible.

London Borough of Lewisham - Council Tax Band - D
Energy Efficiency Rating - D

Talk to Chris Wadeson from John Payne (Estate agents in Lee)

 

Use our calculator to work out potential mortgage repayments and stamp duty costs. Please note, these calculators are for general interest only and must not be relied on. Speak to our Mortgage Scout team for further information and advice. 

Powered by

Total Mortgage

£

Estimated Monthly Mortgage Payment

£

  • Powered by

Lee Area Guide

Explore the areas we serve – from parks, entertainment and transport links, to shopping, eating and drinking.

Dive into property knowledge

Visit the AcornIntel knowledge-base, our library of articles to help you make sense of all things property, or send your questions to our panel of property experts.

Get your property valued

Looking to sell or let your property? Get a free property valuation from one of our experts.

Top