The Acorn Group is London’s largest multi-brand estate agency. We offer our clients the best brands, with the best people, in the best locations.

 

Close

Guide price £920,000 freehold

End Of Terrace House - Old Road, SE13

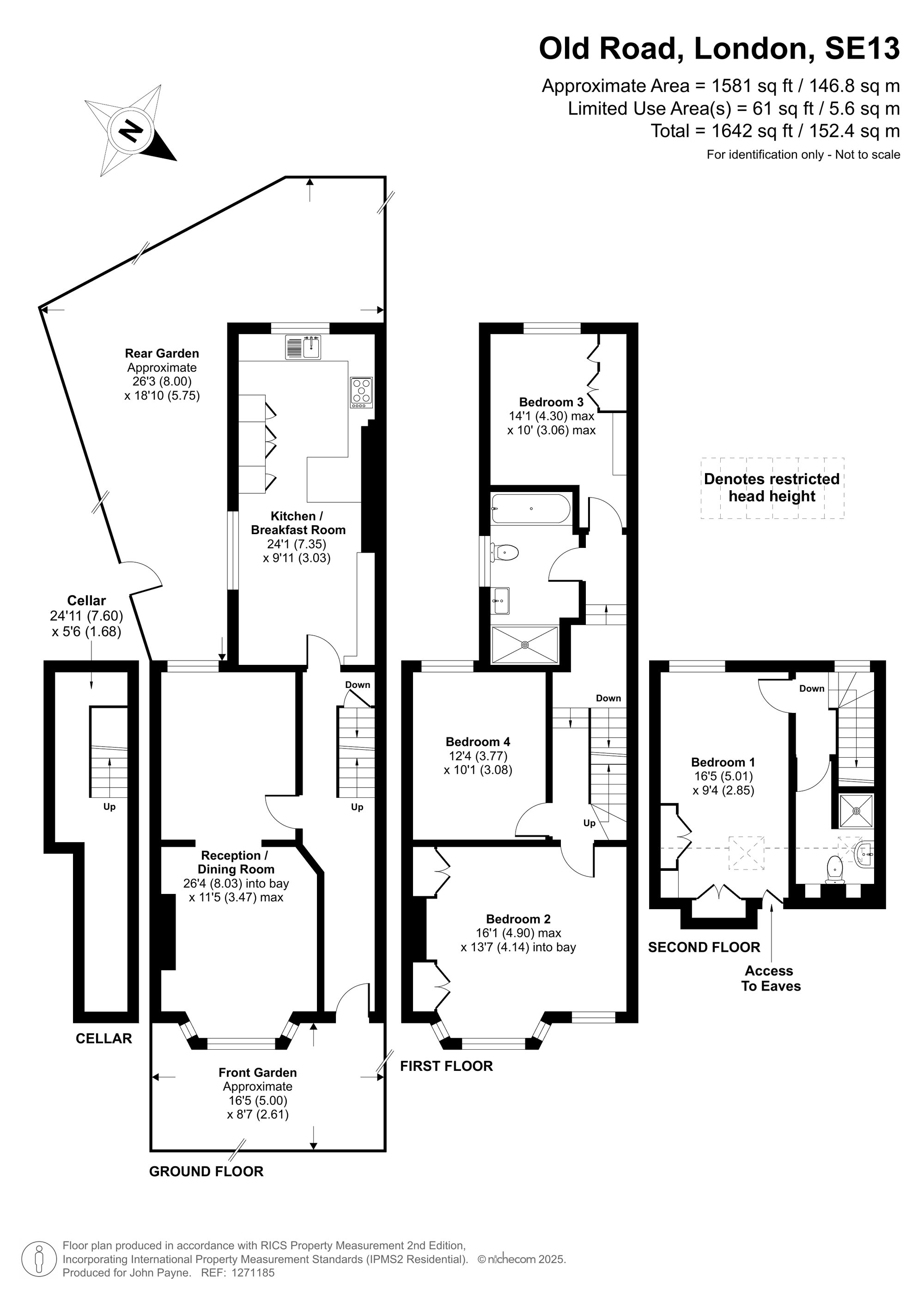
A stunning four double bedroom Victorian end of terrace family home ideally positioned approximately half a mile from Hither Green train station with local shops and the lovely Manor House Gardens just a short stroll away. Residents also benefit from easy access to Lewisham Town Centre, the DLR, and the charming Blackheath Village.

The home itself is perfect for families, offering generous living spaces that include a spacious lounge which opens on to the dining room, a 21ft fitted kitchen/breakfast room, three double bedrooms and a well-appointed family bathroom. Additionally, there is a bright loft conversion that adds a fourth bedroom complete with an en-suite shower room.

This attractive property not only boasts excellent family accommodation but also provides ample storage throughout including a cellar, all in superb decorative condition.

Nestled on Old Road, just off Lee High Road, the house is surrounded by highly regarded schools. The vibrant and welcoming neighbourhood of Hither Green is particularly popular with young professionals and families, making this an ideal place to call home.

London Borough of Lewisham - Council Tax Band - D
Energy Efficiency Rating - D

Talk to Chris Wadeson from John Payne (Estate agents in Lee)

 

Use our calculator to work out potential mortgage repayments and stamp duty costs. Please note, these calculators are for general interest only and must not be relied on. Speak to our Mortgage Scout team for further information and advice. 

Powered by

Total Mortgage

£

Estimated Monthly Mortgage Payment

£

  • Powered by

Lee Area Guide

Explore the areas we serve – from parks, entertainment and transport links, to shopping, eating and drinking.

Dive into property knowledge

Visit the AcornIntel knowledge-base, our library of articles to help you make sense of all things property, or send your questions to our panel of property experts.

Get your property valued

Looking to sell or let your property? Get a free property valuation from one of our experts.

Top