The Acorn Group is London’s largest multi-brand estate agency. We offer our clients the best brands, with the best people, in the best locations.

 

Close

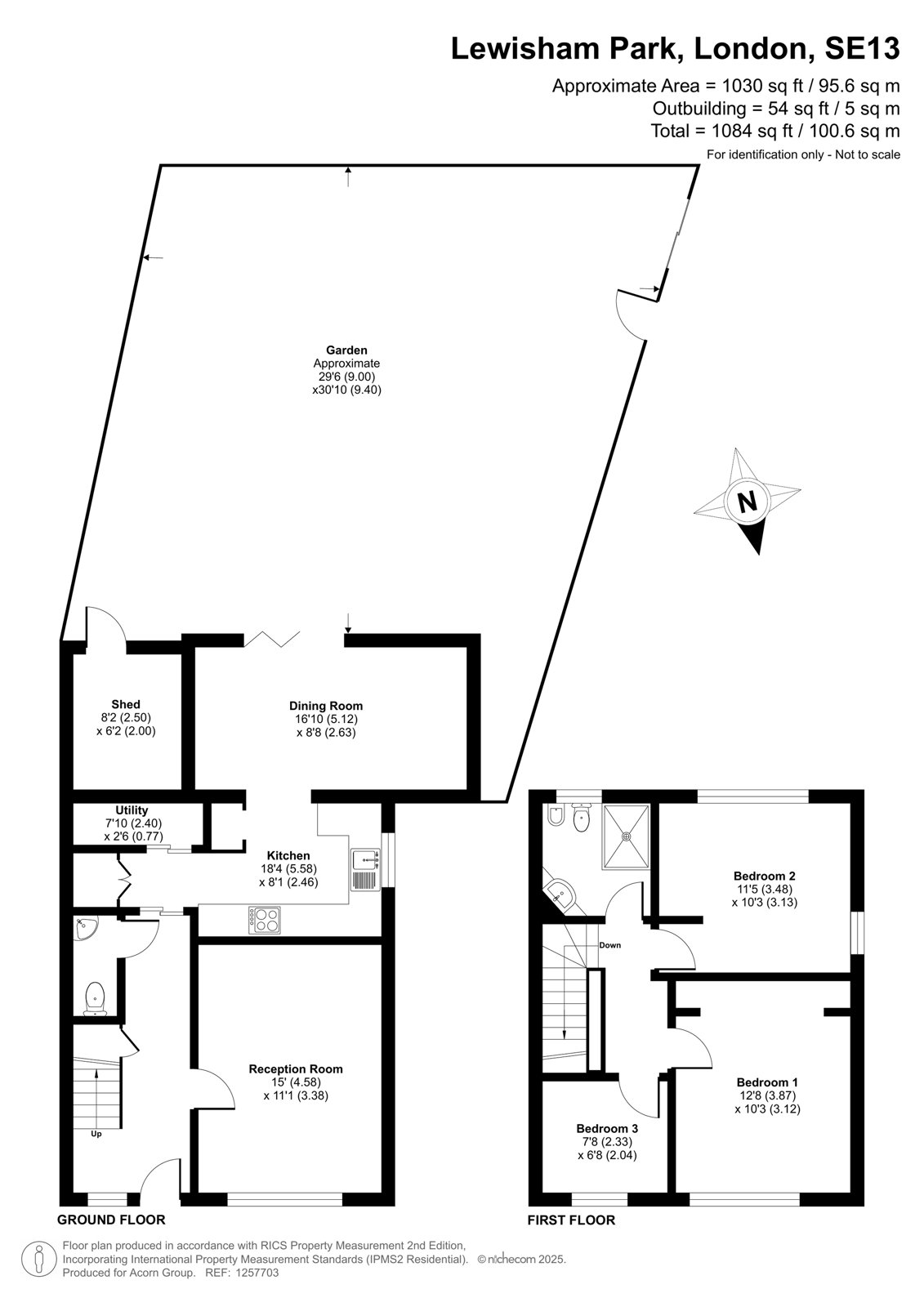
Asking price £550,000 freehold

End Of Terrace House - Lewisham Park, SE13

Acorn welcome to the SE13 market is this superb value for money three bedroom end of terrace home, situated within the much desirable 'Lewisham Park' location, and being within easy reach of four different train stations!

This three-bedroom end of terrace home sits circa 1030sq/ft of internal floor space and has been very well maintained by its current owner. As you enter through the front door you are welcomed with a bright hallway, that leads you to the right into a cosy reception room space sat at the front of the building. The hallway also comprises of a handy W/C and utility space, perfect for day-to-day home life. From this, you enter a beautifully finished L-shaped kitchen space with white wall and base units, plenty of storage and electric hob, sitting just off this openly is another living/dining space with large bi-fold doors flooding the room with natural light and leads out to a well-maintained garden to rear, also private parking space and outhouse.

Moving on to the first floor, you are firstly welcomed with a good-sized shower room finished in a bright white and stylish orange floor, comprising a W/C , basin, shower and bidet. All three bedrooms are of a very generous size, bedroom two had a extra window added for more natural light, the master bedroom offers ample storage space and finally bedroom three, currently being used as office space although could be perfect for a smaller sized bedroom. Extra benefits of this beautiful home include; triple glazed windows, solar panels, off street parking with EV charging point and being nestled closely to local amenities including Lewisham Hospital.

Mountsfield & Manor House Gardens alongside Ladywell Fields are a great choice to explore, Manor Garden’s has a café inside too. Lewisham Shopping Centre is also a brisk walk with even more choice of branded stores, restaurants, and cafes as well as a cinema due to open soon. Lewisham Railway & DLR is one mile away and Zone 2 with even more options into different parts of the city!

Talk to Max Smith from Acorn (Estate agents in Lewisham)

 

Use our calculator to work out potential mortgage repayments and stamp duty costs. Please note, these calculators are for general interest only and must not be relied on. Speak to our Mortgage Scout team for further information and advice. 

Powered by

Total Mortgage

£

Estimated Monthly Mortgage Payment

£

  • Powered by

Lewisham Area Guide

Explore the areas we serve – from parks, entertainment and transport links, to shopping, eating and drinking.

Dive into property knowledge

Visit the AcornIntel knowledge-base, our library of articles to help you make sense of all things property, or send your questions to our panel of property experts.

Get your property valued

Looking to sell or let your property? Get a free property valuation from one of our experts.

Top