The Acorn Group is London’s largest multi-brand estate agency. We offer our clients the best brands, with the best people, in the best locations.

 

Close

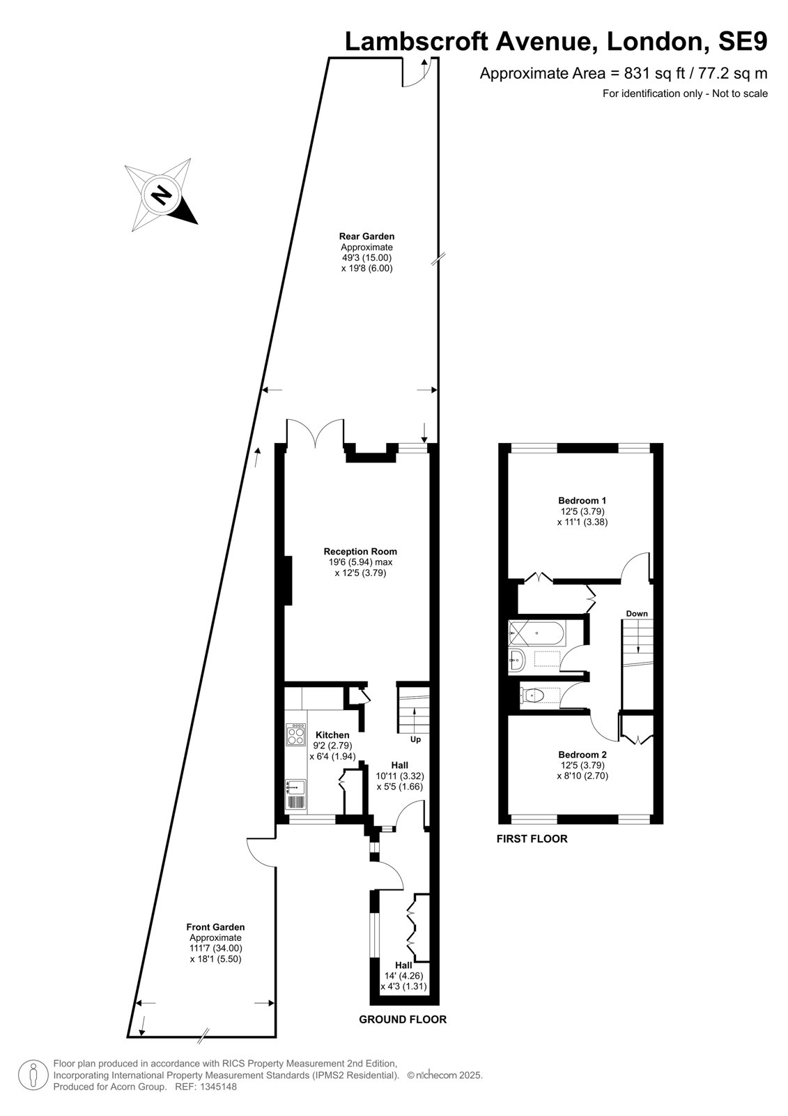
Offers Over £375,000 freehold

End Of Terrace House for sale - Lambscroft Avenue, SE9

Set in a quiet residential area, this well-maintained two double bedroom end of terrace home offers over 800 sqft of bright, well-proportioned living space, along with a generous south-westerly facing garden. Thoughtfully cared for by the current owners, the property is ideal for first-time buyers, couples or young families seeking a home with space, privacy, and potential.

Upon entering, you're welcomed by a spacious entrance lobby with excellent built-in storage, providing a practical and organised welcome to the home. The ground floor offers a separate kitchen and a large, bright reception room, which features French doors leading directly out to the private rear garden. Enjoying a south-westerly aspect, the garden is perfect for outdoor entertaining, summer dining, or simply relaxing in the sun.

On the first floor, the property offers two generously sized double bedrooms, both offering comfortable living space and natural light. A modern bathroom is accompanied by a separate W/C, and there’s also a large storage cupboard on the landing, adding further practicality to the home.
For even more substantial green space, Chinbrook Meadows (accessed from the nearby Mayeswood or Chinbrook Road) is award winning with public tennis courts, basketball courts, football pitches & play area.

Lambscroft Avenue is situated just off Marvels Lane featuring numerous bus routes & hosts well regarded Marvels Lane Primary School, Bannatynes Health Club is a mere 1km jog down the road, both a Sainsbury’s & Tesco’s local are 0.6miles away up by Grove Park station offering direct links into London Bridge, Blackfriars, Charing Cross, Waterloo East & Cannon Street in as little as 14 minutes.

Tenure – Freehold
Energy Efficiency Rating D
Council Tax Band C

Talk to Oliver Henness from John Payne (Estate agents in Eltham)

 

Use our calculator to work out potential mortgage repayments and stamp duty costs. Please note, these calculators are for general interest only and must not be relied on. Speak to our Mortgage Scout team for further information and advice. 

Powered by

Total Mortgage

£

Estimated Monthly Mortgage Payment

£

  • Powered by

Eltham Area Guide

Explore the areas we serve – from parks, entertainment and transport links, to shopping, eating and drinking.

Dive into property knowledge

Visit the AcornIntel knowledge-base, our library of articles to help you make sense of all things property, or send your questions to our panel of property experts.

Get your property valued

Looking to sell or let your property? Get a free property valuation from one of our experts.

Top