The Acorn Group is London’s largest multi-brand estate agency. We offer our clients the best brands, with the best people, in the best locations.

 

Close

OIEO £525,000 freehold

End Of Terrace House for sale - Dickson Road, SE9

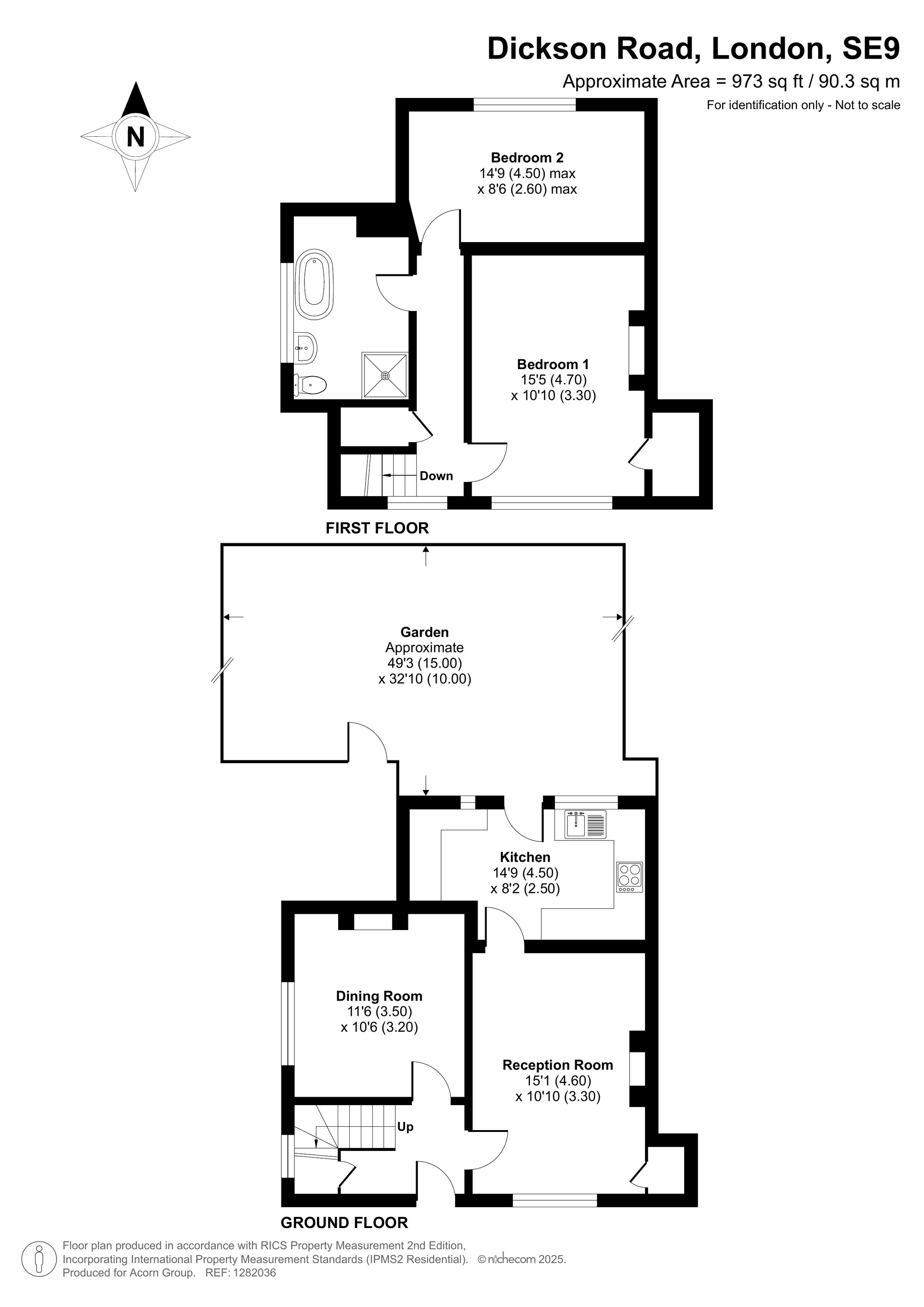
Situated on the highly desirable Progress Estate, this larger-than-average two double bedroom end of terrace home offers generous living space, excellent condition throughout, and fantastic potential.

Boasting two spacious reception rooms, the property is immaculately presented, including a recently modernised four-piece bathroom that adds a touch of contemporary luxury.

The house is complemented by substantial front and rear gardens, offering excellent outdoor space and the potential for off-street parking (subject to a dropped kerb).
Located just 0.7 miles from Eltham Train Station, the home is ideally positioned for commuters. Families will appreciate the selection of highly regarded schools nearby, while everyone can enjoy the abundance of local green spaces within walking distance.

Tudor Parade offers a convenient range of amenities including a Tesco Express and a gym, and the popular Tudor Barn, with its beautiful grounds and inviting Sunday roasts, is just a short stroll away.

This is a rare opportunity to secure a beautifully maintained home in a well-connected, family-friendly area.

Talk to Oliver Henness from John Payne (Estate agents in Eltham)

 

Use our calculator to work out potential mortgage repayments and stamp duty costs. Please note, these calculators are for general interest only and must not be relied on. Speak to our Mortgage Scout team for further information and advice. 

Powered by

Total Mortgage

£

Estimated Monthly Mortgage Payment

£

  • Powered by

Eltham Area Guide

Explore the areas we serve – from parks, entertainment and transport links, to shopping, eating and drinking.

Dive into property knowledge

Visit the AcornIntel knowledge-base, our library of articles to help you make sense of all things property, or send your questions to our panel of property experts.

Get your property valued

Looking to sell or let your property? Get a free property valuation from one of our experts.

Top