The Acorn Group is London’s largest multi-brand estate agency. We offer our clients the best brands, with the best people, in the best locations.

 

Close

Guide price £475,000 freehold

End Of Terrace House for sale - Dahlia Drive, Kent, BR8

***Guide Price £475,000 - £500,000***

In a great location for Swanley Town Centre in one of the most desirable roads in Swanley, Langford Russell welcome this 1970's built extended five bedroom family home.

Location is excellent for all local amenities, including – White Oak Leisure Centre, local shops and restaurants, Swanley Boat Park, public bus routes, easy access to M25/A20/M20 road links, Bluewater shopping Centre and Ebbsfleet International.

The Swanley mainline train station is within walking distance and offers direct access into central London Victoria/Black friars/Charing Cross/London Bridge (approximately twenty minutes). This station is within the Oyster Zone.

Schools include St Bartholomew's Catholic Primary School and Hextable Primary School. Catchment area for Wilmington Grammar School and the Dartford Grammar School, along with the ever popular Wilmington Academy.

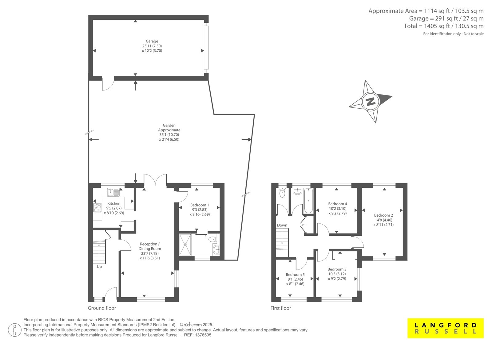
Property comprises – Entrance Hall with understairs storage cupboard, 23’7x11’6 Reception room with patio doors leading to the rear garden, kitchen, and ground floor double bedroom with en-suite shower room.

To the first floor – Landing with storage, four bedrooms and family bathroom with separate WC. Please note three of the first-floor bedrooms are double rooms, ideal for any growing family.

Externally you will find lawn front garden, side access to rear garden mostly laid to lawn, with access to garage and off-street parking to the rear. The garage is 23’11x12’2 and could be converted to a multi-function outbuilding/office room.

Please note this property offers double glazing and gas central heating, contact Langford Russell to arrange your internal inspection, viewing is highly recommended.

Sevenoaks District Council - Council Tax Band - E
Energy Efficiency Rating - C

Talk to Hayley Buist from Langford Russell (Estate agents in Swanley)

 

Use our calculator to work out potential mortgage repayments and stamp duty costs. Please note, these calculators are for general interest only and must not be relied on. Speak to our Mortgage Scout team for further information and advice. 

Powered by

Total Mortgage

£

Estimated Monthly Mortgage Payment

£

  • Powered by

Swanley Area Guide

Explore the areas we serve – from parks, entertainment and transport links, to shopping, eating and drinking.

Dive into property knowledge

Visit the AcornIntel knowledge-base, our library of articles to help you make sense of all things property, or send your questions to our panel of property experts.

Get your property valued

Looking to sell or let your property? Get a free property valuation from one of our experts.

Top