The Acorn Group is London’s largest multi-brand estate agency. We offer our clients the best brands, with the best people, in the best locations.

 

Close

Asking price £525,000 freehold

End Of Terrace House for sale - Brookmead Way, BR5

Langford Russell are pleased to present this three bedroom end of terrace family home, offering well balanced accommodation, a generous rear garden and excellent potential for extension or modernisation, subject to the usual planning permissions. Situated on a popular residential road in Orpington, this property is ideal for families, first time buyers or investors alike.

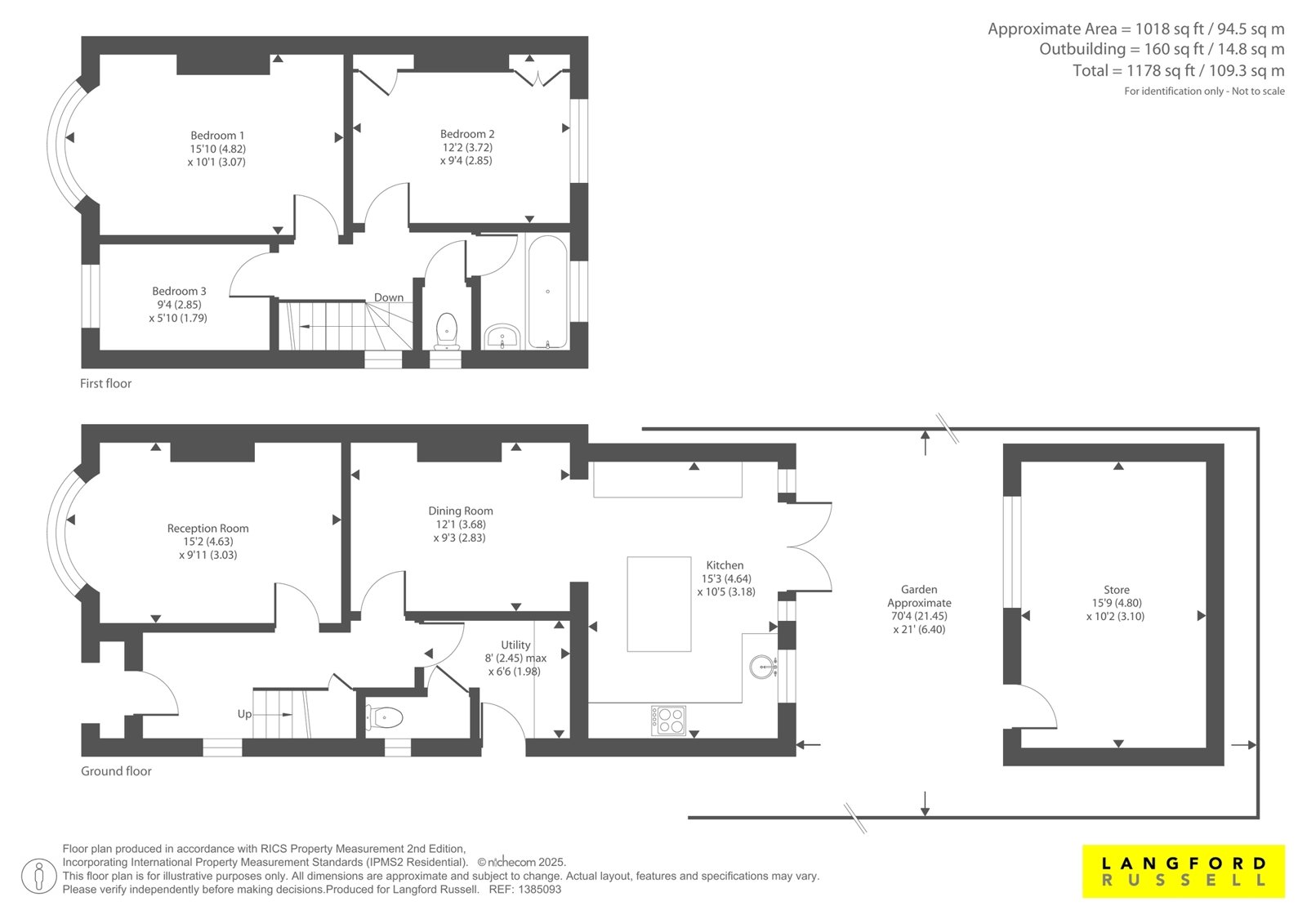
The ground floor comprises a welcoming entrance hallway leading to a bright front reception room, enhanced by a bay window providing excellent natural light. To the rear of the property is a separate dining room, ideal for family meals and entertaining, which leads through to a well proportioned kitchen offering ample storage and worktop space. The kitchen provides direct access to the rear garden. The ground floor further benefits from a useful utility room and a separate WC, adding to the home’s practicality.

Upstairs, the first floor offers three bedrooms, including two comfortable double bedrooms. The principal bedroom features a bay window and generous proportions, while the remaining rooms are well suited for children, guests or home office use. The first floor is completed by a family bathroom and a separate WC, which is particularly convenient for modern family living.

Externally, the property boasts a substantial rear garden measuring approximately 70 feet, providing excellent outdoor space for families and entertaining. To the rear of the garden is a large detached outbuilding, offering valuable additional storage. Parking is available via free on street parking.

The property offers significant scope to extend or reconfigure, including potential rear and loft extensions, subject to planning consent, making it an exciting opportunity for buyers looking to add value and tailor the home to their own requirements.

The property is well positioned for transport, with Orpington Station located approximately 1.3 miles away, offering regular and direct services into central London.

The area is particularly popular with families due to the range of well regarded schools nearby. Perry Hall Primary School is within approximately 0.6 miles of the property, while Poverest Primary School is around 1.1 miles away, both easily accessible on foot. Secondary education is also well catered for, with St Olave’s Grammar School located approximately 1.7 miles away and Newstead Wood School around 2.7 miles from the property.

Tenure - Freehold | Council Tax Band - D

Talk to Oliver Pettman from Langford Russell (Estate agents in Orpington)

 

Use our calculator to work out potential mortgage repayments and stamp duty costs. Please note, these calculators are for general interest only and must not be relied on. Speak to our Mortgage Scout team for further information and advice. 

Powered by

Total Mortgage

£

Estimated Monthly Mortgage Payment

£

  • Powered by

Orpington Area Guide

Explore the areas we serve – from parks, entertainment and transport links, to shopping, eating and drinking.

Dive into property knowledge

Visit the AcornIntel knowledge-base, our library of articles to help you make sense of all things property, or send your questions to our panel of property experts.

Get your property valued

Looking to sell or let your property? Get a free property valuation from one of our experts.

Top