The Acorn Group is London’s largest multi-brand estate agency. We offer our clients the best brands, with the best people, in the best locations.

 

Close

Guide price £525,000 freehold

End Of Terrace House for sale - Altash Way, SE9

** GUIDE PRICE £525 000 to £550 000 **

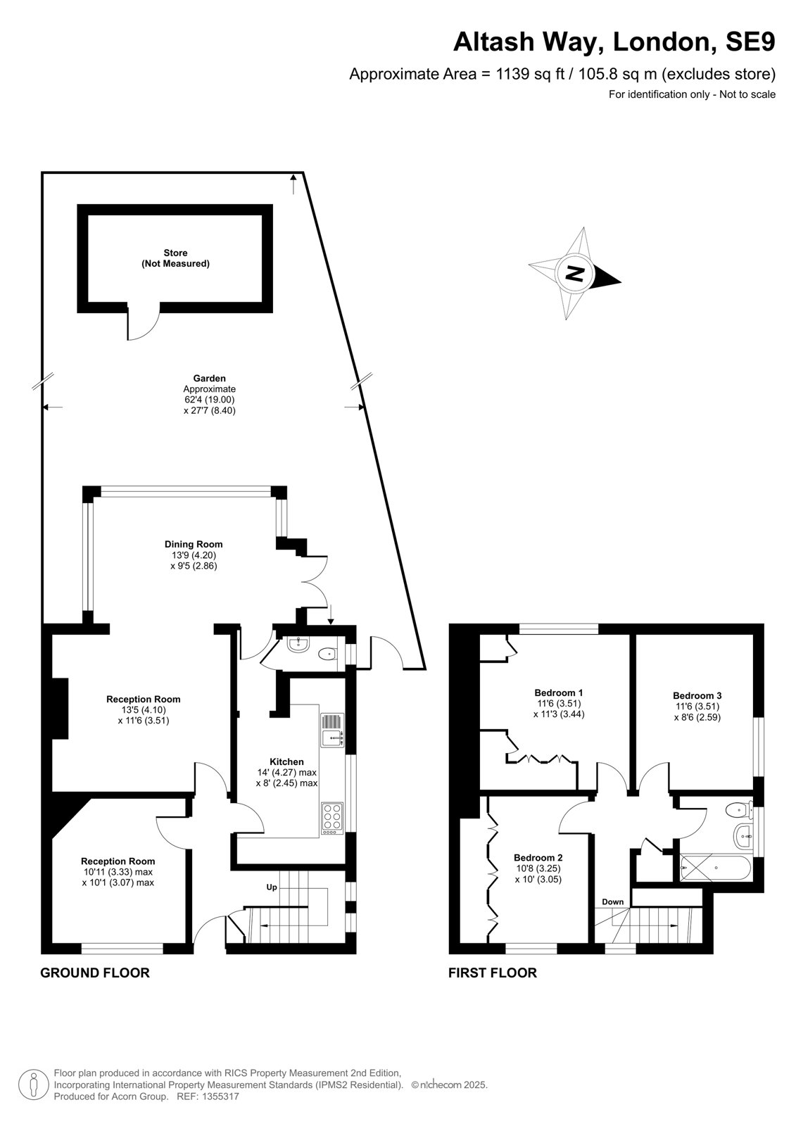
Lovingly maintained by the current owners and presented in excellent condition throughout, this spacious home offers well-planned accommodation comprising: a welcoming entrance hall with under-stairs storage, a large reception room that flows into a spacious conservatory overlooking a westerly facing garden, an additional reception room currently used as an office, a downstairs W/C, and a modern high-gloss kitchen.

Upstairs, you’ll find three generously sized double bedrooms, two of which feature fitted wardrobes, along with a contemporary family bathroom.

Additional benefits include: gas central heating, double glazing throughout, off-street parking for up to five vehicles, and gated side access from the driveway adds further convenience.

Ideally situated just 0.3 miles from local shops and 0.5 miles from a well-equipped leisure centre, the property is equidistant (0.8 miles) from both Mottingham and New Eltham stations. These offer direct services to London Bridge, Waterloo East, Charing Cross, and Cannon Street, with easy connections at Lewisham (DLR) and New Cross (East London Line).

For leisure and lifestyle, you're only 1.3 miles from the picturesque Chislehurst High Street, home to an array of boutique shops, restaurants, and bars. You are also just over 400 yards from Greenacres Primary School and within easy reach of several other well-regarded schools, this property is a fantastic choice for young families and first-time buyers.

Royal Borough of Greenwich Council Tax: Band D | Energy Efficiency: Rating D

Talk to Oliver Henness from John Payne (Estate agents in Eltham)

 

Use our calculator to work out potential mortgage repayments and stamp duty costs. Please note, these calculators are for general interest only and must not be relied on. Speak to our Mortgage Scout team for further information and advice. 

Powered by

Total Mortgage

£

Estimated Monthly Mortgage Payment

£

  • Powered by

Eltham Area Guide

Explore the areas we serve – from parks, entertainment and transport links, to shopping, eating and drinking.

Dive into property knowledge

Visit the AcornIntel knowledge-base, our library of articles to help you make sense of all things property, or send your questions to our panel of property experts.

Get your property valued

Looking to sell or let your property? Get a free property valuation from one of our experts.

Top