The Acorn Group is London’s largest multi-brand estate agency. We offer our clients the best brands, with the best people, in the best locations.

 

Close

Guide price £575,000 freehold

Detached House for sale - Woodside Road, DA7

** GUIDE PRICE £575,000 - £600,000 **

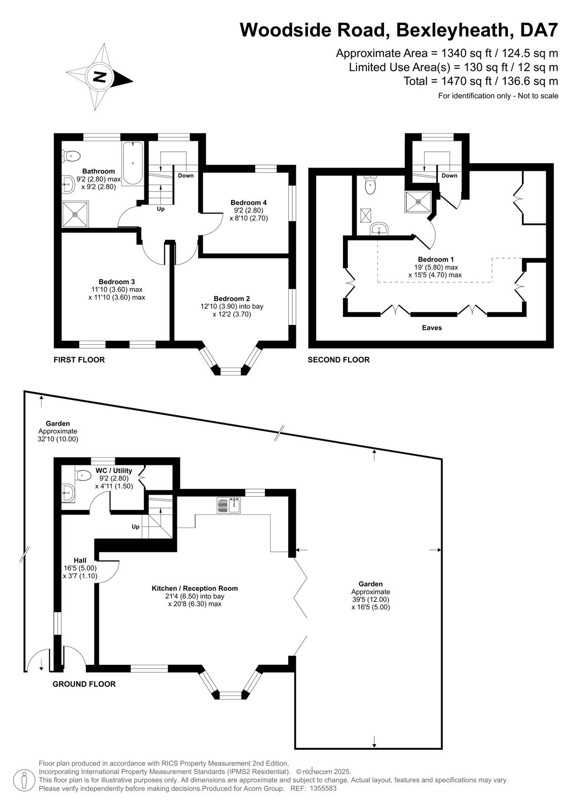
This well-presented modern house was built in 2020 in a sought-after location in Bexleyheath, the accommodation offers an impressive 1340sqft across three floors with a stylishly designed loft extension which includes a bespoke internal balcony-Velux window.

As you enter, the broad hallway leads into the huge open plan living space which feature a characterful bay window with plenty of space for large sofas, a dining area with a modern offset kitchen. The kitchen has a modern light grey tone with wooden worktops fitted with some integrated appliances and a mobile kitchen Island with a breakfast bar! There’re also bi-folding doors leading out to the private garden which wraps around the left side of this detached house, beautifully landscaped with a lawn section, a patio area ideal for garden furniture. Further along the hallway is a handy downstairs w/c and utility room, with stairs leading to the first floor.

The first floor comprises access to three of the four bedrooms and a luxury four-piece bathroom suite! All rooms are generous sizes with bedroom 4 being a good size single room. The bathroom is well presented with a separate walk-in shower unit, modern bathtub, vanity unit and complimented with tiling across the floor and walls. The master bedroom sits on the converted loft space which has access to another luxury en-suite shower-room as well as a internal balcony space with a bespoke expanding Velux-window to enjoy the lovely aerial views. This home has been fitted with hardwood engineered flooring throughout and neutrally decorated for buyers to put their own stamp throughout, there’s further potential to extend the loft further (STPP) by adding a dormer due to eaves storage being available around the room. Additional benefits include gas central heating, combi-boiler, updated electrics, double glazing, log burner, off street parking and will be sold chain free!

Woodside Road is superbly located in Bexleyheath near the popular shopping centre but also on the cusp of Barnehurst & Crayford Highstreet with access to plenty of local amenities. The location is also well suited for families with a great choice of schools with Mayplace Primary along the corner; and a great choice of parks to explore nearby with Shenstone across the end of the road, Barnehurst Golf Course or Hall Place nearby with the popular Miller & Carter restaurant!

Bexleyheath Shopping Centre is within an easy reach which has a great choice of branded stores, takeaways, bars, restaurants, leisure centre, a cinema, and a bowling alley to enjoy with family and friends. Barnehurst & Crayford Station are both equal distance (1.0m), Barnehurst has direct routes into the city via Charing Cross, Cannon Street or London Victoria or Crayford has the option of going into Abbey Wood & Woolwich for access to the DLR or the new Elizabeth Line into the city!

We expect this house to be a popular choice, please call our office to arrange a viewing or ask any questions!

London Borough of Bexley - Council Tax Band - F
Energy Efficiency Rating - C

Talk to Arikson Franco from Acorn (Estate agents in Northumberland Heath)

 

Use our calculator to work out potential mortgage repayments and stamp duty costs. Please note, these calculators are for general interest only and must not be relied on. Speak to our Mortgage Scout team for further information and advice. 

Powered by

Total Mortgage

£

Estimated Monthly Mortgage Payment

£

  • Powered by

Northumberland Heath Area Guide

Explore the areas we serve – from parks, entertainment and transport links, to shopping, eating and drinking.

Dive into property knowledge

Visit the AcornIntel knowledge-base, our library of articles to help you make sense of all things property, or send your questions to our panel of property experts.

Get your property valued

Looking to sell or let your property? Get a free property valuation from one of our experts.

Top