The Acorn Group is London’s largest multi-brand estate agency. We offer our clients the best brands, with the best people, in the best locations.

 

Close

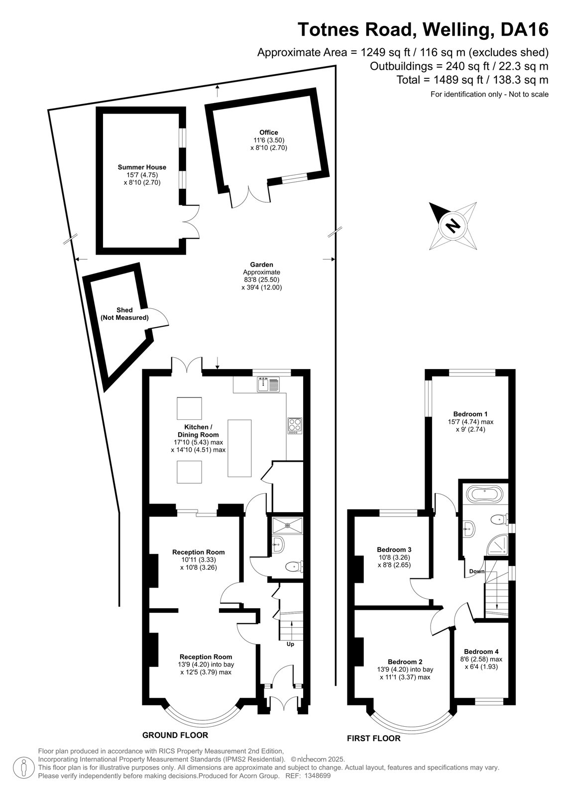
OIEO £650,000 freehold

Detached House for sale - Totnes Road, DA16

Acorn are delighted to welcome to the market this unique detached four bedroom Semi-Detached Stevens house.

Having benefitted from a two storey rear extension this property offers an abundance of space and the accommodation consists of on the ground floor, entrance hallway with shower room, through lounge with rounded bay window and large kitchen/diner with vaulted ceiling with skylights and kitchen island. The first floor comprises four well-proportioned bedrooms and four piece family bathroom suite.

Externally, the house sits on a large plot and offers off street parking to the front by a concrete print driveway and a 83ft garden with a patio area and two cabins. One is currently being used as an office and the other as a bar, however these could serve as a multitude of uses, tailored to any buyer’s needs. There is also scope for further extensions subject to the necessary planning consents.

Welling has fast become very desirable and offers everything you would expect from a local high street, including a wide range of supermarkets, shops, restaurants and pubs. Transport links are plentiful with bus routes to surrounding areas including Bexleyheath, Blackheath, North Greenwich (The O2) Bluewater and Abbey Wood with the Elizabeth Line.

Tenure - Freehold
London Borough of Bexley - Council Tax Band: F
EPC Rating – E

Talk to Matthew King from Acorn (Estate agents in Welling)

 

Use our calculator to work out potential mortgage repayments and stamp duty costs. Please note, these calculators are for general interest only and must not be relied on. Speak to our Mortgage Scout team for further information and advice. 

Powered by

Total Mortgage

£

Estimated Monthly Mortgage Payment

£

  • Powered by

Welling Area Guide

Explore the areas we serve – from parks, entertainment and transport links, to shopping, eating and drinking.

Dive into property knowledge

Visit the AcornIntel knowledge-base, our library of articles to help you make sense of all things property, or send your questions to our panel of property experts.

Get your property valued

Looking to sell or let your property? Get a free property valuation from one of our experts.

Top