The Acorn Group is London’s largest multi-brand estate agency. We offer our clients the best brands, with the best people, in the best locations.

 

Close

Guide price £1,500,000 freehold

Detached House for sale - Ricketts Hill Road, Westerham, TN16

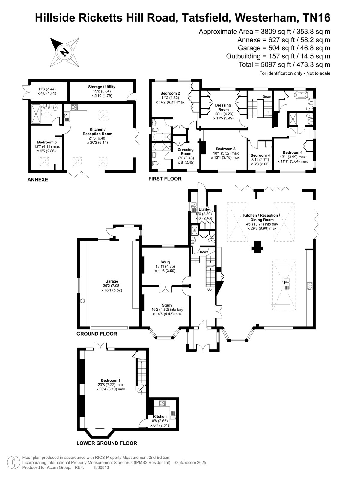
This exceptional five/six-bedroom detached family residence offers a unique blend of period charm and modern luxury, thoughtfully arranged over three spacious floors.

Upon entering, you’re welcomed by a generous entrance hall that flows seamlessly into an impressive open-plan kitchen, dining, and entertaining area. Bathed in natural light from a large sky lantern and full-width bi-folding doors, this space is perfect for both family life and hosting. The kitchen itself is a showpiece, featuring quartz countertops, a central island, and a full suite of integrated Miele appliances including a wine chiller and induction hob. Across the central hallways are two additional reception rooms; both connected with double doors and feature fireplaces and elegant marble surrounds. A separate utility and laundry room complete the ground floor.

Also, on the lower ground level is an additional versatile room featuring exposed brickwork, a kitchenette, and French doors leading out to the rear garden.

Upstairs, the first floor features five well-proportioned bedrooms and a family bathroom. The luxurious principal suite boasts a private dressing room and not one but two en-suite bathrooms, his and hers, providing an indulgent retreat.

Externally, the property has a low maintenance rear garden is ideal for family life and entertaining, complete with an expansive terrace and retractable awning. A full-size tennis court adds a unique lifestyle feature, while a separate self-contained one-bedroom annexe, with kitchen and shower room.

Situated within easy reach of Westerham High Street, the property enjoys excellent access to local amenities, cafes, and independent shops. A superb selection of well-regarded schools is nearby, including Tatsfield Primary School, Oxted School, Caterham School, and Woldingham School making this an ideal home for families.

Tenure – Freehold | Council Tax Band - G

Talk to Robert Keeble from Langford Russell (Estate agents in Sevenoaks)

 

Use our calculator to work out potential mortgage repayments and stamp duty costs. Please note, these calculators are for general interest only and must not be relied on. Speak to our Mortgage Scout team for further information and advice. 

Powered by

Total Mortgage

£

Estimated Monthly Mortgage Payment

£

  • Powered by

Sevenoaks Area Guide

Explore the areas we serve – from parks, entertainment and transport links, to shopping, eating and drinking.

Dive into property knowledge

Visit the AcornIntel knowledge-base, our library of articles to help you make sense of all things property, or send your questions to our panel of property experts.

Get your property valued

Looking to sell or let your property? Get a free property valuation from one of our experts.

Top