The Acorn Group is London’s largest multi-brand estate agency. We offer our clients the best brands, with the best people, in the best locations.

 

Close

Guide price £1,500,000 freehold

Detached House for sale - Guibal Road, SE12

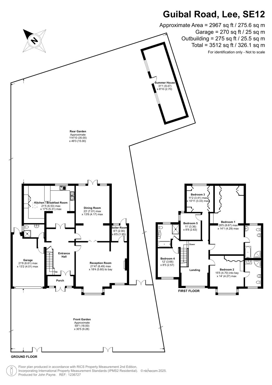
This exceptional five-bedroom, four-bathroom detached house offers nearly 3000 sq ft of luxurious living space on a sought-after residential road, perfectly positioned for access to local amenities and excellent transport links.

**Spacious and Elegant Interior:** Step inside to discover a welcoming tiled entrance hall leading to a generous lounge with elegant French doors opening onto a formal dining area, perfect for entertaining. The extended fitted kitchen is a chef's dream, offering ample workspace and storage. A convenient ground-floor wet room completes the downstairs accommodation.

**First-Floor Retreat:** Upstairs, five double bedrooms provide ample space for the whole family. Two boast en-suite bathrooms for added convenience, while a stylish family bathroom caters to everyone's needs.

**Magnificent Garden and Outdoor Space:** Enjoy the tranquility of a beautiful, approximately 114ft rear garden, mainly laid to lawn and backing onto the peaceful Horn Park. A large summerhouse provides versatile storage or a delightful garden retreat.

**Convenient Location and Amenities:** Guibal Road offers the perfect blend of peaceful residential living and convenient access to amenities. The popular Crown Tavern Gastro pub is just a short stroll away, and highly-regarded schools including Eltham College, Eltham College Junior School, and Colfe's are within easy reach.

**Excellent Transport Links:** Commuting is a breeze with Lee station (Zone 3) providing fast and frequent services to London Bridge (13 minutes), Cannon Street, and Charing Cross (23 minutes). The 273 bus offers convenient access to the DLR at Lewisham station in just 15 minutes.

**Further Benefits:** Ample off-street parking and an integral garage provide practical convenience.

This exceptional family home is a rare find. Arrange your viewing today!

Talk to Chris Wadeson from John Payne (Estate agents in Lee)

 

Use our calculator to work out potential mortgage repayments and stamp duty costs. Please note, these calculators are for general interest only and must not be relied on. Speak to our Mortgage Scout team for further information and advice. 

Powered by

Total Mortgage

£

Estimated Monthly Mortgage Payment

£

  • Powered by

Lee Area Guide

Explore the areas we serve – from parks, entertainment and transport links, to shopping, eating and drinking.

Dive into property knowledge

Visit the AcornIntel knowledge-base, our library of articles to help you make sense of all things property, or send your questions to our panel of property experts.

Get your property valued

Looking to sell or let your property? Get a free property valuation from one of our experts.

Top