The Acorn Group is London’s largest multi-brand estate agency. We offer our clients the best brands, with the best people, in the best locations.

 

Close

Guide price £675,000 freehold

Detached House - Chinbrook Road, SE12

Guide Price: £675,000 - £700,000

Acorn are delighted to welcome to the market this impressive Detached family home, that has been extensively renovated by the current owners.

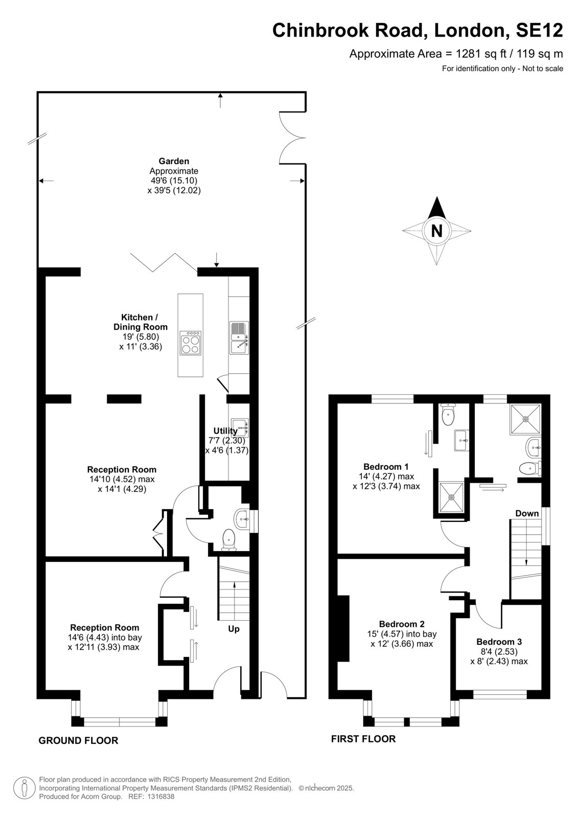
Extended to the rear, the ground floor accommodation comprises large front reception room, W.C, utility area, and a fantastic open plan through lounge diner providing ample entertaining space and modern kitchen with island and integrated appliances. There are full width bi folding doors from the kitchen leading out onto the garden.

The first floor boasts a Master bedroom with en suite shower room, two further well proportioned bedrooms, and a well appointed bathroom.

Sat on a generous corner plot, the property boasts a large front drive, and a 50+ ft rear garden offering a huge amount of entertaining space.

Offered to the market with no onward chain, the house presents any new owner the potential of extensions to the side, rear and loft space subject to local planning permissions.

Grove Park Station is within a short walk, as well as a number of amenities and reputable local schools.

Freehold
Council Tax Band: E
Energy Efficiency Rating: D

Talk to Jake Blackman from Acorn (Estate agents in Grove Park)

 

Use our calculator to work out potential mortgage repayments and stamp duty costs. Please note, these calculators are for general interest only and must not be relied on. Speak to our Mortgage Scout team for further information and advice. 

Powered by

Total Mortgage

£

Estimated Monthly Mortgage Payment

£

  • Powered by

Grove Park Area Guide

Explore the areas we serve – from parks, entertainment and transport links, to shopping, eating and drinking.

Dive into property knowledge

Visit the AcornIntel knowledge-base, our library of articles to help you make sense of all things property, or send your questions to our panel of property experts.

Get your property valued

Looking to sell or let your property? Get a free property valuation from one of our experts.

Top