The Acorn Group is London’s largest multi-brand estate agency. We offer our clients the best brands, with the best people, in the best locations.

 

Close

Guide price £575,000 freehold

Detached House for sale - Bromley Common, BR2

** GUIDE PRICE £575,000 - £600,000 **

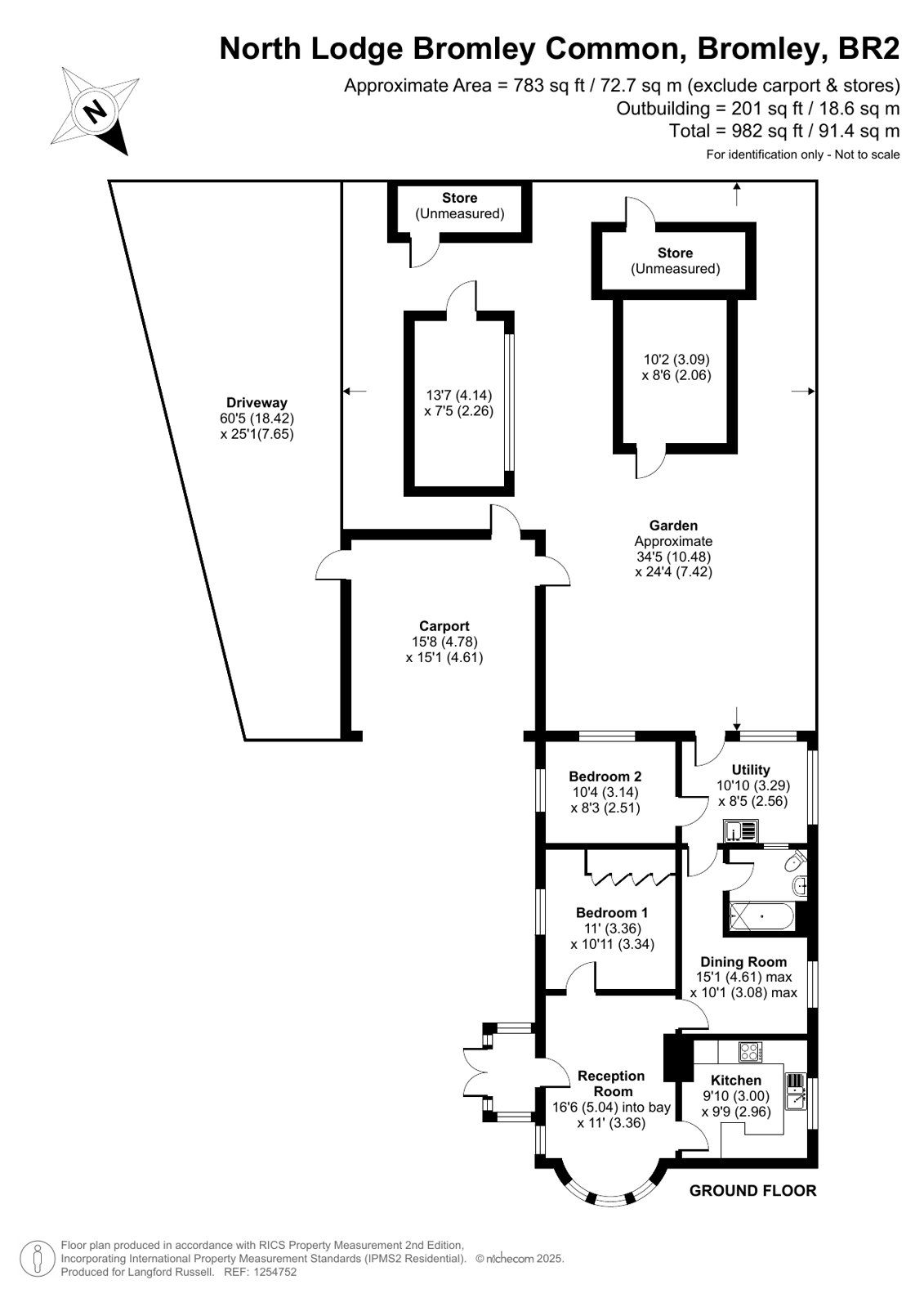
This charming flint-built lodge house formed part of the north entrance to the Oakley House estate, the development originally dating back to 1742. This unique lodge offers two bedrooms, a double aspect living room, separate dining room, a modern kitchen, utility area and bathroom. Outside you will find a paved rear garden, an established side garden laid to lawn, a timber constructed outbuilding, and a double carport for off road parking. As you would imagine from a Victorian gate house, the property offers a quirky floor area with a wealth of features.

The property is conveniently located within easy access of shops and amenities in nearby Locksbottom, as well as the centres of Orpington and Bromley, each with a wider range of shops, bars, restaurants and leisure facilities. Orpington and Bromley South stations are within easy reach, providing excellent links into Central London, as well as regular bus routes connecting the surrounding area. The area is also well served by a number of excellent schools, including Trinity Primary along with Darrick Wood, Hayes and Ravenswood Secondary Schools.

Tenure - Freehold
Council Tax London Borough Of Bromley Tax Band - E
Energy Efficiency Rating - E

Talk to Jake Fahey from Langford Russell (Estate agents in Bromley)

 

Use our calculator to work out potential mortgage repayments and stamp duty costs. Please note, these calculators are for general interest only and must not be relied on. Speak to our Mortgage Scout team for further information and advice. 

Powered by

Total Mortgage

£

Estimated Monthly Mortgage Payment

£

  • Powered by

Bromley Area Guide

Explore the areas we serve – from parks, entertainment and transport links, to shopping, eating and drinking.

Dive into property knowledge

Visit the AcornIntel knowledge-base, our library of articles to help you make sense of all things property, or send your questions to our panel of property experts.

Get your property valued

Looking to sell or let your property? Get a free property valuation from one of our experts.

Top