The Acorn Group is London’s largest multi-brand estate agency. We offer our clients the best brands, with the best people, in the best locations.

 

Close

OIEO £300,000 freehold

Detached House for sale - Bowness Road, SE6

Acorn are delighted to welcome to the market this unique Freehold property in central Catford.

Offered to the market in good order, the property is located within easy reach of all the amenities and transport links Catford has to offer.

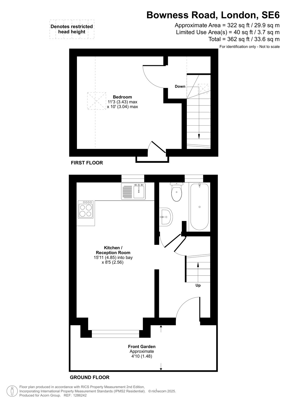
Internally, the accommodation is arranged over two floors, with the ground floor comprising entrance hall, bathroom, and open plan lounge kitchen area with ample fitted kitchen units. The first floor comprises a large double bedroom with Juliette balcony.

A truly unique property, enviably located.

Talk to Jake Blackman from Acorn (Estate agents in Catford)

 

Use our calculator to work out potential mortgage repayments and stamp duty costs. Please note, these calculators are for general interest only and must not be relied on. Speak to our Mortgage Scout team for further information and advice. 

Powered by

Total Mortgage

£

Estimated Monthly Mortgage Payment

£

  • Powered by

Catford Area Guide

Explore the areas we serve – from parks, entertainment and transport links, to shopping, eating and drinking.

Dive into property knowledge

Visit the AcornIntel knowledge-base, our library of articles to help you make sense of all things property, or send your questions to our panel of property experts.

Get your property valued

Looking to sell or let your property? Get a free property valuation from one of our experts.

Top