The Acorn Group is London’s largest multi-brand estate agency. We offer our clients the best brands, with the best people, in the best locations.

 

Close

Guide price £400,000 freehold

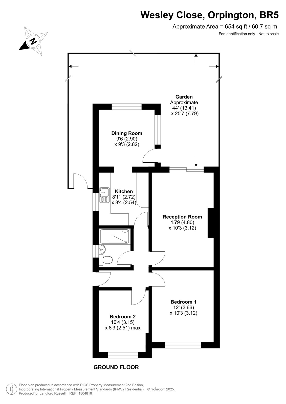
Bungalow - Wesley Close, BR5

**Guide Price £400,000 - £425,000**

Langford Russell are proud to present this contemporary two-bedroom semi-detached bungalow, recently refurbished to an exceptional standard throughout. Ideally positioned within walking distance of local shops, excellent transport links, and well-regarded schools, this single storey home offers stylish and practical living.

This single storey bungalow to the front comprises of two generously sized bedrooms both featuring newly laid carpet and a modern fully tiled shower room. • To the rear side a spacious reception room with elegant herringbone flooring and sliding doors opening to the garden, separate dining room offering direct garden access and contemporary fully fitted kitchen with integrated appliances including an induction hob, fridge/freezer, and dishwasher.

Externally you have a South Easterly facing garden offering excellent potential to be a landscaped entertaining space. To the front you have a private front driveway with off-street for two cars.

The property is conveniently located near several sought-after schools, including Manor Oak Primary, St Mary Cray Primary, and St Paul’s Cray CE Primary, as well as top grammar and independent schools such as St Olave's, Newstead Woods, Chislehurst & Sidcup, and Farringtons.

For commuters, St Mary Cray mainline station is just a 10 minute walk away, providing fast and regular services into central London. Road connections are also superb, with the A20, A2, M20, and M25 all nearby, offering easy access to destinations such as the O2 Arena, Bluewater Shopping Centre, Gatwick, and Heathrow Airports.

Tenure - Freehold
Council Tax London Borough Of Bromley Tax Band - D
Energy Efficiency Rating - D

Talk to Oliver Pettman from Langford Russell (Estate agents in Orpington)

 

Use our calculator to work out potential mortgage repayments and stamp duty costs. Please note, these calculators are for general interest only and must not be relied on. Speak to our Mortgage Scout team for further information and advice. 

Powered by

Total Mortgage

£

Estimated Monthly Mortgage Payment

£

  • Powered by

Orpington Area Guide

Explore the areas we serve – from parks, entertainment and transport links, to shopping, eating and drinking.

Dive into property knowledge

Visit the AcornIntel knowledge-base, our library of articles to help you make sense of all things property, or send your questions to our panel of property experts.

Get your property valued

Looking to sell or let your property? Get a free property valuation from one of our experts.

Top