The Acorn Group is London’s largest multi-brand estate agency. We offer our clients the best brands, with the best people, in the best locations.

 

Close

Asking price £525,000 freehold

Bungalow for sale - St. Johns Road, Welling, DA16

Acorn are delighted to welcome to the market this well presented four bedroom detached bungalow on St Johns Road in Welling.

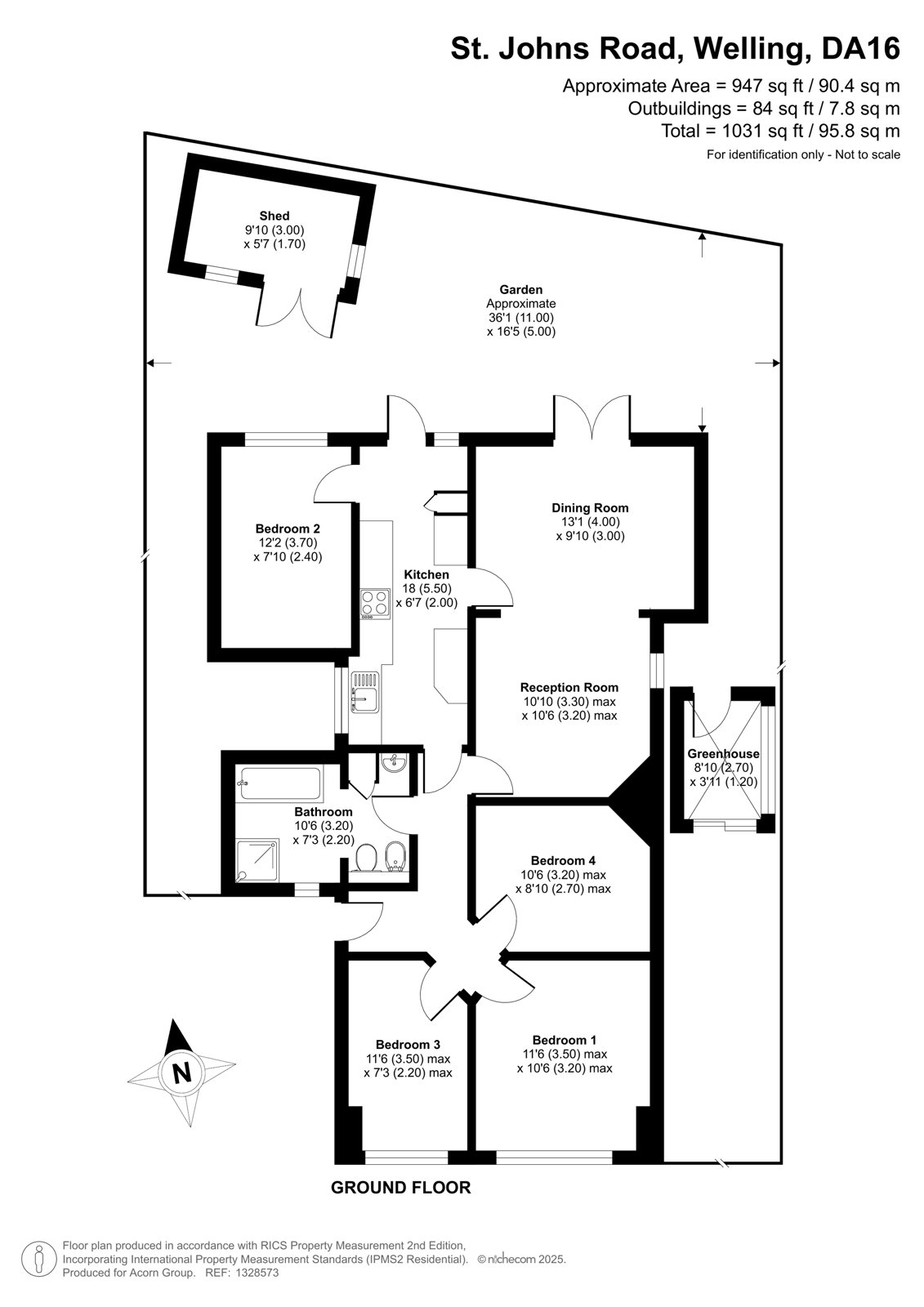
The property comprises an entrance hallway leading through to three well-proportioned bedrooms, extended four piece bathroom suite, extended reception room incorporating the living and dining space together with patio doors leading to the rear garden, extended kitchen and fourth bedroom.

Externally, the property benefits from ample off street parking, and a rear garden which consists of a paved patio area with the remainder laid to lawn with shrub borders and outbuilding.

Welling has fast become very desirable and offers everything you would expect from a local high street, including a wide range of supermarkets, shops, restaurants, and pubs. Transport links are plentiful with bus routes to surrounding areas including Bexleyheath, Blackheath, North Greenwich (The O2), Bluewater, and Abbey Wood with the Elizabeth Line. Welling Station is 0.7 miles away with direct links to London Bridge, Charing Cross, Cannon Street, Waterloo East, and Victoria. Changes are possible at Lewisham for the DLR and New Cross, for the East London Line.


Tenure – Freehold
London Borough of Bexley - Council Tax Band - E
Energy Efficiency Rating – D

Talk to Matthew King from Acorn (Estate agents in Welling)

 

Use our calculator to work out potential mortgage repayments and stamp duty costs. Please note, these calculators are for general interest only and must not be relied on. Speak to our Mortgage Scout team for further information and advice. 

Powered by

Total Mortgage

£

Estimated Monthly Mortgage Payment

£

  • Powered by

Welling Area Guide

Explore the areas we serve – from parks, entertainment and transport links, to shopping, eating and drinking.

Dive into property knowledge

Visit the AcornIntel knowledge-base, our library of articles to help you make sense of all things property, or send your questions to our panel of property experts.

Get your property valued

Looking to sell or let your property? Get a free property valuation from one of our experts.

Top