The Acorn Group is London’s largest multi-brand estate agency. We offer our clients the best brands, with the best people, in the best locations.

 

Close

Guide price £1,500,000 freehold

Bungalow for sale - Rock Hill, Kent, BR6

**Guide Price £1,500,000 to £1,750,000**

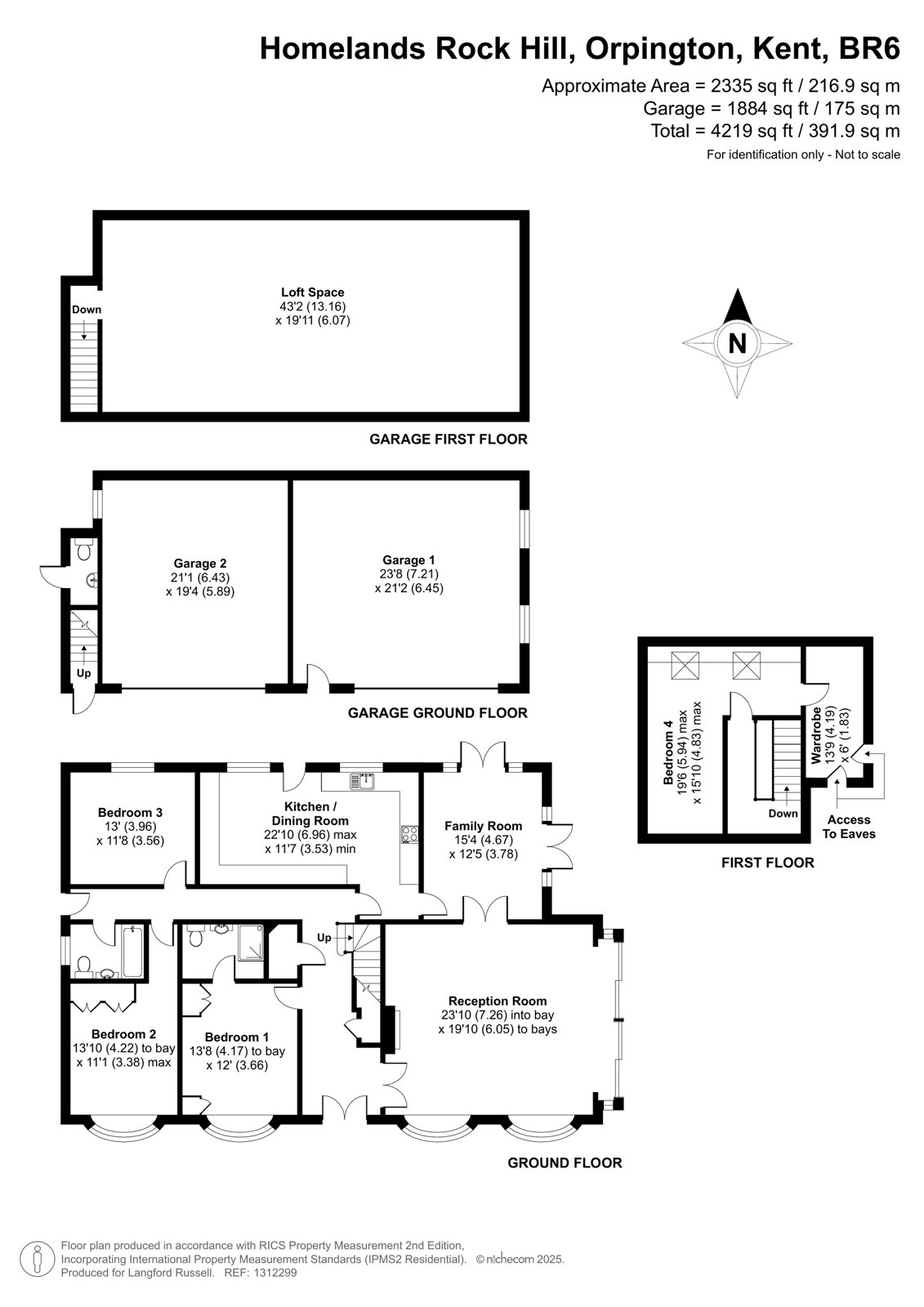
Set amidst approximately four acres of beautifully landscaped grounds, Homelands is a remarkably spacious four-bedroom detached bungalow offering privacy, luxury, and an idyllic rural lifestyle. Nestled at the end of a brick-paved driveway and approached via electric security gates, this impressive residence combines generous living space with outstanding outdoor amenities.

Built in 1996, the home is immaculately presented throughout. The ground floor features a bright and airy dual-aspect reception room, a generous sized dining room, and a well-appointed kitchen/breakfast room. The master bedroom benefits from fitted wardrobes and an en-suite bathroom, while two additional double bedrooms and a family bathroom complete the ground floor accommodation. A fourth bedroom is located on the first floor, offering additional flexibility.

The extensive and thoughtfully designed grounds include a heated outdoor swimming pool, a lawn tennis court, a miniature lake, and beautifully maintained gardens – all framed by uninterrupted views of open countryside. A detached four-car garage provides ample parking and storage.

Ideally located on Rock Hill, just two miles from Chelsfield mainline station, Homelands enjoys convenient access to local amenities and fast rail services into London Bridge in approximately 18 minutes – perfect for commuters seeking a peaceful escape without sacrificing connectivity. Local shops can be found in Chelsfield, with the wider range of retail and leisure facilities located in Orpington, as well as St Olave's & Newstead Wood Grammar schools.

Tenure - Freehold
Sevenoaks District Council Tax Band G / Energy Efficiency Rating C

Talk to Oliver Pettman from Langford Russell (Estate agents in Orpington)

 

Use our calculator to work out potential mortgage repayments and stamp duty costs. Please note, these calculators are for general interest only and must not be relied on. Speak to our Mortgage Scout team for further information and advice. 

Powered by

Total Mortgage

£

Estimated Monthly Mortgage Payment

£

  • Powered by

Orpington Area Guide

Explore the areas we serve – from parks, entertainment and transport links, to shopping, eating and drinking.

Dive into property knowledge

Visit the AcornIntel knowledge-base, our library of articles to help you make sense of all things property, or send your questions to our panel of property experts.

Get your property valued

Looking to sell or let your property? Get a free property valuation from one of our experts.

Top