The Acorn Group is London’s largest multi-brand estate agency. We offer our clients the best brands, with the best people, in the best locations.

 

Close

Guide price £475,000 freehold

Bungalow for sale - Friar Road, BR5

GUIDE PRICE £475,000 to £500,000

Langford Russell are delighted to present this beautifully presented three-bedroom semi-detached bungalow, ideally situated in a sought-after location close to highly regarded schools and excellent transport links, including Petts Wood Station.

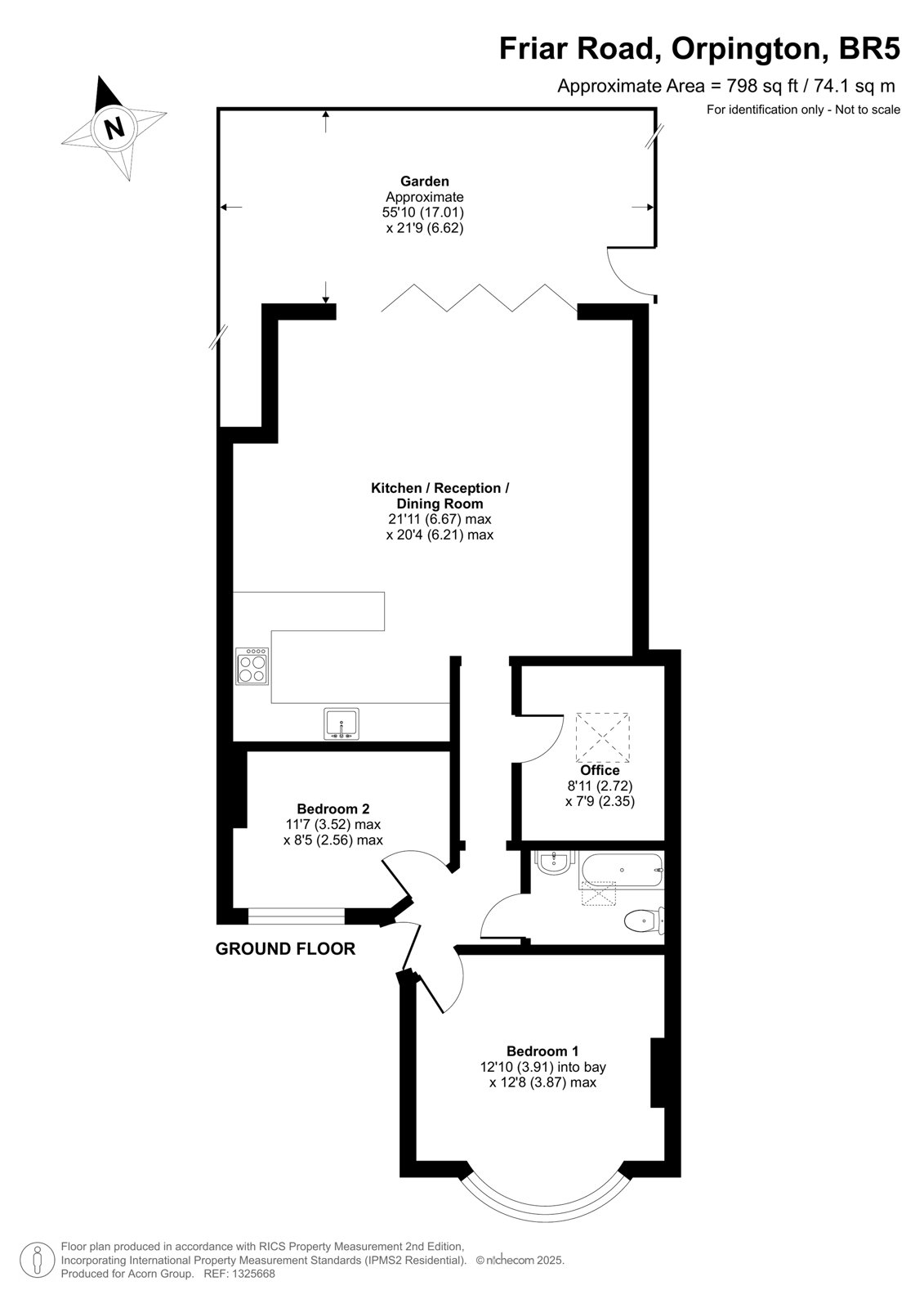
Thoughtfully arranged over a single level with neutral décor throughout, the property offers spacious and versatile living. This property has undergone a refurbishment of a new roof, kitchen, bathroom boiler and rear entrance. At the front, you’ll find two generous double bedrooms, each featuring charming fireplaces, alongside a stylish three-piece family bathroom.

To the rear, the home opens up into a bright and extended kitchen/reception/dining area, complete with a mix of parquet and carpeted flooring. The contemporary kitchen boasts integrated appliances including a fridge/freezer, dishwasher, oven, and induction hob, along with a breakfast bar and ample fitted wall and base units. Bi-fold doors seamlessly connect the living space to the rear garden, enhancing indoor-outdoor living. An additional room off the reception area provides the perfect space for a home office, playroom, or gym.

Externally, the rear garden offers a well-maintained lawn, an alfresco patio area ideal for entertaining, mature plant borders, a storage shed, and a further seating area for relaxation.

This attractive bungalow combines modern living with a convenient location—an ideal home for downsizers, first-time buyers, or young families.

Local schools include Poverest and Perry Hall Primary and for secondary education Coopers, St Olaves and Newstead Woods are within easy reach. Petts Wood station is a short distance away with frequent trains on both London main lines (Charing Cross and Victoria) whilst St Mary Cray is within walking distance and offers fast connections into Victoria and Blackfriars. Orpington High Street is within easy reach by bus or a short drive away with an array of shops, boutiques and brand-new cinema complex. The Nugent Shopping Centre is on your doorstep and offers a further range of shops including M&S, Debenhams and Next.

Tenure - Freehold
London Borough Of Bromley - Council Tax Band - D
Energy Efficiency Rating - C

Talk to Oliver Pettman from Langford Russell (Estate agents in Orpington)

 

Use our calculator to work out potential mortgage repayments and stamp duty costs. Please note, these calculators are for general interest only and must not be relied on. Speak to our Mortgage Scout team for further information and advice. 

Powered by

Total Mortgage

£

Estimated Monthly Mortgage Payment

£

  • Powered by

Orpington Area Guide

Explore the areas we serve – from parks, entertainment and transport links, to shopping, eating and drinking.

Dive into property knowledge

Visit the AcornIntel knowledge-base, our library of articles to help you make sense of all things property, or send your questions to our panel of property experts.

Get your property valued

Looking to sell or let your property? Get a free property valuation from one of our experts.

Top