The Acorn Group is London’s largest multi-brand estate agency. We offer our clients the best brands, with the best people, in the best locations.

 

Close

Guide price £325,000 shareOfFreehold

Apartment for sale - Wyndham Road, SE5

**Guide Price: £325,000 TO £350,000**

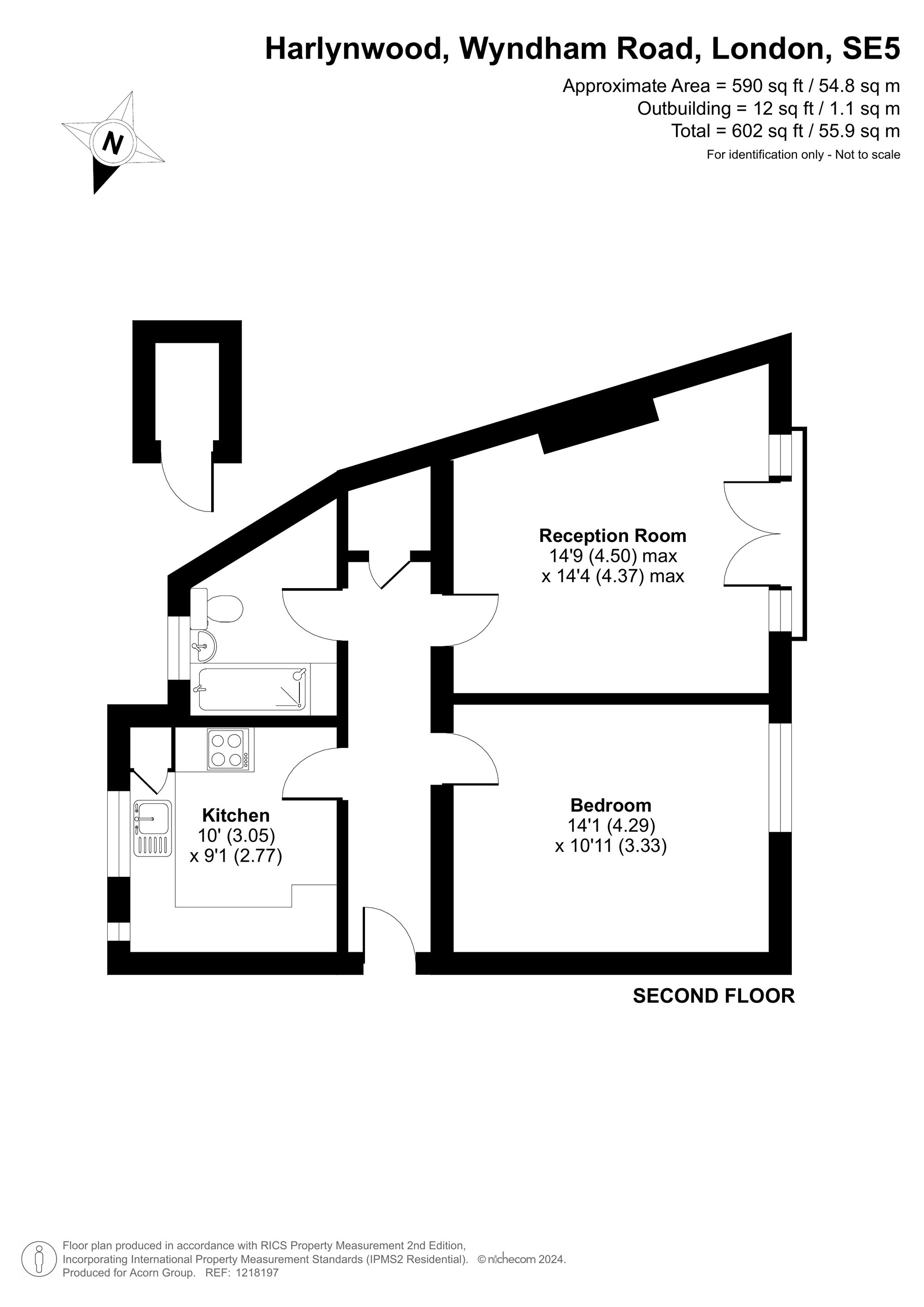
The spacious reception room is generous in its proportions and has a lovey crittal window which opens to a Juliet balcony. The kitchen offer room for free standing appliances, considerable worktop space, and plenty of storage options. The bedroom is generous in size and the bathroom room is modern and finished with neutrally. There is also a large pantry style storage cupboard in the hall.

The shared garden can be found to the rear of the complex, where an additional storage shed can be found too.

The surrounding area has many bus routes, through accessing Camberwell New Road which will enable fuss-free travel throughout the city. The fantastic property is also within close proximity to Oval Cricket Ground.
The property has excellent transport connections, with Oval Station (Northern Line) being a 14 minute walk away and Kennington Station (Northern Line) being 20 minutes away. The ever-popular Kennington Park is also close by.

Service Charge | £1,300 pa
Council Tax Band | B
Energy Efficiency Rating | D

Talk to James Moss from Acorn (Estate agents in Camberwell)

 

Use our calculator to work out potential mortgage repayments and stamp duty costs. Please note, these calculators are for general interest only and must not be relied on. Speak to our Mortgage Scout team for further information and advice. 

Powered by

Total Mortgage

£

Estimated Monthly Mortgage Payment

£

  • Powered by

Camberwell Area Guide

Explore the areas we serve – from parks, entertainment and transport links, to shopping, eating and drinking.

Dive into property knowledge

Visit the AcornIntel knowledge-base, our library of articles to help you make sense of all things property, or send your questions to our panel of property experts.

Get your property valued

Looking to sell or let your property? Get a free property valuation from one of our experts.

Top