The Acorn Group is London’s largest multi-brand estate agency. We offer our clients the best brands, with the best people, in the best locations.

 

Close

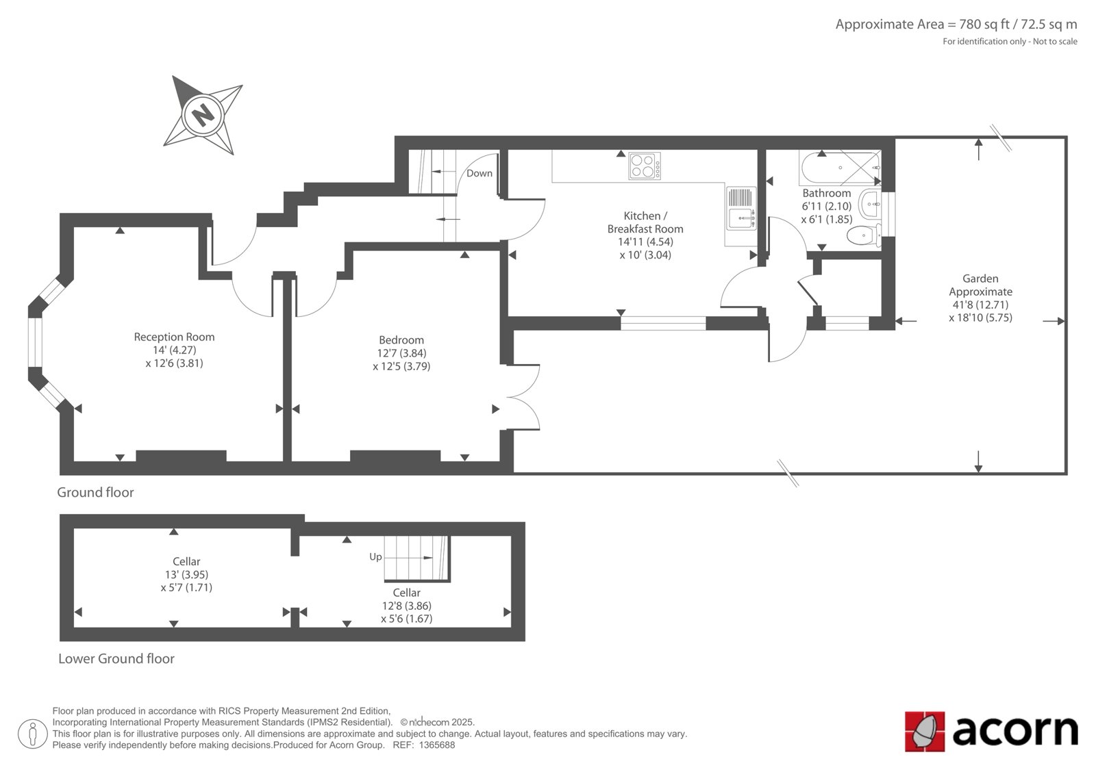
Guide price £375,000 leasehold

Apartment for sale - Wiverton Road, SE26

Guide Price: £375,000 - £400,000

One-bedroom flat forms part of an Victorian conversion, offering approximately 780 sq ft of well-proportioned living space. The property retains much of its original charm and character.

The accommodation includes a spacious living area, kitchen area and a generous double bedroom with ample storage throughout. One of the standout features is the private garden, offering a peaceful outdoor space ideal for relaxing or entertaining.

Offered with a share of freehold and chain-free, this home provides an easy and straightforward purchase opportunity. Conveniently located, it benefits from excellent transport links, making it perfect for commuters or anyone looking to enjoy easy access to the city and surrounding areas.

Share of Freehold | Service Charge: TBC | Council Tax: C | EPC Rating: C

Talk to Harrison White from Acorn (Estate agents in Sydenham)

 

Use our calculator to work out potential mortgage repayments and stamp duty costs. Please note, these calculators are for general interest only and must not be relied on. Speak to our Mortgage Scout team for further information and advice. 

Powered by

Total Mortgage

£

Estimated Monthly Mortgage Payment

£

  • Powered by

Sydenham Area Guide

Explore the areas we serve – from parks, entertainment and transport links, to shopping, eating and drinking.

Dive into property knowledge

Visit the AcornIntel knowledge-base, our library of articles to help you make sense of all things property, or send your questions to our panel of property experts.

Get your property valued

Looking to sell or let your property? Get a free property valuation from one of our experts.

Top