Acorn are pleased to welcome to the market this beautifully appointed and exceptionally stylish split-level Victorian conversion flat, positioned within a striking period brick façade that perfectly captures the charm and character of Hither Green’s much-loved residential streets. This apartment also boasts off street parking and no onward chain.
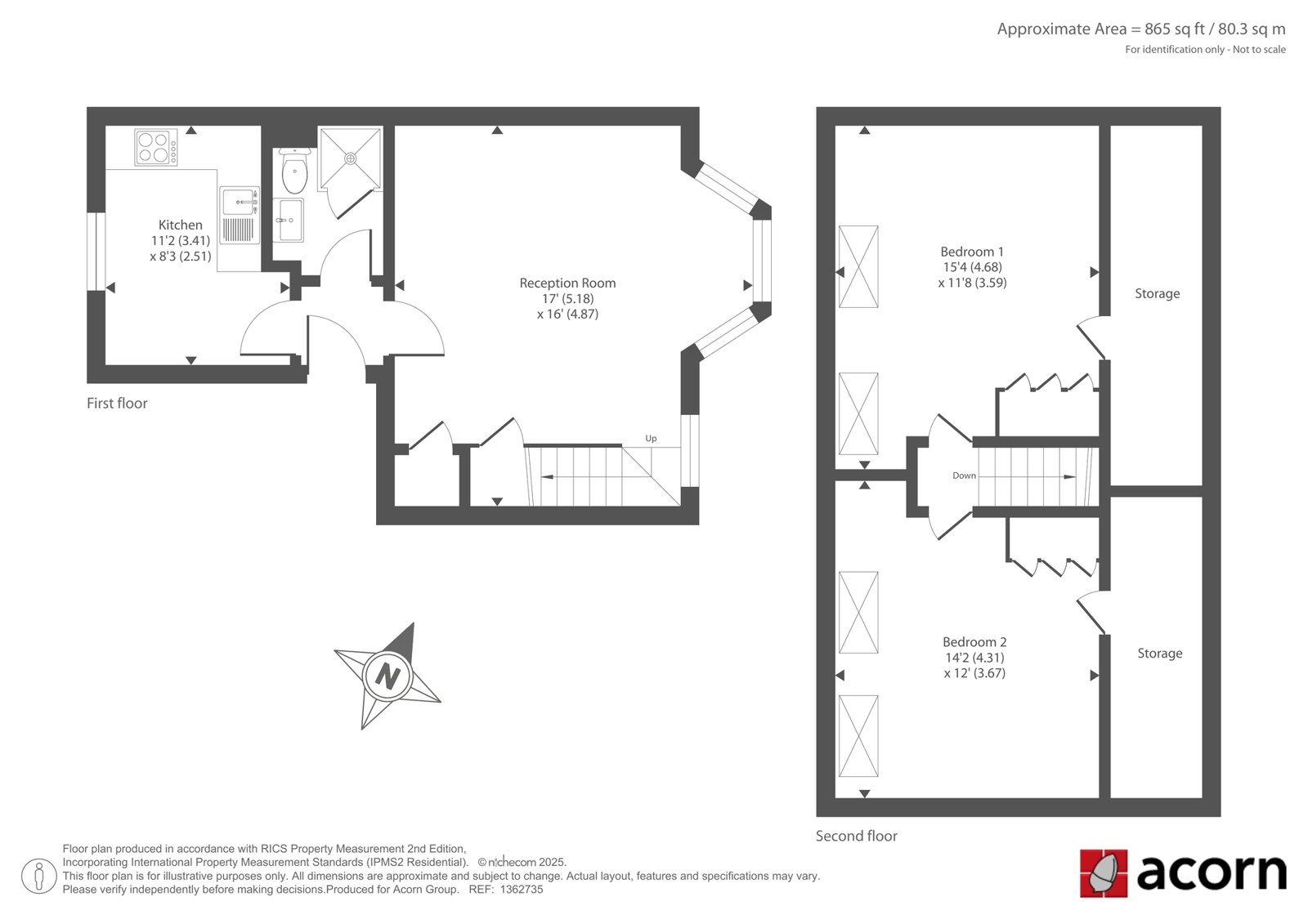
Occupying the upper floors of a handsome Victorian building, this elegant home is arranged over two generous levels and offers a thoughtfully designed, free-flowing layout flooded with an abundance of natural light throughout. The property effortlessly combines classic architectural features with modern living, offering the best of both worlds for discerning buyers. The accommodation comprises two well-proportioned double bedrooms, each offering a calm and comfortable retreat. A striking exposed staircase leads you through the property enhancing the sense of space and character. The heart of the home is a stylish open-plan reception room, ideal for both relaxing and entertaining, which seamlessly connects to a sleek, contemporary kitchen fitted with high-end appliances and ample storage. Completing the internal layout is a spacious, modern bathroom, finished to an excellent standard with quality fixtures and fittings.
Located just a short distance from Hither Green Station, residents benefit from quick and convenient transport links into Central London, including direct routes to London Bridge, Cannon Street and Charing Cross. Canary Wharf is also easily accessible via nearby Lewisham (DLR), making this an excellent choice for commuters. The local area continues to grow in popularity and appeal, offering a vibrant yet laid-back lifestyle. Green spaces such as Manor Park and Mountsfield Park are close by, providing excellent outdoor options for leisure and recreation. Hither Green also boasts an increasing number of independent cafes, artisan bakeries, and boutique-style bars, adding to the village-like charm of this well-connected location.
Lease Length: 105 Years (125 years from 24 June 2005) | Service Charge: TBC | Ground Rent: TBC | Council Tax Band: C|
Talk to Max Smith from Acorn (Estate agents in Lewisham)
Use our calculator to work out potential mortgage repayments and stamp duty costs. Please note, these calculators are for general interest only and must not be relied on. Speak to our Mortgage Scout team for further information and advice.
Dive into property knowledge
Visit the AcornIntel knowledge-base, our library of articles to help you make sense of all things property, or send your questions to our panel of property experts.
Get your property valued
Looking to sell or let your property? Get a free property valuation from one of our experts.