The Acorn Group is London’s largest multi-brand estate agency. We offer our clients the best brands, with the best people, in the best locations.

 

Close

OIEO £325,000 leasehold

Apartment for sale - Victoria Way, SE7

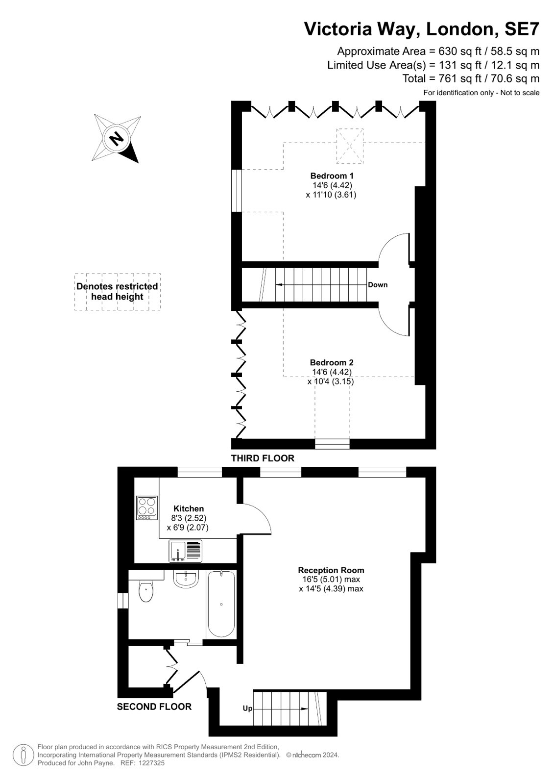
Split level two bedroom Victorian conversion flat positioned on the top floors of an imposing building, located within walking distance to Charlton Station, a bus ride away from Woolwich on the Elizabath Line, many shops, pubs and other amenities, and with the added pleasure of being sold chain free!

Comprising a large reception room, modern fitted kitchen, and bathroom; to the top floor are two double bedrooms with ample eaves storage. Benefits include gas central heating, off street parking and access to a beautiful communal rear garden.

The apartment is located only a short walk to Charlton station which offers frequent links into the city (under 20 minutes to London Bridge and under 30 minutes to Cannon Street). North Greenwich, Greenwich and Blackheath are all within easy reach for further links including DLR and Jubilee Line.

There are many convenient shopping facilities including Greenwich Shopping Park which has many large grocery stores and lifestyle shops. You are only a short stroll to the Royal Standard for independent cafés, an M&S Simply Food, and a public library. Many beautiful green spaces are found close by, including the renowned Greenwich Park, Charlton house and Park and Maryon Wilson Animal Park.

Tenure - Leasehold
Leaselength - 149 Years
Service Charge - £1,500
Ground Rent - £50

Talk to Will McElligott from John Payne (Estate agents in Blackheath Standard)

 

Use our calculator to work out potential mortgage repayments and stamp duty costs. Please note, these calculators are for general interest only and must not be relied on. Speak to our Mortgage Scout team for further information and advice. 

Powered by

Total Mortgage

£

Estimated Monthly Mortgage Payment

£

  • Powered by

Blackheath Standard Area Guide

Explore the areas we serve – from parks, entertainment and transport links, to shopping, eating and drinking.

Dive into property knowledge

Visit the AcornIntel knowledge-base, our library of articles to help you make sense of all things property, or send your questions to our panel of property experts.

Get your property valued

Looking to sell or let your property? Get a free property valuation from one of our experts.

Top