The Acorn Group is London’s largest multi-brand estate agency. We offer our clients the best brands, with the best people, in the best locations.

 

Close

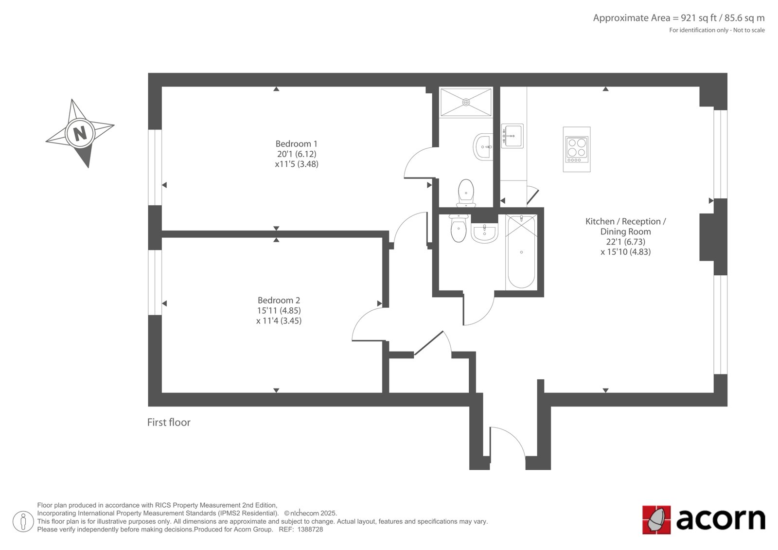
Asking price £685,000 leasehold

Apartment for sale - Tower Bridge Road, SE1

Set moments from the ever-popular Bermondsey Street is this outstanding period apartment. Boasting one of SE1’s most enviable and iconic addresses, this premier, loft style apartment boasts an abundance of natural light and luxury living space throughout. Stylishly upgraded by the current owners, this 1st floor apartment is offered in immaculate condition and finished to the highest of standards. Sympathetically designed with 921 sq ft of flexible accommodation, this two double-bedroom, two-bathroom home is outstanding and really should be viewed to be fully appreciated.

On entering you discover a grand hallway that offers substantial storage and can be open to the reception via a large bespoke, industrial style sliding glass door. A lovely way to extend the space both in the hallway and 22ft reception. Open plan in style, solid wood floors, brickwork, industrial style radiators tip a cap to the area’s rich industrial past. A beautiful room of the highest quality that easily divides into substantial seating and dining areas. The stylish kitchen sits neatly in the far corner, bespoke Oak cabinetry is offset against a marble worksurface, and Island, contemporary fixtures and fittings strike the perfect balance between a modern and period feel. The bedrooms are both impressive spaces, quiet, calm and of a size rarely seen. The master extends to over 20ft and incorporates a large ensuite that is both contemporary and practical. Bedroom two is equally impressive at just shy of 16ft, ideal for those looking to rent out a room. Solid wood flooring, industrial radiators, and plantation shutters complete the look in both rooms. The master bathroom is sumptuous, elegant, and very much in keeping with the quality throughout. Further benefits include secure entry, lift access and an elegant communal lobby area.

Export House is a popular development that offers the perfect location for those looking to enjoy a unique village lifestyle within central SE1. Just moments from the delights of Bermondsey Street, Shad Thames, The Riverside and London Bridge the location matches the quality of the apartment. Transport links are fantastic with London Bridge station just a short walk away. A uniquely styled apartment of genuine quality.

Lease length 125 years from 24 June 2006, Service Charge £4957pa, Ground Rent £533pa.

Talk to Stuart Challis from Acorn (Estate agents in London Bridge)

 

Use our calculator to work out potential mortgage repayments and stamp duty costs. Please note, these calculators are for general interest only and must not be relied on. Speak to our Mortgage Scout team for further information and advice. 

Powered by

Total Mortgage

£

Estimated Monthly Mortgage Payment

£

  • Powered by

London Bridge Area Guide

Explore the areas we serve – from parks, entertainment and transport links, to shopping, eating and drinking.

Dive into property knowledge

Visit the AcornIntel knowledge-base, our library of articles to help you make sense of all things property, or send your questions to our panel of property experts.

Get your property valued

Looking to sell or let your property? Get a free property valuation from one of our experts.

Top