The Acorn Group is London’s largest multi-brand estate agency. We offer our clients the best brands, with the best people, in the best locations.

 

Close

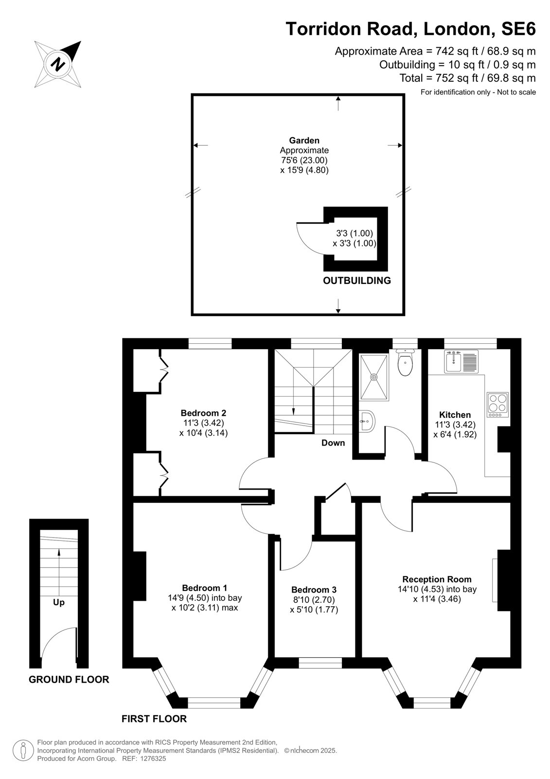
Guide price £400,000 leasehold

Apartment for sale - Torridon Road, SE6

** Guide Price £400,000 - £425,000 **

Acorn are thrilled to be welcoming to the market this first floor Period Conversion flat, offered with no onward chain.

Spanning the entire first floor of this impressive double fronted building, the flat is accessed through its own front door and offers plenty of character features. Internally comprising three well-proportioned bedrooms, bathroom, fitted kitchen with ample units, and a bright lounge.

Externally, the flat boasts off street parking and a large private garden accessible via secure side gate.

Enviably located with Hither Green Station a short walk away, the flat is also within easy reach of all the amenities of Catford, Lewisham and Hither Green.

Lease - 125 years from 19th February 1990 (89 years remaining)
Service Charge - £57.37 per month
Ground Rent - £10 PA
Lewisham Council - Council Tax Band - C
Energy Efficiency Rating - D

Talk to Jake Blackman from Acorn (Estate agents in Catford)

 

Use our calculator to work out potential mortgage repayments and stamp duty costs. Please note, these calculators are for general interest only and must not be relied on. Speak to our Mortgage Scout team for further information and advice. 

Powered by

Total Mortgage

£

Estimated Monthly Mortgage Payment

£

  • Powered by

Catford Area Guide

Explore the areas we serve – from parks, entertainment and transport links, to shopping, eating and drinking.

Dive into property knowledge

Visit the AcornIntel knowledge-base, our library of articles to help you make sense of all things property, or send your questions to our panel of property experts.

Get your property valued

Looking to sell or let your property? Get a free property valuation from one of our experts.

Top