The Acorn Group is London’s largest multi-brand estate agency. We offer our clients the best brands, with the best people, in the best locations.

 

Close

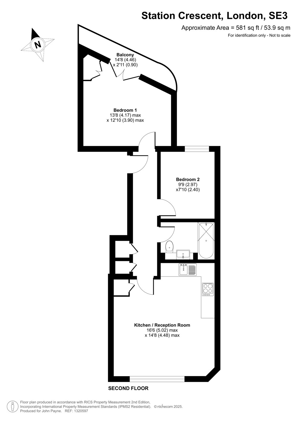
OIEO £435,000 leasehold

Apartment for sale - Station Crescent, SE3

John Payne are delighted to market CHAIN FREE, this beautifully presented two double bedroom second floor apartment set within the sought after Westcombe Park area.

This stylish home features a bright open-plan living/dining area with direct access to a private south-facing balcony, ideal for relaxing or entertaining. The sleek modern kitchen includes integrated appliances, with contemporary cabinetry and worktops.

Both bedrooms are well-proportioned filled with natural light, and the property is completed by a modern three-piece bathroom.

Locally you are blessed with fantastic transport links from Westcombe Park mainline station; North Greenwich (Jubilee Line) and Cutty Sark(DLR) are also found close by. The Royal Standard is only a short stroll away, which offers convenient shopping and leisure facilities. Within 1 mile you discover beautiful green spaces, including the renowned Greenwich Park and the open heath, ideal for weekend strolls or, if you are looking for somewhere even closer to explore, why not try Mycenae Gardens.

Lease length: 104 years | Service Charge: £1 500 | Ground Rent: £200

Royal Borough of Greenwich Council Tax: Band D | Energy Efficiency: Rating B

Talk to Will McElligott from John Payne (Estate agents in Blackheath Standard)

 

Use our calculator to work out potential mortgage repayments and stamp duty costs. Please note, these calculators are for general interest only and must not be relied on. Speak to our Mortgage Scout team for further information and advice. 

Powered by

Total Mortgage

£

Estimated Monthly Mortgage Payment

£

  • Powered by

Blackheath Standard Area Guide

Explore the areas we serve – from parks, entertainment and transport links, to shopping, eating and drinking.

Dive into property knowledge

Visit the AcornIntel knowledge-base, our library of articles to help you make sense of all things property, or send your questions to our panel of property experts.

Get your property valued

Looking to sell or let your property? Get a free property valuation from one of our experts.

Top