The Acorn Group is London’s largest multi-brand estate agency. We offer our clients the best brands, with the best people, in the best locations.

 

Close

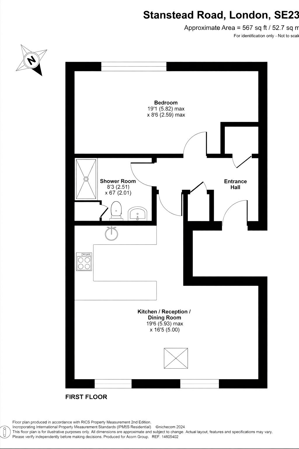
Asking price £325,000 leasehold

Apartment for sale - Stanstead Road, SE23

A beautifully presented and unique first floor converted property offering stylish, contemporary living space with a communal garden, superbly located on Stanstead Road, SE23.

The property provides approximately 567 sq ft of well-planned accommodation and is finished to a high standard throughout. The heart of the home is a generous open-plan kitchen/reception/dining room, featuring modern fitted units, integrated appliances and ample space for both relaxing and entertaining. Exposed beams and high ceilings add character and a sense of volume, while large windows flood the room with natural light.

There is a spacious double bedroom positioned to the rear, offering a quiet and comfortable space complemented by a sleek and modern shower room with contemporary fittings. An entrance hall provides separation from the living space and useful storage.

To the rear, the property further benefits from a communal, well-enclosed garden, laid with a combination of patio and lawn, ideal for outdoor dining, relaxing or entertaining.

The property is conveniently located for local shops, cafés and amenities along Stanstead Road, with excellent transport links nearby, making it ideal for first-time buyers, professionals or those seeking a distinctive home with outdoor space.

Leasehold: 250 years from and including 1 January 2022 to and including 31 December 2271
Service Charge: £1500 P/A
Ground Rent: £0
Local Authority Lewisham Council Tax Band B
Energy Efficiency Rating D

Talk to Nellie Fantham from Acorn (Estate agents in Forest Hill)

 

Use our calculator to work out potential mortgage repayments and stamp duty costs. Please note, these calculators are for general interest only and must not be relied on. Speak to our Mortgage Scout team for further information and advice. 

Powered by

Total Mortgage

£

Estimated Monthly Mortgage Payment

£

  • Powered by

Forest Hill Area Guide

Explore the areas we serve – from parks, entertainment and transport links, to shopping, eating and drinking.

Dive into property knowledge

Visit the AcornIntel knowledge-base, our library of articles to help you make sense of all things property, or send your questions to our panel of property experts.

Get your property valued

Looking to sell or let your property? Get a free property valuation from one of our experts.

Top