The Acorn Group is London’s largest multi-brand estate agency. We offer our clients the best brands, with the best people, in the best locations.

 

Close

Guide price £400,000 shareOfFreehold

Apartment for sale - Sangley Road, SE6

Guide Price £400,000 - £425,000

Acorn are delighted to welcome to the market this immaculate Period Garden flat, enviably located for access to transport links and amenities.

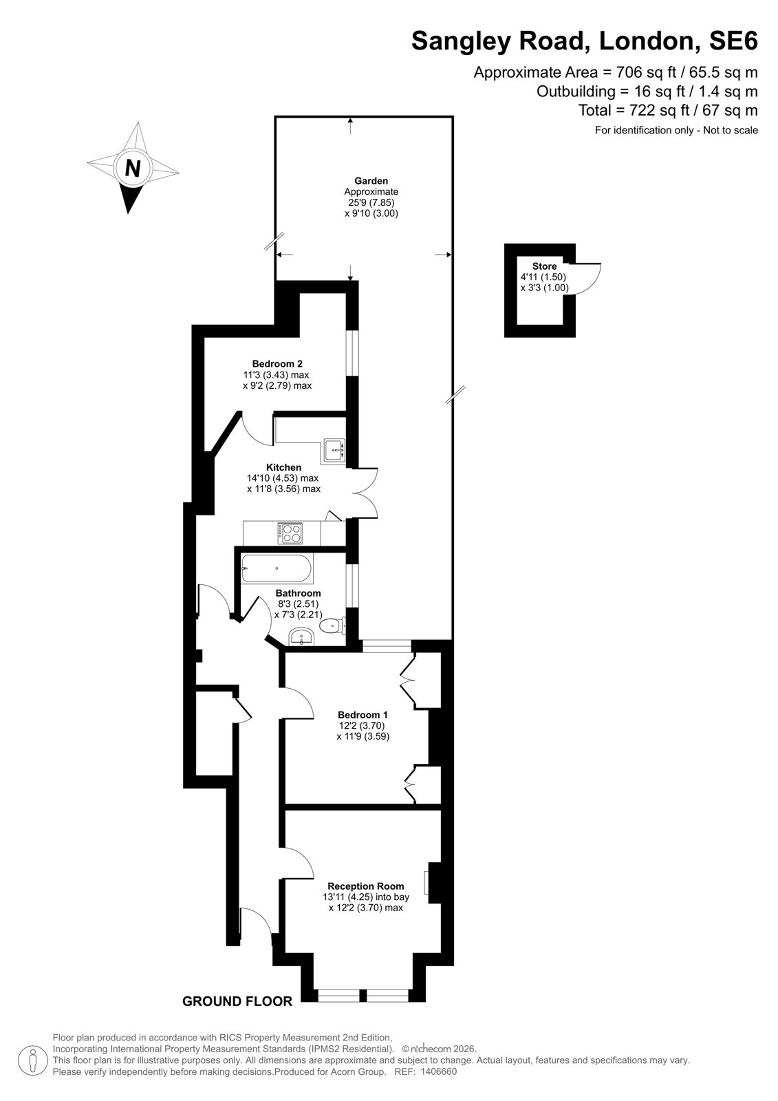
Offered with a Share of the Freehold, this bright property comprises large front lounge, modern bathroom, a well appointed kitchen with ample units and smart appliances; and two well-proportioned bedrooms.

Further boasting a good size private garden accessible from the kitchen, the flat is within 0.5 miles of Catford's Rail Stations, as well as all of the shops, cafes and restaurants along Rushey Green.

Share of Freehold: 999 years from 26 July 2023
Service Charge: As and When
Ground Rent: N/A

Talk to Jake Blackman from Acorn (Estate agents in Catford)

 

Use our calculator to work out potential mortgage repayments and stamp duty costs. Please note, these calculators are for general interest only and must not be relied on. Speak to our Mortgage Scout team for further information and advice. 

Powered by

Total Mortgage

£

Estimated Monthly Mortgage Payment

£

  • Powered by

Catford Area Guide

Explore the areas we serve – from parks, entertainment and transport links, to shopping, eating and drinking.

Dive into property knowledge

Visit the AcornIntel knowledge-base, our library of articles to help you make sense of all things property, or send your questions to our panel of property experts.

Get your property valued

Looking to sell or let your property? Get a free property valuation from one of our experts.

Top