The Acorn Group is London’s largest multi-brand estate agency. We offer our clients the best brands, with the best people, in the best locations.

 

Close

Guide price £200,000 leasehold

Apartment for sale - Rowhill Road, BR8

***Guide Price £200,000 - £220,000***

***Chain Free***

Located in the sought after area of Hextable village in a quiet semi- rural location, Langford Russell welcome this deceptively spacious one double bedroom apartment to the sales market, offered to the market CHAIN FREE. Ideal for any first time buyers or buy to let investors.

Hextable is a popular residential semi-rural village with fantastic access links to many local amenities. Nearby, you will find the ever popular Hextable Primary School, village shops and post office, bus routes, access to Swanley town Centre and the Swanley boat park.

The Swanley mainline train station offers a direct commute into Central London In approximately twenty minutes, station is within the Oyster Zone. Access to the M25/A2/A20 road links and the Bluewater shopping Centre.

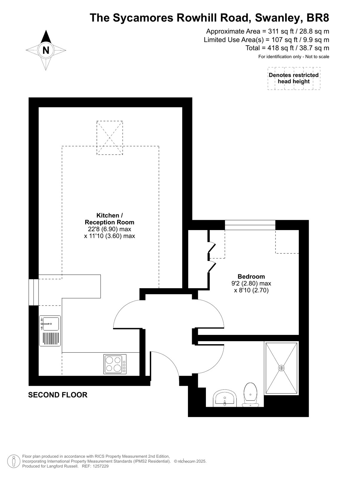
Internally, the property comprises; entrance hall with entry phone, open plan modern fitted kitchen leading into lounge/dining area. Double bedroom and a modern fitted bathroom. Other noteworthy features include; boasts of character and original velux windows, neutral tasteful décor throughout, communal garden grounds and parking facility available.

Externally, you will find one allocated parking space.

Contact us today to arrange your intermal inspection, viewing is highly recommended!

Tenure - Leasehold
Lease Length - 105 Years
Service Charge - £1,462 P/A
Ground Rent - £451 P/A

Talk to Hayley Buist from Langford Russell (Estate agents in Swanley)

 

Use our calculator to work out potential mortgage repayments and stamp duty costs. Please note, these calculators are for general interest only and must not be relied on. Speak to our Mortgage Scout team for further information and advice. 

Powered by

Total Mortgage

£

Estimated Monthly Mortgage Payment

£

  • Powered by

Swanley Area Guide

Explore the areas we serve – from parks, entertainment and transport links, to shopping, eating and drinking.

Dive into property knowledge

Visit the AcornIntel knowledge-base, our library of articles to help you make sense of all things property, or send your questions to our panel of property experts.

Get your property valued

Looking to sell or let your property? Get a free property valuation from one of our experts.

Top