The Acorn Group is London’s largest multi-brand estate agency. We offer our clients the best brands, with the best people, in the best locations.

 

Close

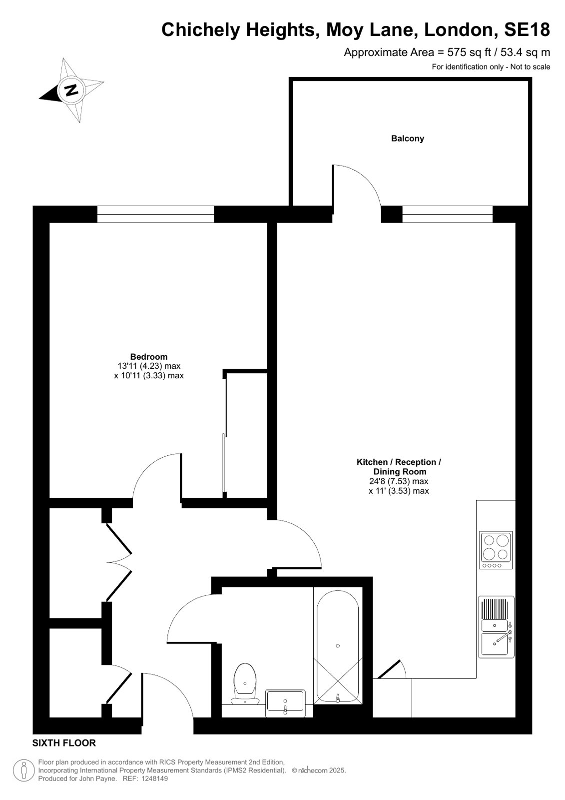
Asking price £350,000 leasehold

Apartment - Moy Lane, SE18

Unveiled to SE18, this top floor, immaculately presented one bedroom apartment with allocated parking located in Central Woolwich!

The apartment has been finished with a high specification throughout, the property is east facing benefitting from uninterrupted morning sun. briefly comprising a open plan living area, fully integrated kitchen and access onto a private balcony, larger than average master bedroom, three piece bathroom and an abundance of storage.

Further benefits include lift access, video entry system, secure bike storage and concierge.

Superb transport links with Woolwich Arsenal Station a short walk away offering Thameslink, South-eastern lines and DLR, the Thames Clipper and Woolwich Ferry are also heavily dependable transport options. Additional accessible links are the popular City Airport and Crossrail/Elizabeth Line making Woolwich a highly desirable and central location to live. Trinity Walk is a superb collection of new build apartments located a few minutes walk to Woolwich Station and DLR and close to the new Crossrail station

Leasehold: 120 Years
Ground Rent: £250
Service Charge: £2,000
Council Tax – Local Authority Royal Borough of Greenwich, Band C.

Talk to William Chidley from John Payne (Estate agents in Woolwich)

 

Use our calculator to work out potential mortgage repayments and stamp duty costs. Please note, these calculators are for general interest only and must not be relied on. Speak to our Mortgage Scout team for further information and advice. 

Powered by

Total Mortgage

£

Estimated Monthly Mortgage Payment

£

  • Powered by

Woolwich Area Guide

Explore the areas we serve – from parks, entertainment and transport links, to shopping, eating and drinking.

Dive into property knowledge

Visit the AcornIntel knowledge-base, our library of articles to help you make sense of all things property, or send your questions to our panel of property experts.

Get your property valued

Looking to sell or let your property? Get a free property valuation from one of our experts.

Top